Реализация объекта недвижимости приостановлена

Информация о коттедже

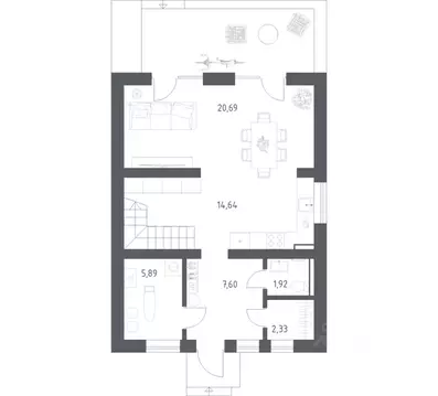
180.0 м2
Площадь
2
Этажность
19.0 cоток
Участок

Дополнительная информация

Дом продаётся вместе с участком
есть
Развернуть

Дом в Московская область, Дмитровский муниципальный округ, деревня ...

Продается уютный жилой дом площадью 180 кв. метров в живописной деревне Степаново, г/п Дмитров, Московская область. Этот дом — идеальное место для комфортной жизни вдали от городской суеты в окружении леса, и непосредственной близости с горнолыжными курортами Степаново, парк Яхрома, парк Волен. Участок площадью 19 соток окружен природой и создает атмосферу уединения и спокойствия. Дом был построен в 2005 году по каркасной технологии, отделан блокхаусом, что обеспечивает отличную теплоизоляцию. На первом этаже расположены кухня с современным кухонным гарнитуром, музыкальная гостиная, библиотека, две спальни и совмещенный санузел. На втором этаже находятся одна просторная спальня и большая гостиная комната. Дом продается со всей мебелью и техникой, большой коллекцией книг и картин, а также пианино. Участок правильной формы, на территории растут ягодные кустарники и плодовые деревья, а также имеется два гаража. На участке построена летняя кухня, которую хозяин ласково называет чайным домиком. Коммуникации центральные — газ, водопровод, электричество 15 кВт, а также современный септик, обеспечивающий полную автономность. Объект находится в собственности, сделка может быть проведена в сжатые сроки. Это предложение для тех, кто ценит комфорт, тишину и природу, не жертвуя при этом инфраструктурой для активного отдыха и удобным сообщением с Москвой. Код пользователя: 175567Номер в базе:

Читать полностью

    Реализация объекта недвижимости приостановлена

    Не нашли подходящего объявления?

    Оставьте заявку, и наши риэлторы подберут купить дом в районе Степаново

    (0)