245 979 000 Р 3 234 900 $ или 2 770 400

Информация об помещении

1
Этаж

Состояние и оснащение

Количество этажей
2
Развернуть
Агент
+7 (938) 656-74-88
Начать чат с агентом

Помещение свободного назначения в Московская область, Дмитровский ...

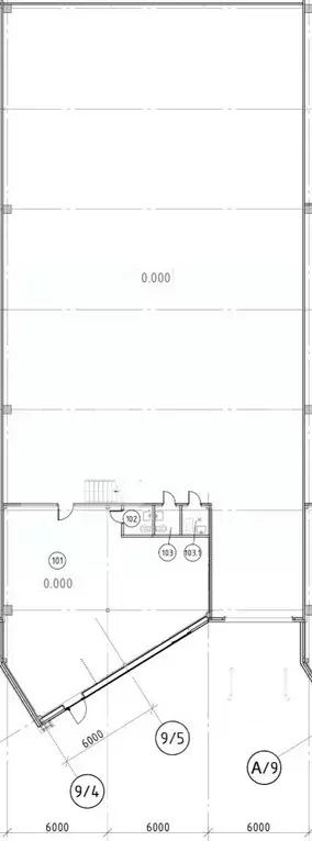
1065596 . Предлагается производственно-складское помещение общей площадью 1 639,86 м2.Корпус А, блоки 11+12.Преимущества:Локация в индустриальном парке КЛЮЧ предлагает беспрецедентные логистические преимущества.Объект интегрирован в крупнейшую транспортную развязку: всего в нескольких минутах — доступ к ЦКАД, Дмитровскому шоссе и трассе А-104.Прямое взаимодействие с крупным и стратегически важным терминально-логистическим комплексом Белый Раст с крупнейшим железнодорожным контейнерным терминалом.Цифровой промышленный коворкинг с общей площадью помещений более 100000 м2 в формате Light Industrial прошел сертификацию ассоциации по уровню готовности зданий к облачным подключениям и соответствию стандартам цифровой экономики.Парки Industrial City подключены к мощным центрам обработки данных, имеют высокий уровень надежности и безопасности.Готовая инженерная инфраструктура, оборудованные парковочные места, доступ к производственно-складским помещениям 24/7, комплексная эксплуатация объектов, охраняемая территория.Въезд на территорию бесплатный (цена входит в охрану).Земельный участок под помещением выделяется и передается в собственность.Технические характеристики:Общая площадь: 1 639,86 м2.Площадь мезонина: 255,36 кв.м.Площадь производственная: 1 143,3 кв. м.Площадь офиса: 241,2 кв.м.Шаг колонн: 18х24 м.Высота потолка: 8 м - рабочая, до низа металлоконструкций, 10 м - до потолка.Ворота - доковые 1 шт.Нагрузка на пол: 5 т/м.Мощность - 50 кВт, возможно увеличение.Количество грузовых парковочных мест - 4, легковых - 8.Сдача - 2 кв. 2026 г.Возможно приобретение в ипотеку.

Читать полностью
    Позвонить Написать
    245 979 000 Р3 234 900 $ или 2 770 400
    Агент
    +7 (938) 656-74-88
    Начать чат с агентом
    Похожие предложения
    Помещение свободного назначения в Московская область, Дмитровский ... - Фото 1
    Помещение свободного назначения в Московская область, Дмитровский ... - Фото 2
    1065596-wf . Предлагается производственно-складское помещение общей площадью 1 639,86 м2.Корпус А, блоки 11+12.Преимущества:Локация в индустриальном парке КЛЮЧ предлагает беспрецедентные логистические преимущества.Объект интегрирован в крупнейшую транспортную...
    • 1/2 эт.
    245 979 000 Р
    Агент
    +7 (938) Показать номер
    Посмотреть контакты
    Помещение свободного назначения в Московская область, Пушкино Учинская ... - Фото 1
    Помещение свободного назначения в Московская область, Пушкино Учинская ... - Фото 2
    943702-pf . Производственно-складской комплекс с арендаторами на Учинской улице, гор. Пушкино. Центр крупной промышленной зоны. Выезд на Ярославское шоссе. На территории расположены 6 помещений: 5 складских объектов площадью 2361 кв.м. и 1 офисное помещение...
    • 1/1 эт.
    250 000 000 Р
    Агент
    +7 (938) Показать номер
    Посмотреть контакты
    Помещение свободного назначения в Московская область, Мытищи городской ... - Фото 1
    Помещение свободного назначения в Московская область, Мытищи городской ... - Фото 2
    931713-wf . Склад и земельный участок в дер. Ульянково, гор. о. Мытищи. 20 минут на автомобиле от станции метро Медведково . Удобный доступ к основным транспортным маршрутам обеспечит быстрое перемещение внутри города и за его пределами. Развитая инфраструктура....
    • 1/1 эт.
    248 000 000 Р
    Агент
    +7 (938) Показать номер
    Посмотреть контакты
    Помещение свободного назначения в Московская область, Мытищи городской ... - Фото 1
    Помещение свободного назначения в Московская область, Мытищи городской ... - Фото 2
    933055-wf . Производственный комплекс в Ульянково, гор. о. Мытищи. Центр промышленной зоны. Выезд на Осташковское шоссе. Удаленность от МКАД - 16 км. Развитая инфраструктура с якорными арендаторами. Доступ 24/7. Круглосуточная охрана, КПП, видеонаблюдение....
    • 1/1 эт.
    250 000 000 Р
    Агент
    +7 (938) Показать номер
    Посмотреть контакты
    Помещение свободного назначения в Московская область, Химки ш. ... - Фото 1
    Помещение свободного назначения в Московская область, Химки ш. ... - Фото 2
    ПЛАТИМ ВОЗНАГРАЖДЕНИЕ АГЕНТАМ. Поможем с планом рассадки, ремонтом, мебелью.Готовый арендный бизнес (ГАБ). Доходность 12 , окупаемость до 8.17 лет.Два отдельно стоящих строения. Каждое по 750 м2. Находятся на первой линии, прилегают к главному въезду...
    • 1/1 эт.
    255 000 000 Р
    Агент
    +7 (933) Показать номер
    Посмотреть контакты

    Не нашли подходящего объявления?

    Оставьте заявку, и наши риэлторы подберут псн в районе Спаса-Каменки

    (0)