7 287 500 Р 90 270 $ или 78 690

Информация об помещении

1
Этаж

Состояние и оснащение

Количество этажей
1
Развернуть
Агент
+7 (915) 040-71-92
Начать чат с агентом

Склад в Московская область, Дмитровский муниципальный округ, д. ...

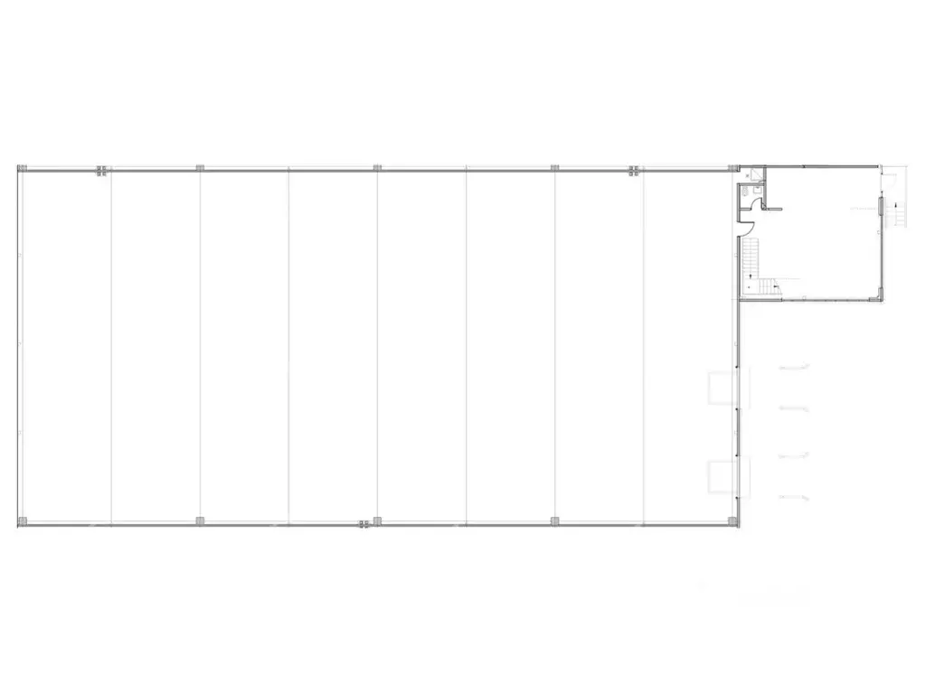
Отапливаемый склад в аренду от собственника без комиссии. Класс B. Объявление актуально. Охраняемая территория. 30 км от МКАД. Никаких скрытых платежей. Открыты к диалогу по условиям аренды. ID объекта 2976. Добавьте в избранное, чтобы не потерять Площадь: 5 300 кв. мСклад: 5 100 кв. мОфис: 200 кв. м30 км от МКАД по Рогачевскому шоссе.Технические характеристики:Нагрузка на пол: 6 т/кв. мКоличество ворот: 5 шт. (На пандусе)Температурный режим: Отапливаемый складМощность: 100 кВтВысота потолка: 10.6 мПол: Бетон-АнтипыльГотов к арендеОптоволоконные коммуникации связиПропускная системаОхранная и пожарная сигнализацииКоммерческие условия:Арендная ставка:/кв. м/год с НДС ID объекта - 2976

Читать полностью
    Позвонить Написать
    7 287 500 Р90 270 $ или 78 690
    Агент
    +7 (915) 040-71-92
    Начать чат с агентом
    Похожие предложения
    Склад в Московская область, Раменский муниципальный округ, Быково пгт ... - Фото 1
    Склад в Московская область, Раменский муниципальный округ, Быково пгт ... - Фото 2
    Услуги ответственного хранения.Уникальный номер помещения.Помещение находится на огороженной и охраняемой территории; Склад ответственного хранения классаУдобное расположение: км. до МКАД.Добавьте объявление в избранное, чтобы не упустить выгодное...
    • 1/1 эт.
    7 200 000 Р
    Агент
    +7 (980) Показать номер
    Посмотреть контакты
    Склад в Московская область, Сергиев Посад Московское ш., 9 (4800 м) - Фото 1
    Склад в Московская область, Сергиев Посад Московское ш., 9 (4800 м) - Фото 2
    Уникальный номер помещения.Аренда помещения от собственника (без комиссии);Арендные каникулы, скидки и индивидуальные улучшения - все обсуждается;Помещение находится на огороженной и охраняемой территории;Транспортная доступность: Ярославское (М-8) ш.Удаленность...
    • 1/2 эт.
    7 200 000 Р
    Агент
    +7 (980) Показать номер
    Посмотреть контакты
    Склад в Московская область, Одинцовский городской округ, д. Вырубово ... - Фото 1
    Склад в Московская область, Одинцовский городской округ, д. Вырубово ... - Фото 2
    Услуги ответственного хранения.Уникальный номер помещения.Помещение находится на огороженной и охраняемой территории; Новый склад ответственного хранения класса А.Удобное расположение: 7 км. до МКАД.Добавьте объявление в избранное, чтобы не упустить...
    • 1/3 эт.
    7 392 000 Р
    Агент
    +7 (980) Показать номер
    Посмотреть контакты
    Склад в Московская область, Ленинский городской округ, Булатниковское ... - Фото 1
    Склад в Московская область, Ленинский городской округ, Булатниковское ... - Фото 2
    ID: MR4003Адрес: Московская обл, г Видное, деревня Петрушино, ул 1-ая, д 30 (Юг, 10 км от МКАД).Общая площадь 6300.7 мОтправим презентацию, организуем просмотр в удобное для вас время
    • 1/1 эт.
    7 321 270 Р
    Агент
    +7 (915) Показать номер
    Посмотреть контакты
    Склад в Московская область, Ленинский городской округ, Булатниковское ... - Фото 1
    Склад в Московская область, Ленинский городской округ, Булатниковское ... - Фото 2
    Складское помещение 3 993.5 кв. м в ICPARK Титан от собственника. Объект на стадии активного строительства, готовность ко въезду уточняется по запросу. Направление: Юг. Шоссе: Симферопольское, Трасса М4 Дон. Расстояние от МКАД: 5 км. Характеристики:-...
    • 1/1 эт.
    7 319 994 Р
    Агент
    +7 (915) Показать номер
    Посмотреть контакты

    Не нашли подходящего объявления?

    Оставьте заявку, и наши риэлторы подберут склад в районе Рождествено

    (0)