Реализация объекта недвижимости приостановлена

Информация о коттедже

245.0 м2
Площадь
2
Этажность
7.0 cоток
Участок

Дополнительная информация

Дом продаётся вместе с участком
есть
Развернуть

Коттедж в Московская область, Дмитровский муниципальный округ, с. ...

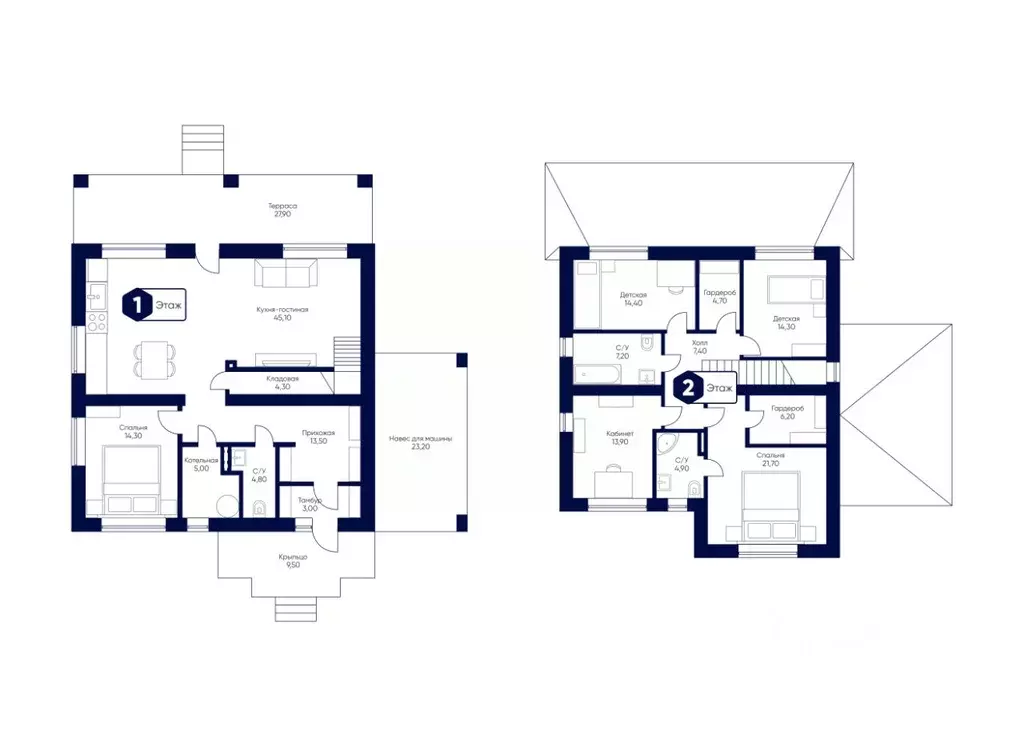
Рассрочка 0 на 2 года от застройщика Продается коттедж Комфорт в жилом комплексе Мечта .Коттедж Комфорт — идеальный дом для большой семьи. Здесь предусмотрены объединённая зона гостиной и кухни с выходом на широкую террасу, а также комната, которую можно обустроить под уютный кабинет. Это идеальное место для работы или учёбы в спокойной обстановке.Второй этаж вмещает мастер-спальню с собственной ванной и гардеробной. В двух других спальнях смогут разместиться дети разного возраста или другие члены семьи. Светлая комната отдыха станет идеальным пространством для вашего хобби.ОСНОВНЫЕ ХАРАКТЕРИСТИКИ- Общая площадь: 245.3 м- Площадь участка: 7.61 сот.- 2 этажа- 4 спальни- 3 ванные комнаты- Терраса: 27.9 м- Навес для машины- Отделка: БазоваяКоттеджный посёлок Мечта находится всего в 23 км от МКАД по Дмитровскому или Ленинградскому шоссе. Дорога до Москвы на автомобиле займёт 30 минут. Также можно воспользоваться общественным транспортом: автобусы ходят по расписанию, поэтому не придётся переживать из-за опозданий и задержек. До МЦД-1 Лобня — 15-20 минут, до станции метро Физтех — 30-35 минут на общественном транспорте.Инфраструктура включает в себя муниципальную школу и детские сады, кабинет врача общей практики, множество кафе и ресторанов, а также различные спортивные и детские площадки.В пешей доступности от посёлка расположены лес и три реликтовых озера — Долгое, Круглое и Нерское, а также реки Альба, Уча и Волгуша.Территория посёлка закрыта для посторонних, находится под охраной и патрулируется. На въезде расположен КПП. Камеры видеонаблюдения работают круглосуточно на всей территории посёлка. Вы и ваши дети будете чувствовать себя в безопасности.

Читать полностью

    Реализация объекта недвижимости приостановлена

    Не нашли подходящего объявления?

    Оставьте заявку, и наши риэлторы подберут купить дом в районе Озерецкого

    (0)