21 000 000 Р 274 000 $ или 232 900

Информация о коттедже

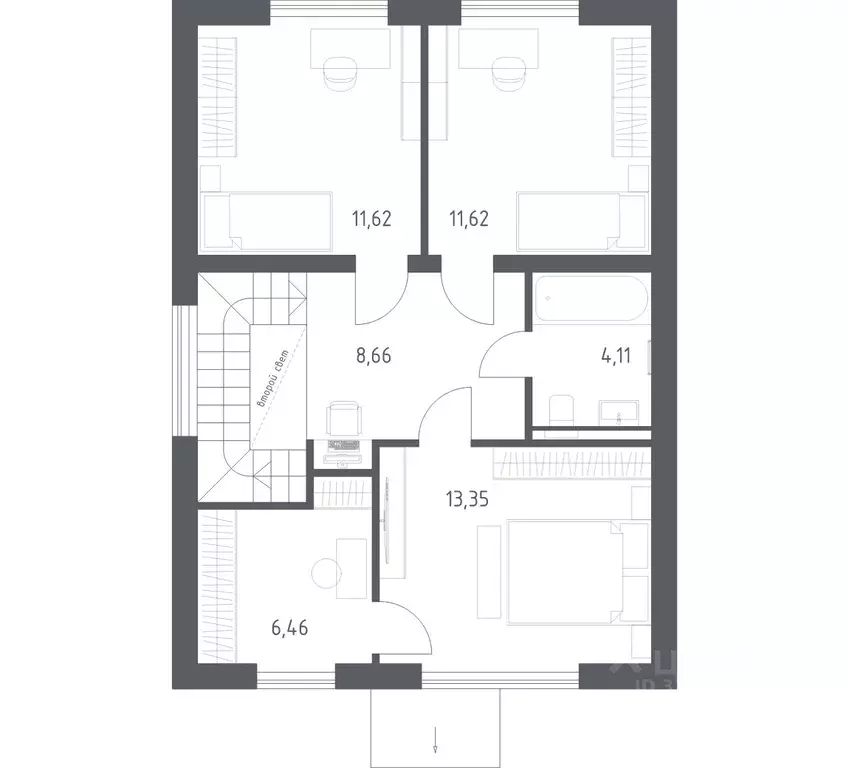
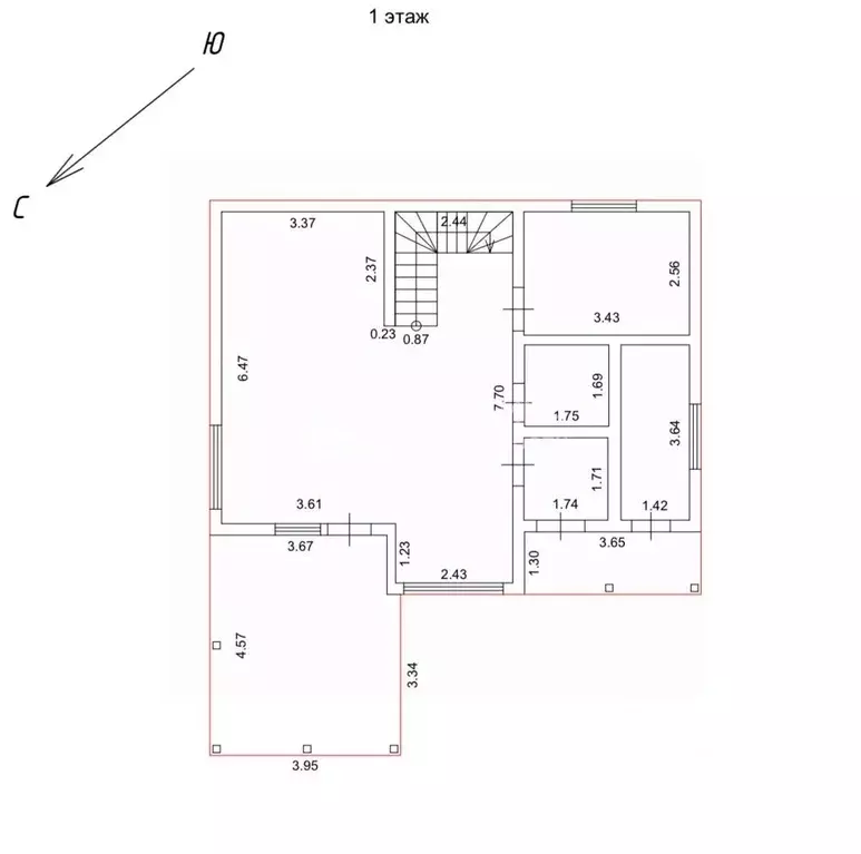
312 м2
Площадь
2
Этажность
14 cоток
Участок

Дополнительная информация

Дом продаётся вместе с участком
есть
Развернуть
Агент
+7 (987) 641-21-90
Начать чат с агентом

Дом в Московская область, Дмитровский муниципальный округ, деревня ...

Продается дом по адресу Дмитровский район д. Лучинское на участке 14 соток. Общая площадь дома 312 м2. В доме несколько уровней жилых помещений. Высота потолков 2,8-2,9 м. 1 этаж:- Прихожая, холл, санузел. - Зона кухни, столовая, гостиная, спальня. Теплые полы в коридоре, холл, столовая, кухня и санузел2 этаж: - 3 спальниЦокольный этаж:- постирочная, бойлерная, кладовая.- Электричество 15 кВт, 3-х тарифный. - Стабилизаторы напряжения.- Центральный водопровод- Система фильтрации- Газ- Газовый котел, бойлер- Отопление: газовое, цокольный этаж батареи. КУчасток 14 соток. Конструктив: фундамент монолитный. Перекрытия 1 этажа монолит, 2 этаж - деревянные .Материал стен керамзитобетонные блоки 20*40 , утепление стен пеноплекс. Внешняя отделка штукатурка. Крыша металлочерепица, отливы и желоба металл. Для внутренней отделки использовались дорогие, качественные материалы и мебель. Рядом водохранилище и леса. Приобретая недвижимость в сопровождении компании «ЭТАЖИ Вы получаете:- аудит объекта, документов и проверка собственника- юридическое сопровождение сделки- строительство кирпичных, блочных и каркасных домов - консультацию и оформление ипотеки- 20 банков для рассмотрения заявки- свои скидки в банках- экономия на ипотечном страхование- подарки от партнеровДля Вашего удобства в нашем офисе Вы можете подать заявление на ипотеку, с получением персональных преференций от агентства недвижимости, в удобное для Вас время Звоните. Код пользователя: 64326Номер в базе: 5869337

Читать полностью

    Для того, чтобы купить 2-этажный коттедж по адресу: Лучинское, позвоните по телефону +7 (987) 641-21-90. Торопитесь! Объявление №50016771373 о продаже двухэтажного коттеджа опубликовано 10 февраля 2026.

    Позвонить Написать
    21 000 000 Р274 000 $ или 232 900
    Агент
    +7 (987) 641-21-90
    Начать чат с агентом
    Похожие предложения
    Коттедж 156.5 м2 на участке 1.52 сот. - Фото 1
    Коттедж 156.5 м2 на участке 1.52 сот. - Фото 2
    Коттедж 156.5 м2 на участке 1.52 сот. - Фото 3
    Коттедж 156.5 м2 на участке 1.52 сот. - Фото 4
    Коттедж 156.5 м2 на участке 1.52 сот. - Фото 5
    Коттедж 156.5 м2 на участке 1.52 сот. - Фото 6
    Коттедж 156.5 м2 на участке 1.52 сот. - Фото 7
    Коттедж 156.5 м2 на участке 1.52 сот. - Фото 8
    Коттедж 156.5 м2 на участке 1.52 сот. - Фото 9
    Коттедж 156.5 м2 на участке 1.52 сот. - Фото 10
    Коттедж 156.5 м2 на участке 1.52 сот. - Фото 11
    Коттедж 156.5 м2 на участке 1.52 сот. - Фото 12
    Коттедж 156.5 м2 на участке 1.52 сот. - Фото 13
    Коттедж 156.5 м2 на участке 1.52 сот. - Фото 14
    Коттедж 156.5 м2 на участке 1.52 сот. - Фото 15
    Коттедж 156.5 м2 на участке 1.52 сот. - Фото 16
    Коттедж 156.5 м2 на участке 1.52 сот. - Фото 17
    блочный дом, 2 этажа, общая площадь 156.5м², кол-во комнат 3, участок 1.5 сотка

    Рассрочка 0% на 2 года от застройщика! Продается таунхаус в квартале «Земляничная поляна» жилого комплекса «Мечта». ОСНОВНЫЕ ХАРАКТЕРИСТИКИ - Общая площадь: 156.5 м - Площадь участка: 1.52 сот. - 3 этажа - 2 спальни - 2 туалетных комнаты - Высота потолка:...
    • 2 эт.
    • 156.5 м²
    • 1.5 сот.
    • 3-ком
    20 162 000 Р
    Агент
    +7 (495) Показать номер
    Посмотреть контакты
    Продается дом в г. Дмитров - Фото 1
    общая площадь 280м², участок 5 соток

    Продается 4-уровневый ( 3 этажа+ цоколь) дом, на участке 5 сот, в г. Дмитрове, ул. Новоселова, кп Дмитровское подворье . Дом 280 м.кв с отличным ремонтом, итальянской мебелью и техникой полностью готов к проживанию. В доме 3 этажа, 6 комнат: гостиная,...
    • 280 м²
    • 5 сот.
    20 000 000 Р
    Агент
    +7 (917) Показать номер
    Посмотреть контакты
    Дом в Московская область, Дмитровский муниципальный округ, д. Морозово ... - Фото 1
    Дом в Московская область, Дмитровский муниципальный округ, д. Морозово ... - Фото 2
    2 этажа, общая площадь 140м², участок 7 соток

    Код объекта: 2042930.Продается дом для круглогодичного проживания в д. Морозово с.п. Костинское Дмитровского р-на Московской области в 50 км от МКАД.Фундамент: железобетонные (ЖБ) сваи - срок службы такого фундамента превышает 70-100 лет.Надежность. Свайные...
    • 2 эт.
    • 140 м²
    • 7 сот.
    20 000 000 Р
    Агент
    +7 (915) Показать номер
    Посмотреть контакты
    Дом в Московская область, Дмитровский муниципальный округ, Дмитров Дом ... - Фото 1
    Дом в Московская область, Дмитровский муниципальный округ, Дмитров Дом ... - Фото 2
    2 этажа, общая площадь 130м², участок 5 соток

    В продаже дом площадью 130,89 м2 на участке 5,98 от застройщика Самолет в загородном проекте Дмитров Дом . Функциональная планировка, большие окна и высокие потолки. Дом без отделки. В базовую комплектацию включена металлическая входная дверь, двухкамерные...
    • 2 эт.
    • 130 м²
    • 5 сот.
    21 536 791 Р
    Агент
    +7 (919) Показать номер
    Посмотреть контакты
    Дом в Московская область, Дмитровский муниципальный округ, Дмитров Дом ... - Фото 1
    Дом в Московская область, Дмитровский муниципальный округ, Дмитров Дом ... - Фото 2
    2 этажа, общая площадь 132м², участок 6 соток

    В продаже дом площадью 132,52 м2 на участке 6,0 от застройщика Самолет в загородном проекте Дмитров Дом . Функциональная планировка, большие окна и высокие потолки. Дом без отделки. В базовую комплектацию включена металлическая входная дверь, двухкамерные...
    • 2 эт.
    • 132 м²
    • 6 сот.
    21 854 665 Р
    Агент
    +7 (919) Показать номер
    Посмотреть контакты

    Не нашли подходящего объявления?

    Оставьте заявку, и наши риэлторы подберут купить дом в районе Лучинского

    (0)