111 150 000 Р 1 428 000 $ или 1 223 000

Информация об помещении

1
Этаж

Состояние и оснащение

Количество этажей
1
Развернуть
Агент
+7 (938) 656-74-88
Начать чат с агентом

Помещение свободного назначения в Московская область, Дмитровский ...

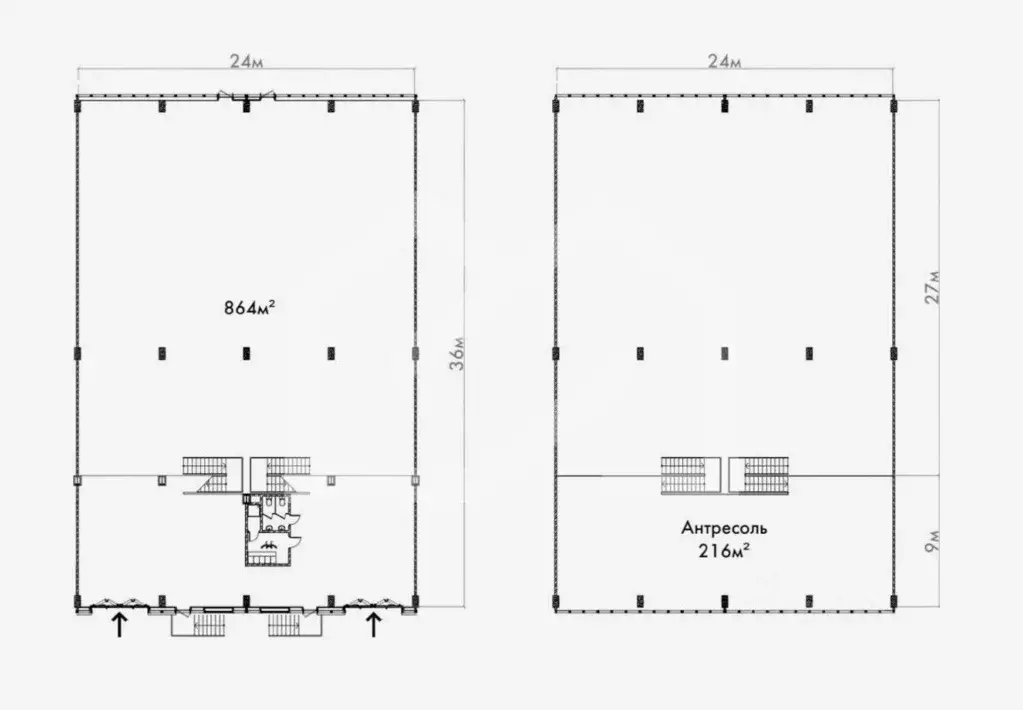
1121237. Предлагается помещение в производственно-складском комплексе Лайт Индастриал общей площадью 855 кв. м. в д. Глазово, Московская область. Очередь 1. Преимущества:Вблизи аэропорта Шереметьево. Развитая транспортная инфраструктура: выезд на ЦКАД, Рогачевское и Дмитровское шоссе. Доступ к основным магистралям. Стабильный автомобильный трафик. Сложившееся торгово-промышленное окружение. Напротив крупный жилой массив с развитой инфраструктурой. 1, 2 этаж. Приточно-вытяжная вентиляция, отопление, кондиционирование.Базовая отделка в офисном блоке. Пол: бетонный с антипылевым покрытием. Система видеонаблюдения. Возможность увеличения мощности по электричеству. Пожарная сигнализация. Подключены городские сети канализации и водопровода, геотермальное отопление. Парковки для личного и грузового транспорта с зонами отдыха для водителей.Рядом остановки общественного транспорта.Ввод объекта в эксплуатацию - апрель 2026 года. Технические характеристики:Общая площадь блока: 855 кв. м., из них:Складская площадь 1 этажа: 303 кв. м,Офисная часть: 120 кв. м, Складская площадь второго этажа: 358 кв. м.Вспомогательные помещения: 74 кв. м.2 ворот на уровне 0 с тепловой завесой.Нагрузка: 1 этаж - 5 т/м; 2 этаж - 2 т/м.Высота потолков: 1 этаж - 6 м; 2 этаж - 5 м.Электрическая мощность: от 100 кВт на блок. Лайт индастриал в д. Глазово - это современный складской комплекс с развитой внутренней инфраструктурой для комфортной работы.Так как корректный адрес отсутствует на Яндекс.Картах, введен ближайший.

Читать полностью
    Позвонить Написать
    111 150 000 Р1 428 000 $ или 1 223 000
    Агент
    +7 (938) 656-74-88
    Начать чат с агентом
    Похожие предложения
    Помещение свободного назначения в Московская область, Дмитровский ... - Фото 1
    Помещение свободного назначения в Московская область, Дмитровский ... - Фото 2
    1121237. Предлагается помещение в производственно-складском комплексе Лайт Индастриал общей площадью 855 кв. м. в д. Глазово, Московская область. Очередь 1. Преимущества:Вблизи аэропорта Шереметьево. Развитая транспортная инфраструктура: выезд на ЦКАД,...
    • 1/1 эт.
    111 150 000 Р
    Агент
    +7 (938) Показать номер
    Посмотреть контакты
    Помещение свободного назначения в Московская область, Дмитровский ... - Фото 1
    Помещение свободного назначения в Московская область, Дмитровский ... - Фото 2
    1121237. Предлагается помещение в производственно-складском комплексе Лайт Индастриал общей площадью 855 кв. м. в д. Глазово, Московская область. Очередь 1. Преимущества:Вблизи аэропорта Шереметьево. Развитая транспортная инфраструктура: выезд на ЦКАД,...
    • 1/1 эт.
    111 150 000 Р
    Агент
    +7 (938) Показать номер
    Посмотреть контакты
    Продается готовый арендный бизнес 850 м2 в ТЦ "Сокол" - Фото 1
    Продается готовый арендный бизнес 850 м2 в ТЦ "Сокол" - Фото 2
    Продается готовый арендный бизнес 850 м2 в ТЦ "Сокол" - Фото 3
    Продается готовый арендный бизнес 850 м2 в ТЦ "Сокол" - Фото 4
    Продается готовый арендный бизнес 850 м2 в ТЦ "Сокол" - Фото 5
    Продается готовый арендный бизнес 850 м2 в ТЦ "Сокол" - Фото 6
    Продается готовый арендный бизнес 850 м2 в ТЦ "Сокол" - Фото 7
    Продается готовый арендный бизнес 850 м2 в ТЦ "Сокол" - Фото 8
    Продается готовый арендный бизнес 850 м2 в ТЦ "Сокол" - Фото 9
    Продается готовый арендный бизнес 850 м2 в ТЦ "Сокол" - Фото 10
    Продается готовый арендный бизнес 850 м2 в ТЦ "Сокол" - Фото 11
    Продается готовый арендный бизнес 850 м2 в ТЦ "Сокол" - Фото 12
    Продается готовый арендный бизнес 850 м2 в ТЦ "Сокол" - Фото 13
    Продается готовый арендный бизнес 850 м2 в ТЦ "Сокол" - Фото 14
    Продается готовый арендный бизнес 850 м2 в ТЦ "Сокол" - Фото 15
    Продается готовый арендный бизнес 850 м2 в ТЦ "Сокол" - Фото 16
    Продается готовый арендный бизнес 850 м2 в ТЦ "Сокол" - Фото 17
    Продается готовый арендный бизнес 850 м2 в ТЦ "Сокол" - Фото 18
    Продается готовый арендный бизнес 850 м2 в ТЦ "Сокол" - Фото 19
    полезная площадь 850м²

    Продается готовый арендный бизнес в торговом центре "Сокол"! Преимущества помещения: - Готовый бизнес: Арендное помещение с действующим договором с арендатором на срок более года. Вы получаете стабильный доход с самого начала! - Просторные помещения:...
    • 850 м²
    • 1/1 эт.
    120 000 000 Р
    Агент
    +7 (902) Показать номер
    Посмотреть контакты
    Помещение свободного назначения (850 м) - Фото 1
    Помещение свободного назначения (850 м) - Фото 2
    Продается готовый арендный бизнес в торговом центре Сокол Преимущества помещения: - Готовый бизнес: Арендное помещение с действующим договором с арендатором на срок более года. Вы получаете стабильный доход с самого начала - Просторные помещения:...
    • 1/1 эт.
    120 000 000 Р
    Агент
    +7 (958) Показать номер
    Посмотреть контакты
    Помещение свободного назначения в Московская область, Домодедово ... - Фото 1
    Помещение свободного назначения в Московская область, Домодедово ... - Фото 2
    1134573. Предлагается склад общей площадью 1 080 кв. м в Домодедово. 1 этаж + антресоль ОСЗ. Преимущества: Парк расположен в черте города. Возможность эффективно выстроить логистику и поиск трудовых ресурсов для ведения бизнеса.Два независимых КПП.Прямой...
    • 1/2 эт.
    118 800 000 Р
    Агент
    +7 (938) Показать номер
    Посмотреть контакты

    Не нашли подходящего объявления?

    Оставьте заявку, и наши риэлторы подберут псн в районе Глазово

    (0)