240 110 000 Р 2 992 900 $ или 2 610 300

Информация об помещении

1
Этаж

Состояние и оснащение

Количество этажей
2
Развернуть
Агент
+7 (938) 656-74-88
Начать чат с агентом

Помещение свободного назначения в Московская область, Дмитровский ...

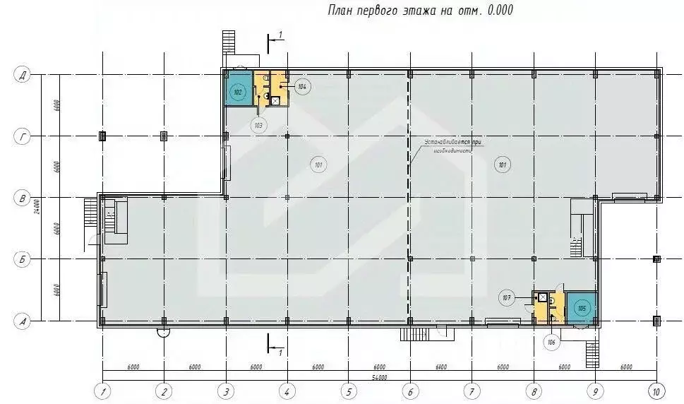
838600. Производственно-складской комплекс Лайт индастриал в д. Глазово, Московская область. Очередь 1. Вблизи аэропорта Шереметьево. Развитая транспортная инфраструктура: выезд на ЦКАД, Рогачевское и Дмитровское шоссе. Доступ к основным магистралям. Стабильный автомобильный трафик. Сложившееся торгово-промышленное окружение. Напротив крупный жилой массив с развитой инфраструктурой. 1, 2 этаж. Ввод объекта в эксплуатацию - апрель 2026 года. Технические характеристики:Общая площадь блока: 1847 кв.м., из них:Складская площадь 1 этажа: 608 кв.м.,офисная часть: 315 кв.м., складская площадь второго этажа: 785 кв.м.Вспомогательные помещения - 139 кв.м.1 ворота на уровне 0 с тепловой завесой.Приточно-вытяжная вентиляция, отопление, кондиционирование.Базовая отделка в офисном блоке. Пол: бетонный с антипылевым покрытием. Нагрузка: 1 этаж- 5 т/м; 2 этаж-2 т/м.Высота потолков: 1 этаж- 6 м; 2 этаж-5 м.Электрическая мощность: от 200 кВт на блок. Система видеонаблюдения. Возможность увеличения мощности по электричеству. Парковка на территории комплекса для разных типов а/м. Рядом остановки общественного транспорта.Лайт индастриал в д. Глазово - это современный складской комплекс с развитой внутренней инфраструктурой для комфортной работы. Пожарная сигнализация. Подключены городские сети канализации и водопровода, геотермальное отопление. Парковки для личного и грузового транспорта с зонами отдыха для водителей.

Читать полностью
    Позвонить Написать
    240 110 000 Р2 992 900 $ или 2 610 300
    Агент
    +7 (938) 656-74-88
    Начать чат с агентом
    Похожие предложения
    Помещение свободного назначения в Московская область, Дмитровский ... - Фото 1
    Помещение свободного назначения в Московская область, Дмитровский ... - Фото 2
    838600. Производственно-складской комплекс Лайт индастриал в д. Глазово, Московская область. Очередь 1. Вблизи аэропорта Шереметьево. Развитая транспортная инфраструктура: выезд на ЦКАД, Рогачевское и Дмитровское шоссе. Доступ к основным магистралям....
    • 1/2 эт.
    240 110 000 Р
    Агент
    +7 (938) Показать номер
    Посмотреть контакты
    Помещение свободного назначения в Московская область, Дмитровский ... - Фото 1
    Помещение свободного назначения в Московская область, Дмитровский ... - Фото 2
    838600. Производственно-складской комплекс Light Industrial в д. Глазово, Московская область. Очередь 1. Вблизи аэропорта Шереметьево. Развитая транспортная инфраструктура: выезд на ЦКАД, Рогачевское и Дмитровское шоссе. Доступ к основным магистралям....
    • 1/2 эт.
    240 110 000 Р
    Агент
    +7 (938) Показать номер
    Посмотреть контакты
    Помещение свободного назначения в Московская область, Звенигород ... - Фото 1
    Помещение свободного назначения в Московская область, Звенигород ... - Фото 2
    885308. Производственно-складской комплекс в Звенигороде. Первая линия Луцинского шоссе. В окружении крупный жилой массив. Развитая транспортная доступность: 5 км от ЦКАД и Звенигородского шоссе, 20 км от Минского и Киевского шоссе.Комплекс состоит из...
    • 1/1 эт.
    250 000 000 Р
    Агент
    +7 (938) Показать номер
    Посмотреть контакты
    Помещение свободного назначения в Московская область, Химки Подрезково ... - Фото 1
    Помещение свободного назначения в Московская область, Химки Подрезково ... - Фото 2
    973258. Предлагается помещение общей площадью 1 457 кв. м. в многофункциональном комплексе формата Лайт индастриал в г.о. Химки.Преимущества:Первая линия Новосходненского шоссе.Удобная транспортная доступность.Вблизи Ленинградское шоссе, МКАД и аэропорт...
    • 1/1 эт.
    233 120 000 Р
    Агент
    +7 (938) Показать номер
    Посмотреть контакты
    Помещение свободного назначения в Московская область, Серпухов ул. ... - Фото 1
    Помещение свободного назначения в Московская область, Серпухов ул. ... - Фото 2
    644268. Предлагаем отдельно стоящее здание, торговый центр с сетевыми арендаторами - Победа, МТС, аптека, Эльдорадо, Fix Price, столовая, Wildberries и другими, площадью 3 600 кв. м., расположенное в г. Серпухов. 1, 2 этаж. Без комиссии для покупателя.Преимущества...
    • 1/2 эт.
    250 000 000 Р
    Агент
    +7 (938) Показать номер
    Посмотреть контакты

    Не нашли подходящего объявления?

    Оставьте заявку, и наши риэлторы подберут псн в районе Глазово

    (0)