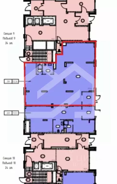
1121253. Предлагается помещение в производственно-складском комплексе Лайт Индастриал общей площадью 564 кв. м. в д. Глазово, Московская область. Очередь 1. Преимущества:Вблизи аэропорта Шереметьево. Развитая транспортная инфраструктура: выезд на ЦКАД, Рогачевское и Дмитровское шоссе. Доступ к основным магистралям. Стабильный автомобильный трафик. Сложившееся торгово-промышленное окружение. Напротив крупный жилой массив с развитой инфраструктурой. 1, 2 этаж. Приточно-вытяжная вентиляция, отопление, кондиционирование.Базовая отделка в офисном блоке. Пол: бетонный с антипылевым покрытием. Система видеонаблюдения. Возможность увеличения мощности по электричеству. Пожарная сигнализация. Подключены городские сети канализации и водопровода, геотермальное отопление. Парковки для личного и грузового транспорта с зонами отдыха для водителей.Рядом остановки общественного транспорта.Ввод объекта в эксплуатацию - апрель 2026 года. Технические характеристики:Общая площадь блока: 564 кв. м., из них:Складская площадь 1 этажа: 150 кв. м.Офисная часть: 133 кв. м.Складская площадь второго этажа: 249 кв. м.Вспомогательные помещения: 32 кв. м.1 ворота на уровне 0 с тепловой завесой.Нагрузка: 1 этаж - 5 т/м; 2 этаж - 2 т/м.Высота потолков: 1 этаж - 6 м; 2 этаж - 5 м.Электрическая мощность: от 50 кВт на блок. Лайт индастриал в д. Глазово - это современный складской комплекс с развитой внутренней инфраструктурой для комфортной работы. Так как корректный адрес отсутствует на Яндекс.Картах, введен ближайший.
Оставьте заявку, и наши риэлторы подберут псн в районе Глазово