10 300 000 Р 130 800 $ или 113 200

Информация о квартире

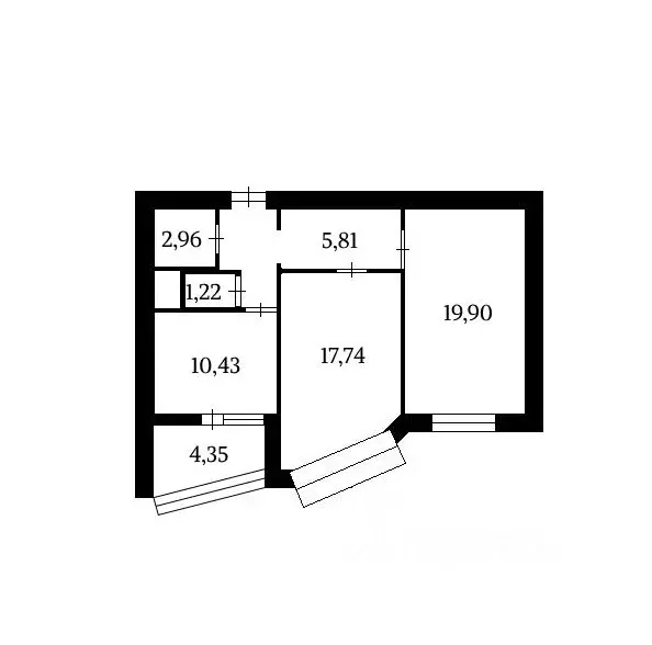
52 м2
Площадь
20 м2
Жилая
19 м2
Кухня
2
Комнаты
7
Этаж
17
Этажность

Дополнительная информация

Тип дома
панельный
Развернуть
Агент
+7 (985) 883-94-76
Начать чат с агентом

2-к кв. Московская область, Ленинский городской округ, Боброво пгт ул. ...

Код объекта: 2102385.Один взрослый собственник, более 4-х лет. Продаётся двухкомнатная квартира в посёлке городского типа Боброво, Ленинский городской округ, Московская область. Квартира расположена на седьмом этаже 17-этажного панельного дома, построенного в 2022 году. Общая площадь квартиры составляет 52 квадратных метра. Комнаты изолированы, окна выходят на улицу. В квартире выполнен косметический ремонт, что позволяет новым владельцам сразу заселиться или внести свои изменения по дизайну. Дом оборудован наземной парковкой, а также рядом есть бесплатная гродская парковка. В квартире просторная прихожая, две изолированные комнаты, большая кухня-гостинная, два санузла. Окна выходят на Крымскую улицу. В районе хорошо развита инфраструктура, школа, детский сад, поликлиника и множество различных магазинов находятся в пешей доступности, транспортная доступность (остановка общественного транспорта напротив дома) позволяет быстро добраться до Москвы м. Бульвар Дмитрия Донского за 6 минут или на автомобиле до м. Анино за 14 минут. Позвоните нам прямо сейчас, чтобы узнать больше и записаться на просмотр. Мы гарантируем безопасную сделку и юридическую поддержку нашим клиентам. Поможем одобрить ипотеку с сниженной ставкой.

Читать полностью

    Для того, чтобы купить двухкомнатную квартиру по адресу: Боброво, Крымская улица, 1, позвоните по телефону +7 (985) 883-94-76. Торопитесь! Объявление №30094733016 о продаже двухкомнатной квартиры опубликовано 05 апреля 2026.

    Позвонить Написать
    10 300 000 Р130 800 $ или 113 200
    Агент
    +7 (985) 883-94-76
    Начать чат с агентом
    Похожие предложения
    2-комнатная квартира: посёлок городского типа Боброво, Крымская улица, ... - Фото 1
    2-комнатная квартира: посёлок городского типа Боброво, Крымская улица, ... - Фото 2
    2-комнатная квартира, общая площадь 52м², жилая 20м², кухня 19м²

    Код объекта: 2102385.Один взрослый собственник, более 4-х лет. Продаётся двухкомнатная квартира в посёлке городского типа Боброво, Ленинский городской округ, Московская область. Квартира расположена на седьмом этаже 17-этажного панельного дома, построенного...
    • 52 м²
    • 2-ком
    • 7/17 эт.
    10 300 000 Р
    Агент
    +7 (958) Показать номер
    Посмотреть контакты
    2-к кв. Московская область, Ленинский городской округ, Боброво пгт ул. ... - Фото 1
    2-к кв. Московская область, Ленинский городской округ, Боброво пгт ул. ... - Фото 2
    2-комнатная квартира, общая площадь 65м², жилая 32м², кухня 10м²

    Код объекта: 2116206.Продаётся двухкомнатная квартира в Ленинском городском округе Адрес: Россия, Московская область, Ленинский городской округ, посёлок городского типа Боброво, Крымская улица, 9к1. Основные характеристики: - Год постройки: 2015. - Материал...
    • 65 м²
    • 2-ком
    • 15/17 эт.
    • панельный
    10 250 000 Р
    Агент
    +7 (915) Показать номер
    Посмотреть контакты
    2-к кв. Московская область, Ленинский городской округ, Боброво пгт ул. ... - Фото 1
    2-к кв. Московская область, Ленинский городской округ, Боброво пгт ул. ... - Фото 2
    2-комнатная квартира, общая площадь 50м², кухня 10м²

    Номер в базе:. Двухкомнатная квартира на 17 этаже. Объект отличает продуманная инфраструктура и выгодная транспортная доступность: район связан с Москвой через Симферопольское, Варшавское и Расторгуевское шоссе, что обеспечивает удобный выезд в любом...
    • 50 м²
    • 2-ком
    • 17/17 эт.
    9 100 000 Р
    Агент
    +7 (923) Показать номер
    Посмотреть контакты
    Продается 2-комнатная квартира - Фото 1
    Продается 2-комнатная квартира - Фото 2
    2-комнатная квартира, общая площадь 56м², жилая 34м², кухня 11м²

    Арт.Представляем просторную 2-х комнатную квартиру на 15 этаже 15-этажного панельного дома в ЖК Восточное Бутово . Расположение дома и подъезда очень удачное - рядом с лесным массивом, остановкой общественного транспорта и парковкой. Детский сад, школа,...
    • 56 м²
    • 2-ком
    • 15/15 эт.
    11 000 000 Р
    Агент
    +7 (903) Показать номер
    Посмотреть контакты
    3-к кв. Московская область, Ленинский городской округ, Боброво пгт ул. ... - Фото 1
    3-к кв. Московская область, Ленинский городской округ, Боброво пгт ул. ... - Фото 2
    3-комнатная квартира, общая площадь 77м², жилая 47м², кухня 10м²

    Код объекта: 2089116.Ищете семейное жильё в современном районе или выгодный объект для инвестиций? Обратите внимание на это предложение Почему стоит выбрать именно эту квартиру?Квартира без ремонта. Вам не придётся переплачивать за чужой ремонт — можно...
    • 77 м²
    • 3-ком
    • 6/17 эт.
    • панельный
    10 000 000 Р
    Агент
    +7 (985) Показать номер
    Посмотреть контакты

    Не нашли подходящего объявления?

    Оставьте заявку, и наши риэлторы подберут квартиру в районе Боброво

    (0)