5 853 960 Р 72 520 $ или 61 940

Информация о квартире

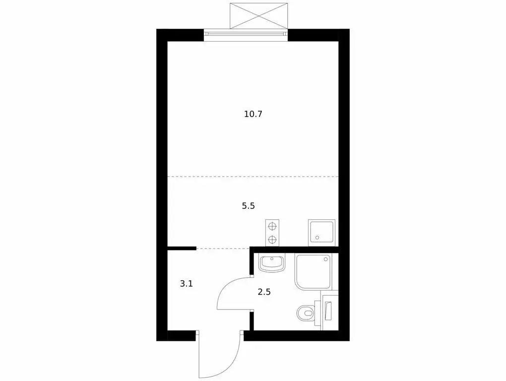
20 м2
Площадь
9 м2
Жилая
5 м2
Кухня
студия
Комнат
16
Этаж
25
Этажность

Дополнительная информация

Тип дома
монолит
Развернуть
Агент
+7 (923) 075-66-41
Начать чат с агентом

Студия Московская область, Ленинский городской округ, Боброво пгт ...

Продаётся квартира-студия площадью 20,7 кв.м на 16 этаже 25 этажного дома (Корпус 47, Секция 3) проекта ПИК Восточное Бутово. Светлый просторный подъезд на уровне земли, функциональная планировка, большие окна, предчистовая отделка. Жилой квартал Восточное Бутовоасположен в 5 км от МКАД по Симферопольскому шоссе, в Ленинском районе Московской области. Это экологически благоприятное место по соседству с Бутовским лесопарком. В 25 минутах на машине - станции метро и МЦД Бутово . В Восточном Бутово уже открылись пять детских садов из десяти запланированных и одна школа из четырёх. Внутри квартала будет две поликлиники, одна из которых уже работает. В проекте два пешеходных бульвара - по одному из них уже можно гулять и кататься на велосипеде. В закрытых дворах-парках не будет автомобилей - мы построим многоуровневый паркинг, чтобы сделать район ещё более комфортным и безопасным для жителей. Артикул 642281 (Застройщик ООО Лотан )

Читать полностью
    Позвонить Написать
    5 853 960 Р72 520 $ или 61 940
    Агент
    +7 (923) 075-66-41
    Начать чат с агентом
    Похожие предложения
    Студия Московская область, Ленинский городской округ, Боброво пгт ... - Фото 1
    Студия Московская область, Ленинский городской округ, Боброво пгт ... - Фото 2
    студия, общая площадь 21м², жилая 10м², кухня 5м²

    Продаётся квартира-студия площадью 21,8 кв.м на 25 этаже 25 этажного дома (Корпус 47, Секция 3) проекта ПИК Восточное Бутово. Светлый просторный подъезд на уровне земли, функциональная планировка, большие окна, предчистовая отделка. Жилой квартал Восточное...
    • 21 м²
    • студия-ком
    • 25/25 эт.
    • монолит
    5 820 600 Р
    Агент
    +7 (923) Показать номер
    Посмотреть контакты
    Студия Московская область, Ленинский городской округ, Боброво пгт ... - Фото 1
    Студия Московская область, Ленинский городской округ, Боброво пгт ... - Фото 2
    студия, общая площадь 21м², жилая 10м², кухня 5м²

    Продаётся квартира-студия площадью 21,8 кв.м на 8 этаже 25 этажного дома (Корпус 47, Секция 3) проекта ПИК Восточное Бутово. Светлый просторный подъезд на уровне земли, функциональная планировка, большие окна, предчистовая отделка. Жилой квартал Восточное...
    • 21 м²
    • студия-ком
    • 8/25 эт.
    • монолит
    5 822 780 Р
    Агент
    +7 (923) Показать номер
    Посмотреть контакты
    Студия Московская область, Ленинский городской округ, Боброво пгт ... - Фото 1
    Студия Московская область, Ленинский городской округ, Боброво пгт ... - Фото 2
    студия, общая площадь 21м², жилая 10м², кухня 5м²

    Продаётся квартира-студия площадью 21,8 кв.м на 19 этаже 25 этажного дома (Корпус 47, Секция 3) проекта ПИК Восточное Бутово. Светлый просторный подъезд на уровне земли, функциональная планировка, большие окна, предчистовая отделка. Жилой квартал Восточное...
    • 21 м²
    • студия-ком
    • 19/25 эт.
    • монолит
    5 818 420 Р
    Агент
    +7 (923) Показать номер
    Посмотреть контакты
    Студия Московская область, Ленинский городской округ, Боброво пгт ... - Фото 1
    Студия Московская область, Ленинский городской округ, Боброво пгт ... - Фото 2
    студия, общая площадь 22м², жилая 10м², кухня 5м²

    Продаётся квартира-студия площадью 22,4 кв.м на 20 этаже 25 этажного дома (Корпус 47, Секция 3) проекта ПИК Восточное Бутово. Светлый просторный подъезд на уровне земли, функциональная планировка, большие окна, предчистовая отделка. Жилой квартал Восточное...
    • 22 м²
    • студия-ком
    • 20/25 эт.
    • монолит
    5 974 080 Р
    Агент
    +7 (923) Показать номер
    Посмотреть контакты
    Квартира-студия: посёлок городского типа Боброво, ЖК Восточное Бутово, ... - Фото 1
    Квартира-студия: посёлок городского типа Боброво, ЖК Восточное Бутово, ... - Фото 2
    студия, общая площадь 21м²

    Продаётся квартира-студия площадью 21.80 кв.м на 23 этаже 25 этажного дома (Корпус 48, секция 4) проекта ПИК Восточное Бутово. Светлый просторный подъезд на уровне земли, функциональная планировка, большие окна, с отделкой.Жилой квартал «Восточное Бутовоасположен...
    • 21 м²
    • студия-ком
    • 23/25 эт.
    5 962 300 Р
    Агент
    +7 (983) Показать номер
    Посмотреть контакты

    Не нашли подходящего объявления?

    Оставьте заявку, и наши риэлторы подберут квартиру в новостройке в районе Боброво

    (0)