55 000 Р 721 $ или 602

Информация об помещении

1
Этаж

Состояние и оснащение

Количество этажей
18
Развернуть
Агент
+7 (905) 707-05-95
Начать чат с агентом

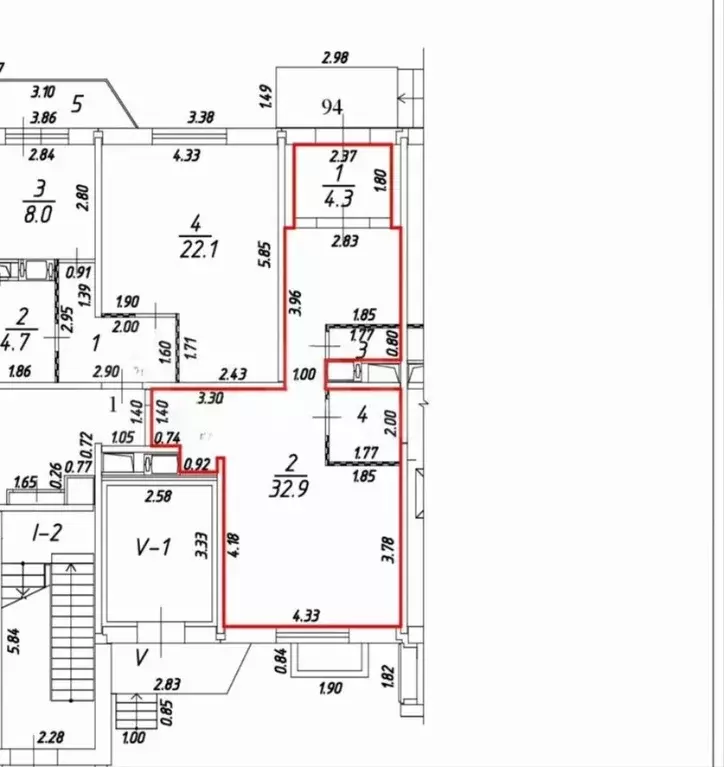
Помещение свободного назначения (66 м)

Идеальное помещение в аренду для салона красоты или офисаВаш идеальный бизнес начинается здесьПредставляем уникальное коммерческое пространство в городе Дмитров, идеально подходящее для салона красоты, парикмахерской, медицинского центра или современного офиса. Это идеальное решение для бизнеса, которое обеспечит комфорт вашим клиентам и сотрудникам.Преимущества нашего помещения:Удобная планировка: Всего три просторные комнаты, две смежные и одна отдельная, позволяют оптимально распределить рабочие зоны и зону ожидания клиентов.Комфортные условия: Санузел, раздельный вход на две организации, общий холл создают дополнительное удобство и независимость для каждого арендатора.Безопасность превыше всего: Установлены охранная и пожарная сигнализации, имеются тревожные кнопки, обеспечивается круглосуточный мониторинг выезда собственными группами быстрого реагирования.Реклама и продвижение: Возможность разместить рекламу на фасаде здания позволит привлечь внимание потенциальных клиентов и значительно повысит вашу видимость.Современный ремонт и климат-контроль: Качественный ремонт помещений дополнен тремя кондиционерами, обеспечивающими комфортные условия круглый год.Свободная организация мокрых точек: Организуйте кухню или санитарные узлы там, где это удобно именно вам.Доступ круглосуточно: Никаких ограничений по рабочему графику, ваше дело работает тогда, когда это выгодно вам.Расположение: город Дмитров, улица Школьная, дом 10.Это идеальное помещение для открытия собственного дела или расширения существующего бизнеса. Создавайте уют и комфорт вместе с нами Звоните и бронируйте просмотр прямо сейчас Ваш успех начинается здесь

Читать полностью
    Позвонить Написать
    55 000 Р721 $ или 602
    Агент
    +7 (905) 707-05-95
    Начать чат с агентом
    Похожие предложения
    Помещение свободного назначения в Московская область, Звенигород ... - Фото 1
    Помещение свободного назначения в Московская область, Звенигород ... - Фото 2
    Сдаётся помещение 34 м в современном торговом павильоне (НТО), Звенигород — готово к запуску ПВЗАдрес: МО, Одинцовский г.о., г. Звенигород, ул. Василия Фабричного, 20.Площадка огорожена и охраняется, бесплатная парковка, удобный подъезд, выполняются работы...
    • 1/1 эт.
    54 400 Р
    Агент
    +7 (916) Показать номер
    Посмотреть контакты
    Помещение свободного назначения в Московская область, Балашиха ... - Фото 1
    Помещение свободного назначения в Московская область, Балашиха ... - Фото 2
    Предлагается в аренду помещение свободного назначения с двумя комнатами: одна (35 м2) на первом этаже, вторая (35 м2) на втором этаже двухэтажного здания, всего площадь 70,00 кв.м. Расположено недалеко от метро Новокосино, что обеспечивает удобное транспортное...
    • 1/2 эт.
    55 000 Р
    Агент
    +7 (916) Показать номер
    Посмотреть контакты
    Помещение свободного назначения в Московская область, Одинцовский ... - Фото 1
    Помещение свободного назначения в Московская область, Одинцовский ... - Фото 2
    Номер лота: 12901 ВЫСОКИЕ ЖАВОРОНКИ Россия, Московская область, Одинцовский городской округ, деревня Малые Вязёмы, жилой комплекс Высокие Жаворонки, Шоссе: Можайское Общая площадь: 42.00 м.кв. Сдается помещение свободного назначения общей...
    • 1/12 эт.
    55 000 Р
    Агент
    +7 (985) Показать номер
    Посмотреть контакты
    Помещение свободного назначения в Московская область, Раменское ул. ... - Фото 1
    Помещение свободного назначения в Московская область, Раменское ул. ... - Фото 2
    Сдается помещение 37 м, свободного назначения. Отдельный вход с улицы. Помещение состоит из 2 комнат, санузел, 1 мокрая точка.Сдаю по договору ИП.Аренда 55 тыс +квитанция.Собственник.
    • 1/12 эт.
    55 000 Р
    Агент
    +7 (986) Показать номер
    Посмотреть контакты
    Помещение свободного назначения в Московская область, Люберцы ... - Фото 1
    Помещение свободного назначения в Московская область, Люберцы ... - Фото 2
    Номер лота: 12776 ЖК НОВЫЕ ОСТРОВЦЫ Россия, Московская область, городской округ Люберцы, деревня Островцы, Баулинская улица, Шоссе: Рязанское Общая площадь: 25.00 м.кв. Готовый бизнес Сдается помещение, оборудованное под парикмахерский...
    • 1/17 эт.
    54 000 Р
    Агент
    +7 (985) Показать номер
    Посмотреть контакты

    Не нашли подходящего объявления?

    Оставьте заявку, и наши риэлторы подберут псн в районе Дмитрова

    (0)