1 176 000 Р 15 290 $ или 12 910

Информация об помещении

1
Этаж

Состояние и оснащение

Количество этажей
2
Развернуть
Агент
+7 (915) 374-57-90
Начать чат с агентом

Производственное помещение в Московская область, Дмитров Промышленная ...

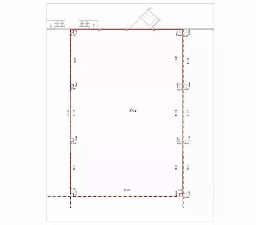
Арт.Сдается в аренду отапливаемое производственное помещение общей площадью 1600 кв.м. с крановым оборудованием, на огороженной охраняемой территории.Габариты основного помещения - 24м х 48 м.Высота потолков до 14м.Большие ворота в ноль.Центральные коммуникации (вода, канализация, отопление). Интернет.Электрическая мощность 300 кВт, возможно увеличение по запросу (условия обсуждаются дополнительно). Мостовой кран грузоподъемностью 5т (возможно увеличение грузоподъемности до 10 т) Имеются дополнительные производственные, бытовые и офисные помещения, с/у.Огороженная, охраняемая территория.Въезд 24/7.Удобная локация

Читать полностью
    Позвонить Написать
    1 176 000 Р15 290 $ или 12 910
    Агент
    +7 (915) 374-57-90
    Начать чат с агентом
    Похожие предложения
    Производственное помещение в Московская область, Дмитров Промышленная ... - Фото 1
    Производственное помещение в Московская область, Дмитров Промышленная ... - Фото 2
    Арт.Аренда производственно-складского помещения 1600 м в Дмитрове: Мостовой кран 10т, 400 кВт Предлагаем в аренду функциональное производственно-складское помещение площадью 1600 м в городе Дмитров. Это идеальное решение для машиностроения, металлообработки,...
    • 1/1 эт.
    1 184 000 Р
    Агент
    +7 (916) Показать номер
    Посмотреть контакты
    Производственное помещение в Московская область, Пушкинский городской ... - Фото 1
    Производственное помещение в Московская область, Пушкинский городской ... - Фото 2
    989614-wi . Строящиеся отапливаемые складские помещения в Пушкино (два одинаковых рядом стоящих здания по 1440 м2). Первая линия Старого Ярославского шоссе. Так как корректный адрес отсутствует на Яндекс.Картах, введен ориентировочный. Быстрый выезд на...
    • 1/1 эт.
    1 296 000 Р
    Агент
    +7 (938) Показать номер
    Посмотреть контакты
    Производственное помещение в Московская область, Подольск городской ... - Фото 1
    Производственное помещение в Московская область, Подольск городской ... - Фото 2
    Арт.Предлагается в аренду новое производственно-складское здание площадью 1120 м2.Чистая высота под фермами — 6 метров, максимальная высота — до 8.5 метров.Нагрузка на пол — 6 тонн на 1 м (равномерно распределенная). Полы бетонные с топинговым покрытием.Въездные...
    • 1/1 эт.
    1 200 000 Р
    Агент
    +7 (915) Показать номер
    Посмотреть контакты
    Производственное помещение в Московская область, Подольск ... - Фото 1
    Производственное помещение в Московская область, Подольск ... - Фото 2
    Арт.Аpeнда нaпpямую oт cобcтвенникa без комисcий, процeнтов и допoлнитeльных надбавoк Предлагаем хорошую площадь под склад, производство, класс В 1500 кв.м. Склад расположен в Южном направлении по адресу: Московская область, г. Подольск, Симферопольское...
    • 1/1 эт.
    1 275 000 Р
    Агент
    +7 (917) Показать номер
    Посмотреть контакты
    Производственное помещение в Московская область, Балашиха городской ... - Фото 1
    Производственное помещение в Московская область, Балашиха городской ... - Фото 2
    Арт.Предлагается в аренду производственно-складское общей площадью1250 кв м.Рабочая высота потолка-9м.Ворота-2 шт в Ноль.Электричество-150квт.Все коммуникации, удобные подьездные пути, огорожен,охрана, режим работы 24/7Оперативный показ
    • 1/1 эт.
    1 250 000 Р
    Агент
    +7 (915) Показать номер
    Посмотреть контакты

    Не нашли подходящего объявления?

    Оставьте заявку, и наши риэлторы подберут производственное помещение в районе Дмитрова

    (0)