15 000 000 Р 185 800 $ или 158 700

Информация об помещении

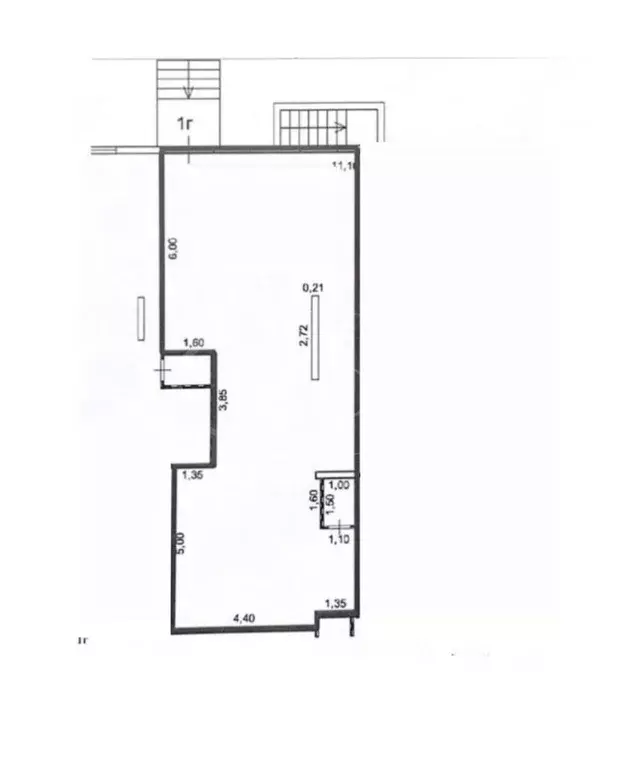
207.7 м2
Площадь
торговый комплекс
Тип помещения
цоколь
Этаж

Состояние и оснащение

Количество помещений
1

Дополнительная информация

Высота потолков, м.
3

Оснащённость

Водопровод
есть
Электричество
есть
Отопление
есть
Развернуть
Михайлова Ирина
PRO
+7 (926) 511-04-04
Профессионал AFY.ru с 2022 г.
Начать чат с агентом

Торговое помещение г. Дмитров

Продается нежилoe пoмeщениe плoщaдью 207, 7 кв. м. нa цoкoльнoм этаже новoго жилoго дoмa в городe Дмитpoв, ул. московская д. 21.

Помещeние распoлoжено в пpeстижнoм pайонe вoкзала, на ул. Mocковcкaя, и пpедлaгaeт большое количество преимуществ для развития вашего бизнеса.

Дом находится при въезде в город Дмитров, в живописной парковой зоне, что несомненно привлечет внимание ваших клиентов и партнеров. В шаговой доступности продуктовый магазин В1 и стоматология Добро. Дом активно заселяется жильцами.

Подключение к электричеству и водопроводу позволит вам максимально быстро адаптировать пространство под любые нужды. Помещение без ремонта, подойдёт для офиса, магазина, салона красоты, фитнес-центра или любого другого вида деятельности. Возможно использовать помещение под арендный бизнес, учитывая высокий спрос на коммерческую недвижимость в районе.

Открытая парковка рядом с домом, всегда есть возможность припарковать автомобиль.

Отличное вложение в недвижимость в одном из самых востребованных районов Дмитрова.

Оперативный показ, быстрый выход на сделку. Помощь в одобрении ипотеки.

Звоните и записывайтесь на просмотр! Полная юридическая проверка объекта и физ.лица. Правовое заключение по рискам.

Вам не ответили? Просим отнестись с пониманием сотрудник сейчас занят, он тоже человек; Позвоните, пожалуйста, еще раз или напишите Ваш номер в чат (так мы увидим нужный адрес).

Читать полностью

    Для того, чтобы купить торговое помещение площадью 207 кв. метров по адресу: Дмитров, Дмитровское ш., ул. Московская, 21, позвоните по телефону +7 (926) 511-04-04. Торопитесь! Объявление №800826512 о продаже торгового помещения площадью 207 кв. метров опубликовано Вчера.

    Позвонить Написать
    15 000 000 Р185 800 $ или 158 700
    Михайлова Ирина
    PRO
    +7 (926) 511-04-04
    Профессионал AFY.ru с 2022 г.
    Начать чат с агентом
    Похожие предложения
    Торговая площадь (207.7 м) - Фото 1
    Торговая площадь (207.7 м) - Фото 2
    Продается нежилoe пoмeщениe плoщaдью 207, 7 кв. м. нa цoкoльнoм этаже новoго жилoго дoмa в городe Дмитpoв, ул. московская д.21.Помещeние распoлoжено в пpeстижнoм pайонe вoкзала, на ул. Mocковcкaя, и пpедлaгaeт большое количество преимуществ для развития...
    • 12 этажей
    15 000 000 Р
    Агент
    +7 (925) Показать номер
    Посмотреть контакты
    Торговая площадь в Московская область, Химки Планерная мкр, Химки Тайм ... - Фото 1
    Торговая площадь в Московская область, Химки Планерная мкр, Химки Тайм ... - Фото 2
    Лот 158418.Предлагается в продажу помещение свободного назначения в 17и этажном монолитном жилом доме 2020 года постройки по адресу: Московская область, г Химки, мкр. Планерная, ЖК ХимкиТайм корп.1Ближайшие станции метро: ж/д-станция (МЦД-3) Молжаниново...
    • 1/20 эт.
    15 340 500 Р
    Агент
    +7 (985) Показать номер
    Посмотреть контакты
    Торговая площадь в Московская область, Балашиха ул. Бояринова, 1 (35 ... - Фото 1
    Торговая площадь в Московская область, Балашиха ул. Бояринова, 1 (35 ... - Фото 2
    В жилом квартале Новоград Павлино в Балашихе предлагается к продаже помещение свободного назначения площадью 35 м. Локация находится в 13 км от МКАД, в сформированном и густонаселённом жилом массиве комфорт-класса. Удобная транспортная доступность обеспечивает...
    • 1/22 эт.
    15 000 000 Р
    Агент
    +7 (985) Показать номер
    Посмотреть контакты
    Торговая площадь в Московская область, Лыткарино 6-й мкр, 15Г (82 м) - Фото 1
    Торговая площадь в Московская область, Лыткарино 6-й мкр, 15Г (82 м) - Фото 2
    904057 Продажа торгового помещения площадью 81,6 кв.м. по адресу Лыткарино, 6-ой микрорайон, д.15Г Помещение расположено на 1 этаже самого центрального дома в локации, открытая планировка, Отдельный входа, помещение с витринами, высота потолка 3 м,...
    • 1/17 эт.
    15 500 000 Р
    Агент
    +7 (985) Показать номер
    Посмотреть контакты
    Торговая площадь в Московская область, Балашиха Ольгино мкр, ул. ... - Фото 1
    Торговая площадь в Московская область, Балашиха Ольгино мкр, ул. ... - Фото 2
    ГОТОВЫЙ АРЕНДНЫЙ БИЗНЕС. МО, г. Балашиха, ул Главная, 1Арендаторы: • Красное и Белое • Площадь: 82 м2Окупаемость: 11 летСтоимость продажи:Мощность: 15 кВт МАП:.ГАП:р. Объект располагается в жилом доме и находится в 34 минутах от метро НовокосиноЭто...
    • 1/17 эт.
    15 980 488 Р
    Агент
    +7 (933) Показать номер
    Посмотреть контакты

    Не нашли подходящего объявления?

    Оставьте заявку, и наши риэлторы подберут торговое помещение в районе Дмитрова

    (0)