80 000 000 Р 1 027 800 $ или 880 300

Информация об помещении

1
Этаж

Состояние и оснащение

Количество этажей
1
Развернуть
Агент
+7 (915) 460-66-58
Начать чат с агентом

Производственное помещение в Московская область, Дмитров Промышленная ...

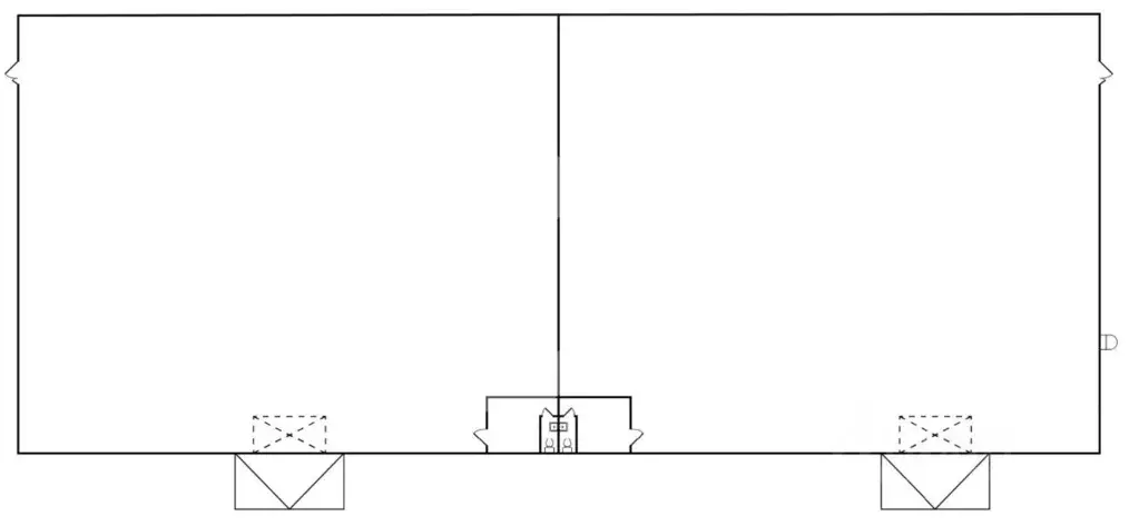
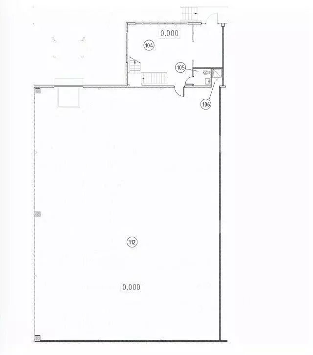
Продаётся производственное помещение, площадью 1843 м2: отапливаемый цех 1000 м2, неотапливаемый цех 700 м2. Общежитие 150 м2 на 20 человек (5 жилых комнат, кухня-столовая, душевые, туалеты, раздевалки). Мастерские 30 м2, Офис 20 м2.Производственное помещение: бетонированный пол, потолки 6 м, имеются балки для тельферов; мастерские: помещения, оборудованные станками б/у.Коммуникации: электричество 500 кВт (два ввода по 250 кВт), магистральные водоснабжение и водоотведение, промышленное тепло и два резервных котла на солярке. Территория, прилегающая к производственному помещению, составляет 6500 м2. Общая площадь участка - 8281 м2. Частично забетонирована, замощена бетонными плитами, асфальтовой крошкой.Объект находится в промышленной зоне г.Дмитрова в 60 км от МКАД, между вторым и третьим (2 км) транспортными кольцами. Рядом две грузовые железнодорожные станции.

Читать полностью
    Позвонить Написать
    80 000 000 Р1 027 800 $ или 880 300
    Агент
    +7 (915) 460-66-58
    Начать чат с агентом
    Похожие предложения
    Производственное помещение в Московская область, Электросталь ... - Фото 1
    Производственное помещение в Московская область, Электросталь ... - Фото 2
    Арт.Продается производственное здание, 3000 кв.м., под пищевое производство (ранее в нем производились сухарики и чипсы, орехи, семечки с максимальной мощностью до 500 тонн в месяц) с прилегающим земельным участком, площадью 20 соток. Высота потолков...
    • 1/3 эт.
    80 000 000 Р
    Агент
    +7 (981) Показать номер
    Посмотреть контакты
    Производственное помещение в Московская область, Люберцы ... - Фото 1
    Производственное помещение в Московская область, Люберцы ... - Фото 2
    1157322. Предлагается производственно-складское помещение общей площадью 648 кв. м. в г. Люберцы.Преимущества:Современный складской комплекс на территории индустриального парка Завод , Люберцы. Центр крупной промышленной зоны. 6 минут пешком до станции...
    • 1/1 эт.
    81 000 000 Р
    Агент
    +7 (938) Показать номер
    Посмотреть контакты
    Производственное помещение в Московская область, Солнечногорск ... - Фото 1
    Производственное помещение в Московская область, Солнечногорск ... - Фото 2
    1119257. Предалается складское помещение общей площадью 553 кв. м. в индустриальном парке Есипово-4. Корпус: F.Преимущества:32 км. от МКАД по Ленинградскому шоссе, вблизи трассы А-107 и ЦКАД. Комплекс складских помещений. Развитая транспортная инфраструктура....
    • 1/2 эт.
    80 185 000 Р
    Агент
    +7 (938) Показать номер
    Посмотреть контакты
    Производственное помещение в Московская область, Солнечногорск ... - Фото 1
    Производственное помещение в Московская область, Солнечногорск ... - Фото 2
    979862. Предалается складское помещение общей площадью 553 кв. м. в индустриальном парке Есипово-5. Корпус: FПреимущества:32 км. от МКАД по Ленинградскому шоссе, вблизи трассы А-107 и ЦКАД. Комплекс складских помещений. Развитая транспортная инфраструктура....
    • 1/2 эт.
    80 974 936 Р
    Агент
    +7 (938) Показать номер
    Посмотреть контакты
    Производственное помещение в Московская область, Раменский ... - Фото 1
    Производственное помещение в Московская область, Раменский ... - Фото 2
    843860. Производственно-складское помещение в комплексе Лайт индастриал в с. Зеленая Слобода, гор. Раменское. Выезд на Новорязанское и Володарское шоссе, 20 км от МКАД, 32 км до ЦКАД. Развитая транспортная доступность для сотрудников: 22 мин. до Жуковского,...
    • 1/1 эт.
    79 200 000 Р
    Агент
    +7 (938) Показать номер
    Посмотреть контакты

    Не нашли подходящего объявления?

    Оставьте заявку, и наши риэлторы подберут производственное помещение в районе Дмитрова

    (0)