26 527 680 Р 340 800 $ или 291 900

Информация об помещении

1
Этаж

Состояние и оснащение

Количество этажей
1
Развернуть
Агент
+7 (916) 086-88-35
Начать чат с агентом

Склад в Московская область, Чехов Губернский мкр, ул. Земская, 21 ...

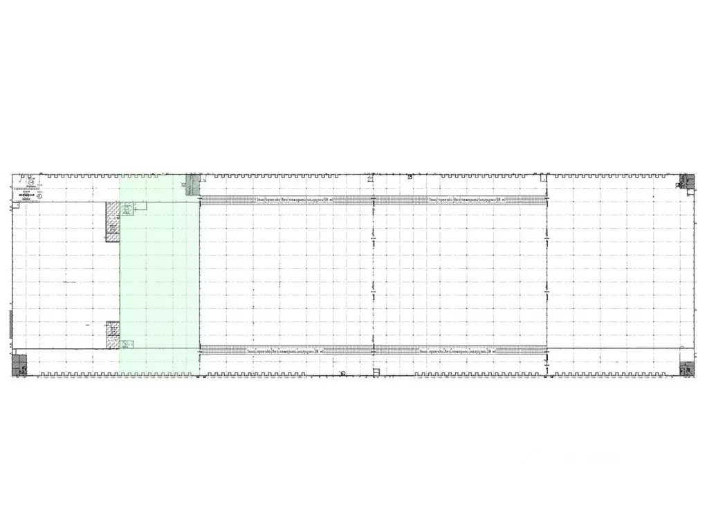
Предлагается в аренду помещение класса А площадью 12200 м2. Местоположение: МО, г/о Чехов, с. Новоселки.Площадь склада - 9800 м2, площадь мезонина - 1300 м2, площадь офисов - 800 м2, рампа - 300 м2.Высота потолков - 12м.Полы - бетон с антипылевым покрытием.Нагрузка на пол - от 6 т/м2.Шаг колонн - 12х24 м.Ворота - доки.Пожарная сигнализация, спринклерная система пожаротушения.Круглосуточный режим работы, охраняемая территория.ID: L2584

Читать полностью
    Позвонить Написать
    26 527 680 Р340 800 $ или 291 900
    Агент
    +7 (916) 086-88-35
    Начать чат с агентом
    Похожие предложения
    Склад в Московская область, Чехов Губернский мкр, ул. Земская, 21 ... - Фото 1
    Склад в Московская область, Чехов Губернский мкр, ул. Земская, 21 ... - Фото 2
    Предлагается в аренду помещение класса А площадью 24160 м2. Местоположение: МО, г/о Чехов, с. Новоселки.Площадь склада - 19300 м2, площадь мезонина - 2600 м2, площадь офисов - 1700 м2, рампа - 560 м2.Высота потолков - 12м.Полы - бетон с антипылевым...
    • 1/1 эт.
    26 527 680 Р
    Агент
    +7 (916) Показать номер
    Посмотреть контакты
    Склад в Московская область, Чехов муниципальный округ, Столбовая пгт ... - Фото 1
    Склад в Московская область, Чехов муниципальный округ, Столбовая пгт ... - Фото 2
    ЛотПредложение от Собственника Предлагается в аренду помещение под склад площадью 27000.00 м2. Помещение расположено 45 км от г Чехов. 1 этаж. Отдельный вход. Есть круглосуточный доступ. Планировка - открытая. Подъезд еврофуры. Есть парковка. 4000 кВт...
    • 1/3 эт.
    27 000 000 Р
    Агент
    +7 (986) Показать номер
    Посмотреть контакты
    Склад в Московская область, Чехов муниципальный округ, Столбовая пгт ... - Фото 1
    Склад в Московская область, Чехов муниципальный округ, Столбовая пгт ... - Фото 2
    Уникальный номер помещения.Производственно-складская база класса В в Чеховском районе.Удобное расположение: 45 км. до МКАД.Добавьте объявление в избранное, чтобы не упустить выгодное предложение Общая площадь 27 000 м2Высота потолка от 5 до 10 мРовный...
    • 1/3 эт.
    27 000 000 Р
    Агент
    +7 (980) Показать номер
    Посмотреть контакты
    Склад в Московская область, Домодедово городской округ, д. Кучино 50Б ... - Фото 1
    Склад в Московская область, Домодедово городской округ, д. Кучино 50Б ... - Фото 2
    Складское помещение 12 727.5 кв. м в NK Парк Домодедово 2 .Направление: Юг. Шоссе: Симферопольское, Каширское, Трасса М4 Дон. Расстояние от МКАД: 17 км. Характеристики:- Класс: A; - Ворота: Доки; - Тип склада: Сухой склад; - Высота потолков: 12 м; -...
    • 1/1 эт.
    27 695 040 Р
    Агент
    +7 (915) Показать номер
    Посмотреть контакты
    Склад в Московская область, Раменский муниципальный округ, ... - Фото 1
    Склад в Московская область, Раменский муниципальный округ, ... - Фото 2
    В аренду предлагается теплый склад класса A.Московская обл, Раменский р-н, село Софьино, тер Логистический технопарк Софьино, к 1, 1 этаж (Юго-Восток, 32 км от МКАД).Общая площадь 20740 м (из них по полу:18280м мезонина:1160м офиса:1300м ).Доки: 24Полы...
    • 1/1 эт.
    26 778 797 Р
    Агент
    +7 (916) Показать номер
    Посмотреть контакты

    Не нашли подходящего объявления?

    Оставьте заявку, и наши риэлторы подберут склад в районе Чехова

    (0)