4 800 000 Р 62 950 $ или 53 850

Информация о квартире

47 м2
Площадь
29 м2
Жилая
9 м2
Кухня
2
Комнаты
4
Этаж
5
Этажность

Дополнительная информация

Тип дома
кирпичный
Развернуть
Агент
+7 (923) 070-34-59
Начать чат с агентом

2-к кв. Московская область, Воскресенский район, Белоозерский пгт ...

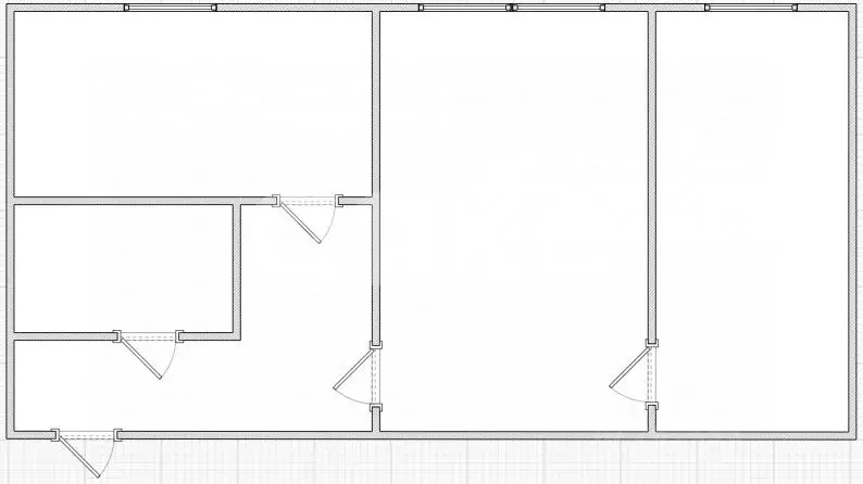
Внесен аванс,показы приостановлены Продается уютная 2-комнатная квартира в Белоозерском, расположенная на 4 этаже 5-этажного кирпичного дома, построенного в 1976 году. Общая площадь квартиры составляет 47,2 кв. м, жилая — 29 кв. м, а кухня — 9 кв. м. Высота потолков — 2,77 метра, что создает ощущение простора. Окна выходят как на улицу, так и во двор, обеспечивая хорошую освещенность.В квартире выполнен косметический ремонт. Здесь есть все необходимое для комфортного проживания: отдельный санузел, просторная лоджия для отдыха. Квартира частично меблирована, что позволяет будущим владельцам сразу въехать и обустроиться. На кухне достаточно места для всей необходимой бытовой техники.Дом находится в ухоженном состоянии, с наличием наземной парковки, поэтому всегда можно найти место для автомобиля. Район предлагает развитую инфраструктуру: поблизости расположены школы, детские сады, клиники и магазины. Все, что нужно для комфортной жизни, находится в шаговой доступности. Квартира не обременена, все документы готовы к сделке. Возможна ипотека от ведущих банков. Предоставляется полное юридическое сопровождение сделки.Приглашаем вас на просмотр этой замечательной квартиры в удобное для вас время. Свяжитесь с нами, чтобы узнать больше и договориться о встрече. Эта квартира может стать вашим уютным домом уже сегодня

Читать полностью

    Для того, чтобы купить двухкомнатную квартиру по адресу: Белоозерский, ул. Молодежная, 29, позвоните по телефону +7 (923) 070-34-59. Торопитесь! Объявление №30094872783 о продаже двухкомнатной квартиры опубликовано 11 апреля 2026.

    Позвонить Написать
    4 800 000 Р62 950 $ или 53 850
    Агент
    +7 (923) 070-34-59
    Начать чат с агентом
    Похожие предложения
    2-я квартира в ПГТ Белоозерский, ул. 60 лет Октября, дом 2 - Фото 1
    2-я квартира в ПГТ Белоозерский, ул. 60 лет Октября, дом 2 - Фото 2
    2-я квартира в ПГТ Белоозерский, ул. 60 лет Октября, дом 2 - Фото 3
    2-я квартира в ПГТ Белоозерский, ул. 60 лет Октября, дом 2 - Фото 4
    2-я квартира в ПГТ Белоозерский, ул. 60 лет Октября, дом 2 - Фото 5
    2-я квартира в ПГТ Белоозерский, ул. 60 лет Октября, дом 2 - Фото 6
    2-я квартира в ПГТ Белоозерский, ул. 60 лет Октября, дом 2 - Фото 7
    2-я квартира в ПГТ Белоозерский, ул. 60 лет Октября, дом 2 - Фото 8
    2-я квартира в ПГТ Белоозерский, ул. 60 лет Октября, дом 2 - Фото 9
    2-я квартира в ПГТ Белоозерский, ул. 60 лет Октября, дом 2 - Фото 10
    2-я квартира в ПГТ Белоозерский, ул. 60 лет Октября, дом 2 - Фото 11
    2-я квартира в ПГТ Белоозерский, ул. 60 лет Октября, дом 2 - Фото 12
    2-я квартира в ПГТ Белоозерский, ул. 60 лет Октября, дом 2 - Фото 13
    2-комнатная квартира, с косметическим ремонтом, общая площадь 52м², жилая 32м², кухня 6м², с балконом

    Продаем 2-ух комнатную квартиру в центре поселка города Белозерский, Воскресенского района, Московской области. Квартира расположена на 5 этаже 5-ти этажного кирпичного дома, сам дом стоит на возвышенности поэтому отсутствуют какие-то либо неприятные...
    • 52 м²
    • 2-ком
    • 5/5 эт.
    • кирпичный
    4 850 000 Р
    PRO
    +7 (903) Показать номер
    Посмотреть контакты
    2-к кв. Московская область, Воскресенск Центральный мкр, ул. ... - Фото 1
    2-к кв. Московская область, Воскресенск Центральный мкр, ул. ... - Фото 2
    2-комнатная квартира, общая площадь 44м², жилая 27м², кухня 6м²

    В продажа 2-комнатная квартира, полностью готовая к проживанию. Состояние и ремонт: Сделан капитальный ремонт: полностью заменили трубы и всю электрику. Чистовая отделка: ламинат, натяжные потолки, пластиковые окна. Дополнительных вложений не требуется.Юридически...
    • 44 м²
    • 2-ком
    • 4/5 эт.
    • кирпичный
    4 700 000 Р
    Агент
    +7 (916) Показать номер
    Посмотреть контакты
    1-к кв. Московская область, Воскресенск Новлянский мкр, ул. Кагана, 8 ... - Фото 1
    1-к кв. Московская область, Воскресенск Новлянский мкр, ул. Кагана, 8 ... - Фото 2
    1-комнатная квартира, общая площадь 40м², кухня 10м²

    Продается просторная квартира с качественным современным ремонтом, где продумана каждая деталь. Вся инженерия заменена: новая электрическая проводка и современные трубы обеспечивают безопасность и отсутствие проблем на долгие годы. Установлены счетчики...
    • 40 м²
    • 1-ком
    • 3/12 эт.
    • кирпичный
    4 900 000 Р
    Агент
    +7 (994) Показать номер
    Посмотреть контакты
    Студия Московская область, Пушкино Ярославское ш., 194 (30.1 м) - Фото 1
    Студия Московская область, Пушкино Ярославское ш., 194 (30.1 м) - Фото 2
    студия, общая площадь 30м²

    Продажа квартиры, расположенной в новом монолитном доме в ЖК Серебро , сочетающим в себе комфорт, природу и близость к городской инфраструктуре.Жилой комплекс расположен вблизи берега реки Серебрянка, идеально подходит для тех, кто ценит гармонию между...
    • 30 м²
    • студия-ком
    • 9/17 эт.
    • монолит
    4 867 423 Р
    Агент
    +7 (915) Показать номер
    Посмотреть контакты
    Студия Московская область, Пушкино Ярославское ш., 194 (30.3 м) - Фото 1
    Студия Московская область, Пушкино Ярославское ш., 194 (30.3 м) - Фото 2
    студия, общая площадь 30м²

    Продажа квартиры, расположенной в новом монолитном доме в ЖК Серебро , сочетающим в себе комфорт, природу и близость к городской инфраструктуре.Жилой комплекс расположен вблизи берега реки Серебрянка, идеально подходит для тех, кто ценит гармонию между...
    • 30 м²
    • студия-ком
    • 5/17 эт.
    • монолит
    4 711 729 Р
    Агент
    +7 (915) Показать номер
    Посмотреть контакты

    Не нашли подходящего объявления?

    Оставьте заявку, и наши риэлторы подберут квартиру в районе Белоозерского

    (0)