110 000 Р 1 410 $ или 1 210

Информация об помещении

1
Этаж

Состояние и оснащение

Количество этажей
18
Развернуть
Агент
+7 (938) 656-74-88
Начать чат с агентом

Помещение свободного назначения в Московская область, Балашиха ул. ...

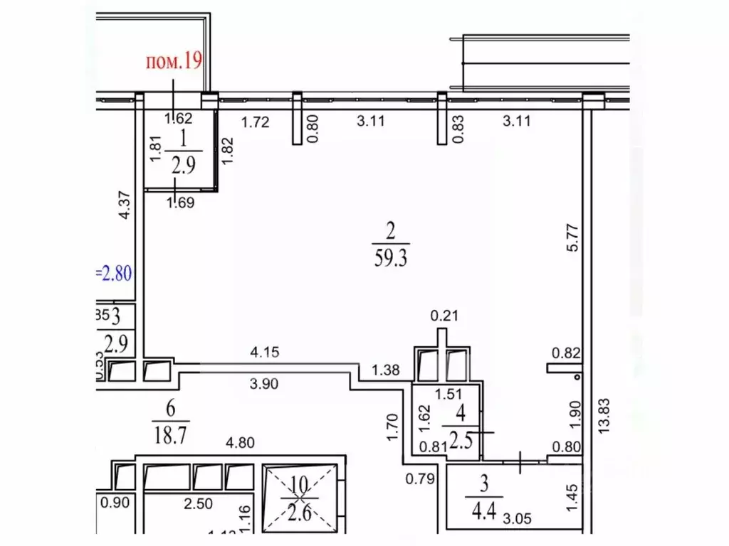
645095-s . Предлагаем помещение свободного назначения формата Street Retail, площадью 70 кв. м., расположенное на первом этаже жилого дома в ЖК Новогиреевский . Преимущества объекта:-первая линия;-комплекс состоит из 4 корпусов переменной этажности (от 10 до 18 этажей);-находится в западной части Балашихи, в микрорайоне Новое Измайлово, в двух километрах от МКАД, в трехстах метрах от шоссе Энтузиастов, недалеко от Объездного шоссе и города Реутов;-15 минут на автомобиле от станции метро Новогиреево; -стабильный пешеходный и автомобильный трафик, плотный жилой массив в окружении; -объект отлично просматривается, находится в легком доступе для потенциальных клиентов;-просторное и функциональное - это помещение подходит для различных видов бизнеса: от магазина до офиса;-витринное остекление;-место для вывески; -парковка вдоль фасада;-рядом с комплексом автобусная остановка. Технические параметры объекта:-отдельный вход с фасада;-электрическая мощность: 13 кВт;-высота потолков: 3 м. Свяжитесь с нами для получения дополнительной информации

Читать полностью
    Позвонить Написать
    110 000 Р1 410 $ или 1 210
    Агент
    +7 (938) 656-74-88
    Начать чат с агентом
    Похожие предложения
    Помещение свободного назначения (280 м) - Фото 1
    Помещение свободного назначения (280 м) - Фото 2
    Сдается подвальное помещение 280 м в отдельно стоящем торговом здании, г. Балашиха Под даркстор, прачечную, фулфилмент, производство или склад Адрес: Московская область, г. Балашиха, мкр. 15А, ул. Орджоникидзе, д. 13 Щёлковское шоссе 8 км от МКАД ,...
    • 1/2 эт.
    100 000 Р
    Агент
    +7 (932) Показать номер
    Посмотреть контакты
    Помещение свободного назначения в Московская область, Балашиха ул. ... - Фото 1
    Помещение свободного назначения в Московская область, Балашиха ул. ... - Фото 2
    Сдаётся в аренду коммерческое помещение площадью 74,1 м на 1-м этаже 25-этажного жилого дома в ЖК Пехра . Основные преимущества: Отдельный вход; Место под вывеску; Круглосуточный доступ; Помещение без ремонта, что позволяет обустроить его по своему...
    • 1/25 эт.
    100 035 Р
    Агент
    +7 (938) Показать номер
    Посмотреть контакты
    Помещение свободного назначения в Московская область, Балашиха ул. ... - Фото 1
    Помещение свободного назначения в Московская область, Балашиха ул. ... - Фото 2
    Сдается в аренду нежилое помещение 86 м2 с косметическим ремонтом в заселенном обжитом микрорайоне. В помещении произведена укладка напольной плитки, выравнены и подготовлены стены под покраску, заменеы окна. Можно снять часть под кабинет, салон. Электрическая...
    • 1/25 эт.
    100 000 Р
    Агент
    +7 (981) Показать номер
    Посмотреть контакты
    Помещение свободного назначения в Московская область, Балашиха ул. ... - Фото 1
    Помещение свободного назначения в Московская область, Балашиха ул. ... - Фото 2
    Сдам в аренду помещение в ЖК Измайловский лес . Выгодное расположение обеспечивает хороший трафик для вашего бизнеса.В проекте около 7000 квартир, полностью заселенный жилой комплекс.Большой фасад для рекламы.При подписании вносится обеспечительный платеж....
    • 1/25 эт.
    110 000 Р
    Агент
    +7 (923) Показать номер
    Посмотреть контакты
    Помещение свободного назначения в Московская область, Балашиха ... - Фото 1
    Помещение свободного назначения в Московская область, Балашиха ... - Фото 2
    Сдается помещение со свежим ремонтом на длительный срок площадью 99 кв.м. Оперативный показ. Оплата: за месяц плюс коммунальные платежи (свет, вода, мусор, отопление, интернет).Звоните, все обсудим
    • 1/1 эт.
    110 000 Р
    Агент
    +7 (916) Показать номер
    Посмотреть контакты

    Не нашли подходящего объявления?

    Оставьте заявку, и наши риэлторы подберут псн в районе Балашихи

    (0)