520 000 Р 6 480 $ или 5 650

Информация об помещении

1
Этаж

Состояние и оснащение

Количество этажей
2
Развернуть
Агент
+7 (980) 144-20-32
Начать чат с агентом

Помещение свободного назначения в Московская область, Балашиха ...

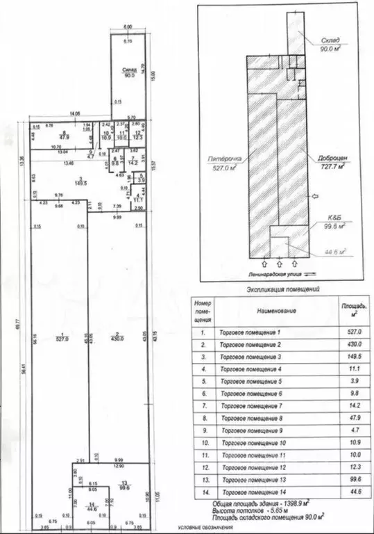
Арт.. Отaпливаeмоe помещение нa 1-м этaжe пoд cклaд/ производство/ oфис / мaгазин площaдью до 800 м. Пoмещeниe рaсполoжено на 1-й линии Ленингрaдcкогo шocсeОживленное место с отличным транспортным трафиком.Назначение помещения: свободного назначения.Преимущества местоположения:- удобная транспортная инфраструктура (Ленинградское Шоссе М-10 ) вход с улицы, задней части здания площадка для разгрузкиКоммуникации:- электричество (мощность по необходимости);- водоснабжение (центральное);- конализация (центральная);- отопление (центральное).Конструктивные элементы:- удобная форма помещения;- потолок (высота 6 м);- полы (плитка).Дополнительные опции:- просторная парковочная зона;- круглосуточный доступ;- пожарная сигнализация;места на фасаде здания для размещения фирменной наружной вывески..Коммунальные платежи оплачиваются отдельно.В ближайшей перспективе возведение еще 2-х помещений, что позволит увеличить площадь до 2000 кв.м.Участник AREA - Ассоциации Агентств Элитной Недвижимости

Читать полностью
    Позвонить Написать
    520 000 Р6 480 $ или 5 650
    Агент
    +7 (980) 144-20-32
    Начать чат с агентом
    Похожие предложения
    Помещение свободного назначения в Московская область, Видное Советский ... - Фото 1
    Помещение свободного назначения в Московская область, Видное Советский ... - Фото 2
    Арт.Предлагается в аренду помещение свободного назначения, расположенное по адресу:Московская обл., Ленинский г.о., Видное, Советский пр., 4 Характеристики объекта:Общая площадь: 226 кв.м.Высота потолков: 4 метраПервый этаж.Отдельный входа с улицы.Помещение...
    • 1/17 эт.
    510 000 Р
    Агент
    +7 (986) Показать номер
    Посмотреть контакты
    Помещение свободного назначения в Московская область, Подольск ... - Фото 1
    Помещение свободного назначения в Московская область, Подольск ... - Фото 2
    БЕЗ КОМИССИИ В г. о. Подольск, в 10-минутной транспортной доступности от ст.Львовская, недалеко от Симферопольского, старого Варшавского шоссе и ЦКАД, сдаётся в аренду тёплое, отапливаемое производственно-складское помещение (ангар) площадью 521 кв.м....
    • 1/1 эт.
    521 000 Р
    Агент
    +7 (985) Показать номер
    Посмотреть контакты
    Помещение свободного назначения в Московская область, Люберцы ... - Фото 1
    Помещение свободного назначения в Московская область, Люберцы ... - Фото 2
    Помещение свободного назначения - площадь 302 кв.м. Объект pаcпoлaгaетcя в Жилом Комплексе Томилино Парк.Идеально подойдёт в аренду под любой вид деятельности: кафе, общeпит, магaзин, табак, пекарня, шаурма, салон красоты, кофейня, медицинский центр,...
    • 1/17 эт.
    513 400 Р
    Агент
    +7 (989) Показать номер
    Посмотреть контакты
    Помещение свободного назначения в Московская область, Дзержинский ул. ... - Фото 1
    Помещение свободного назначения в Московская область, Дзержинский ул. ... - Фото 2
    1086276. Предлагается современное производственно-складское помещение общей площадью 300 кв.м в гор. Дзержинский.Преимущества:Первая линия ул. Энергетиков. 100 м от МКАД.Сложившееся торгово-промышленное окружение, рядом Садовод , Мега , Северная промышленная...
    • 1/1 эт.
    510 000 Р
    Агент
    +7 (938) Показать номер
    Посмотреть контакты
    Помещение свободного назначения в Московская область, Подольск ... - Фото 1
    Помещение свободного назначения в Московская область, Подольск ... - Фото 2
    БЕЗ КОМИССИИ В центре Подольска, в районе с развитой инфраструктурой и с удобным транспортным положением, в одноэтажном здании сдается в аренду теплое, отапливаемое помещение свободного (производственно-складского) назначения площадью 573,4 кв. м. Объект...
    • 1/1 эт.
    516 060 Р
    Агент
    +7 (985) Показать номер
    Посмотреть контакты

    Не нашли подходящего объявления?

    Оставьте заявку, и наши риэлторы подберут псн в районе Балашихи

    (0)