22 680 Р 279 $ или 241

Информация об помещении

1
Этаж

Состояние и оснащение

Количество этажей
2
Развернуть
Агент
+7 (982) 080-50-43
Начать чат с агентом

Помещение свободного назначения в Московская область, Балашиха ...

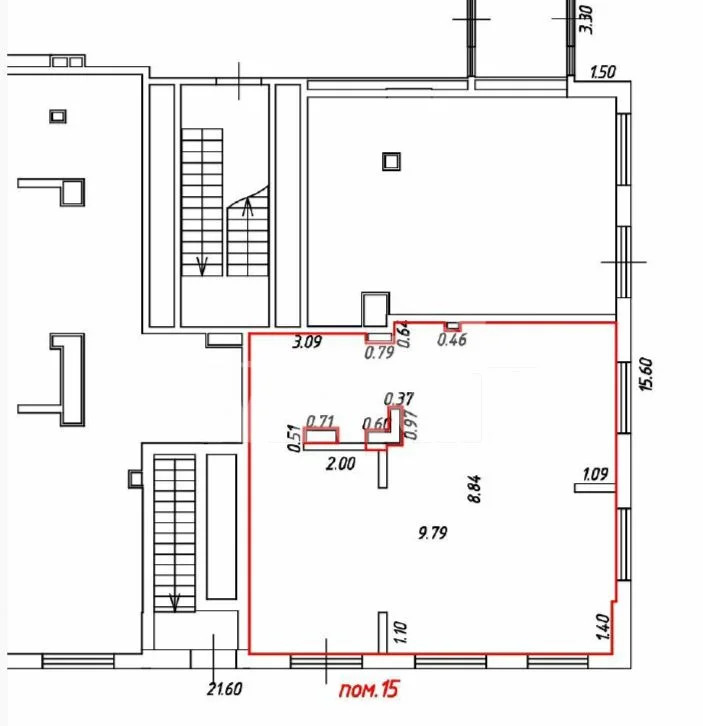
Сдается торговый павильон, ларек отдельно стоящий 12 кв.м в составе Торгового центра Пирамида.По акции скидка 50 на первые 3 месяца аренды.Стоимость аренды в объявлении указана со скидкой.ХАРАКТЕРИСТИКИ:— Высота потолков 2,4м— Место под рекламную вывеску— Пожарно-охранная сигнализация—аботает система кондиционирования— водоснабжение— Чистовая отделка— Есть все коммуникации: интернет, электроснабжение, вентиляция и кондиционирование,— Выделенная мощность до 15 кВт.— Управляющая компания в здании, помощь в решении всех бытовых вопросов в режиме 24/7ТЦ Пирамида находится в административном центральном районе Г.О. Балашиха.РАСПОЛОЖЕНИЕ.Главный фасад ТЦ Пирамида выходит на оживленную дорогу, соединяющую важнейшие артерии города: улицы Советская и Крупской с одной стороны.Плотный автомобильный и пешеходный трафик.Остановка общественного транспорта для 24 маршрутов.Доступность из каждой точки города не более 20 минПредложение от СОБСТВЕННИКА Прямой договор.Приглашаем арендаторов с разными видами деятельности.Инфраструктура: Администрация города, МФЦ, Пенсионный фонд, вход в центральный парк Пехорка, ледовый дворец Балашиха Арена, Сбербанк, Кинотеатр, Вкусно и точка, Газпромбанк.В центре города Балашиха работает большое число компаний малого, среднего и крупного бизнеса. При ежедневном потоке в 8 500 человек вашему бизнесу обеспечена стабильная и широкая клиентская база.Напротив ТЦ Пирамида находится главный вход в центральный парк Пехорка и ледовый дворец Балашиха Арена, пешеходный бульвар Пехорка - излюбленное место отдыха жителей города.

Читать полностью
    Позвонить Написать
    22 680 Р279 $ или 241
    Агент
    +7 (982) 080-50-43
    Начать чат с агентом
    Похожие предложения
    Аренда ПСН, Видное, Ленинский район, Ленинский городской округ - Фото 1
    Аренда ПСН, Видное, Ленинский район, Ленинский городской округ - Фото 2
    Аренда ПСН, Видное, Ленинский район, Ленинский городской округ - Фото 3
    Аренда ПСН, Видное, Ленинский район, Ленинский городской округ - Фото 4
    Аренда ПСН, Видное, Ленинский район, Ленинский городской округ - Фото 5
    Аренда ПСН, Видное, Ленинский район, Ленинский городской округ - Фото 6
    общая площадь 350м², полезная площадь 350м²

    Предлагаем в аренду отдельно стоящее здание, 350 кв.м. под размещение общежития для сотрудников или офиса организации. 2 этажа, по 10 комнат на каждом, оборудованные душевые и отдельные санузлы. Есть помещение с кухней. Максимальная вместимость...
    • 350 м²
    • 1-й эт.
    650 000 Р /в месяц
    Агент
    +7 (929) Показать номер
    Посмотреть контакты
    Аренда ПСН, Нагорное, Мытищинский район, Полковника Романова улица - Фото 1
    Аренда ПСН, Нагорное, Мытищинский район, Полковника Романова улица - Фото 2
    Аренда ПСН, Нагорное, Мытищинский район, Полковника Романова улица - Фото 3
    Аренда ПСН, Нагорное, Мытищинский район, Полковника Романова улица - Фото 4
    Аренда ПСН, Нагорное, Мытищинский район, Полковника Романова улица - Фото 5
    общая площадь 242м², полезная площадь 242м²

    Добрый день! Сдается помещение 242 кв.м. Первая линия. Хороший рекламный потенциал. Большой пеший трафик. 48 кВт.
    • 242 м²
    • 1-й эт.
    484 000 Р /в месяц
    Агент
    +7 (977) Показать номер
    Посмотреть контакты
    Аренда ПСН, Пушкино, Воскресенский район, микрорайон Новое Пушкино - Фото 1
    Аренда ПСН, Пушкино, Воскресенский район, микрорайон Новое Пушкино - Фото 2
    Аренда ПСН, Пушкино, Воскресенский район, микрорайон Новое Пушкино - Фото 3
    общая площадь 242м², полезная площадь 242м²

    Сдаю нежилое помещение без отделки общей площадью 242 квм Состоит из 4 объединенных помещений. Есть парковка. Все коммуникации. Потолки 3.5 м Электричество 60 квт Ключи - сентябрь 2025.
    • 242 м²
    • 1-й эт.
    484 000 Р /в месяц
    Агент
    +7 (977) Показать номер
    Посмотреть контакты
    Аренда ПСН площадью 45.2 м2 - Фото 1
    Аренда ПСН площадью 45.2 м2 - Фото 2
    Аренда ПСН площадью 45.2 м2 - Фото 3
    Аренда ПСН площадью 45.2 м2 - Фото 4
    Аренда ПСН площадью 45.2 м2 - Фото 5
    Аренда ПСН площадью 45.2 м2 - Фото 6
    Аренда ПСН площадью 45.2 м2 - Фото 7
    Аренда ПСН площадью 45.2 м2 - Фото 8
    Аренда ПСН площадью 45.2 м2 - Фото 9
    полезная площадь 45.2м²

    ЖК «Аникеевский» - жилой экокомплекс на северо-западе Подмосковья, в городском округе Красногорск. Уютный малоэтажный квартал расположился в 12 км от МКАД, между Новорижским и Волоколамским шоссе. В ЖК «Аникеевский» введено в эксплуатацию десять домов...
    • 45.2 м²
    • 1/7 эт.
    85 880 Р /в месяц
    Агент
    +7 (495) Показать номер
    Посмотреть контакты
    Объект 537530 - Фото 1
    Объект 537530 - Фото 2
    Объект 537530 - Фото 3
    Объект 537530 - Фото 4
    Объект 537530 - Фото 5
    Объект 537530 - Фото 6
    Объект 537530 - Фото 7
    Объект 537530 - Фото 8
    Объект 537530 - Фото 9
    Объект 537530 - Фото 10
    Объект 537530 - Фото 11
    Объект 537530 - Фото 12
    Объект 537530 - Фото 13
    Объект 537530 - Фото 14
    Объект 537530 - Фото 15
    Объект 537530 - Фото 16
    Объект 537530 - Фото 17
    Объект 537530 - Фото 18
    Объект 537530 - Фото 19
    Объект 537530 - Фото 20
    полезная площадь 83м²

    Идеальное помещение для Вашего бизнеса! Торговое помещение общей площадью 83 кв.м. Помещение расположено на углу жилого квартала: Два больших витринных окна выходят на дорогу к школе, где проходит основной автомобильный трафик и общественный транспорт. Вход...
    • 83 м²
    • 1/9 эт.
    165 000 Р /в месяц
    Агент
    +7 (929) Показать номер
    Посмотреть контакты

    Не нашли подходящего объявления?

    Оставьте заявку, и наши риэлторы подберут псн в районе Балашихи

    (0)