57 600 Р 736 $ или 625

Информация об помещении

3
Этаж

Состояние и оснащение

Количество этажей
3
Развернуть
Агент
+7 (915) 058-96-08
Начать чат с агентом

Помещение свободного назначения в Московская область, Балашиха ...

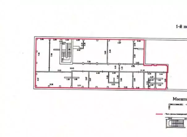
Просторное помещение Характеристики:- 1 линия- 3 этаж- Общая входная группа- Общая парковка- Есть возможность разместить вывеску- Погрузка/разгрузка: Главный вход, Запасной вход- Доступ по общему графику и 24/7- Общий санузел- Центральное отопление- Естественная вентиляция- Максимальная мощность 30 кВт- Требует легкого косметического ремонта- Торговый/офисный центр- Имеется запасной выход- Высота потолков 3 м- С окнами- Возможность перепланировки- Видеонаблюдение- Коммунальные услуги включены в арендуДополнительная информация:Помещение светлое , с большими окнами . Есть подъёмник размером 1,5x2м. Рядом стация и остановка общественного транспорта. Очень насыщенный автомобильный и пешеходный трафик.В перспективе возможно увеличение площади.По всем вопросам обращаться к представителю собственника Чебанову Александру.Помощь с оформлением ипотекиПодписывайтесь на наш профиль, чтобы узнавать о новых локациях первыми

Читать полностью
    Позвонить Написать
    57 600 Р736 $ или 625
    Агент
    +7 (915) 058-96-08
    Начать чат с агентом
    Похожие предложения
    Помещение свободного назначения в Московская область, Балашиха ... - Фото 1
    Помещение свободного назначения в Московская область, Балашиха ... - Фото 2
    Хорошее просторное помещение в ТЦХарактеристики:- 1 линия- 2 этаж- Есть подъемник- Общая входная группа- Общая парковка- Есть возможность разместить вывеску- Погрузка/разгрузка: Главный вход, Запасной вход , через подъемник.- Доступ по общему графику,...
    • 2/4 эт.
    58 300 Р
    Агент
    +7 (915) Показать номер
    Посмотреть контакты
    Помещение свободного назначения в Московская область, Куровское ... - Фото 1
    Помещение свободного назначения в Московская область, Куровское ... - Фото 2
    Лот 962234 Предложение от Собственника Сдается в долгосрочную аренду помещение свободного назначения в центре города Куровское. Часть 1-эт. ОСЗ расположена на 1-линии с высоким пешеходным трафиком. Н=3,5м, 2 отдельных входа. Выполнен капитальный ремонт....
    • 1/1 эт.
    57 000 Р
    Агент
    +7 (986) Показать номер
    Посмотреть контакты
    Помещение свободного назначения в Московская область, Куровское ... - Фото 1
    Помещение свободного назначения в Московская область, Куровское ... - Фото 2
    Лот 962234 Предложение от Собственника Сдается в долгосрочную аренду помещение свободного назначения в центре города Куровское. Часть 1-эт. ОСЗ расположена на 1-линии с высоким пешеходным трафиком. Н=3,5м, 2 отдельных входа. Выполнен капитальный ремонт....
    • 1/1 эт.
    57 000 Р
    Агент
    +7 (986) Показать номер
    Посмотреть контакты
    Помещение свободного назначения в Московская область, Дмитров ... - Фото 1
    Помещение свободного назначения в Московская область, Дмитров ... - Фото 2
    Арт.Бизнес в Центре Дмитрова 70 м в ТОЦ Лар-Ан Ищете место, где ваш бизнес будет процветать? Сдаётся престижное помещение 70 м на в 7-этажном ТОЦ Лар-Ан по адресу: г. Дмитров, ул. Профессиональная, д.26, корп. 1. Почему это Ваша лучшая локация: •...
    • 4/7 эт.
    58 800 Р
    Агент
    +7 (985) Показать номер
    Посмотреть контакты
    Помещение свободного назначения в Санкт-Петербург пос. Шушары, ул. ... - Фото 1
    Помещение свободного назначения в Санкт-Петербург пос. Шушары, ул. ... - Фото 2
    Сдается в аренду помещение свободного назначения 43 м, в центральной части района Шушары, по адресу: ул. Вишерская, д. 22.Помещение на первой линии, в фасадной части здания расположенного на пересечении центральных улиц района Вишерской и Валдайской....
    • 1/16 эт.
    58 000 Р
    Агент
    +7 (911) Показать номер
    Посмотреть контакты

    Не нашли подходящего объявления?

    Оставьте заявку, и наши риэлторы подберут псн в районе Балашихи

    (0)