Реализация объекта недвижимости приостановлена

Информация об помещении

1
Этаж

Состояние и оснащение

Количество этажей
15
Развернуть

Помещение свободного назначения в Московская область, Балашиха ...

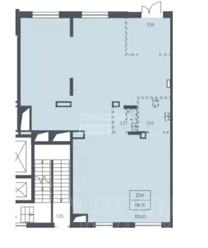
ТЕХНИЧЕСКИЕ ХАРАКТЕРИСТИКИ: 1-й этаж жилого 15-и этажного дома. Площадь 35 кв.м. Отдельный вход с улицы. Зальная планировка, свой сан узел Парковка во дворе дома. 1-я линия домов улицы Пролетарская, центр г. Железнодорожный. Сверх интенсивный пешеходный трафик, жилой массив. Помещение с ремонтом, готово к въезду. Электрическая мощность 10 кВт. Все коммуникации центральные. Арендная ставка./месяц, отдельно оплачиваются коммунальные платежи по счетчикам. Прямая аренда.О НАС Консультанты Агентство Регионального Развития Электросталь помогут согласовать все условия по помещению без комиссии и с выгодой для всех сторон. Мы специализируемся на качественном подборе помещений для бизнеса. Напишите нам в чат или позвоните и мы организуем просмотр всех помещений которые вас заинтересуют, чтобы вы смогли посмотреть все подходящие для вас варианты потратив на это не более 2х часов. ОТ СОБСТВЕННИКА И БЕЗ КОМИССИИ

Читать полностью

    Реализация объекта недвижимости приостановлена

    Не нашли подходящего объявления?

    Оставьте заявку, и наши риэлторы подберут псн в районе Балашихи

    (0)