840 000 Р 10 870 $ или 9 200

Информация об помещении

цоколь
Этаж

Состояние и оснащение

Количество этажей
2
Развернуть
Агент
+7 (938) 656-74-88
Начать чат с агентом

Производственное помещение в Московская область, Балашиха ...

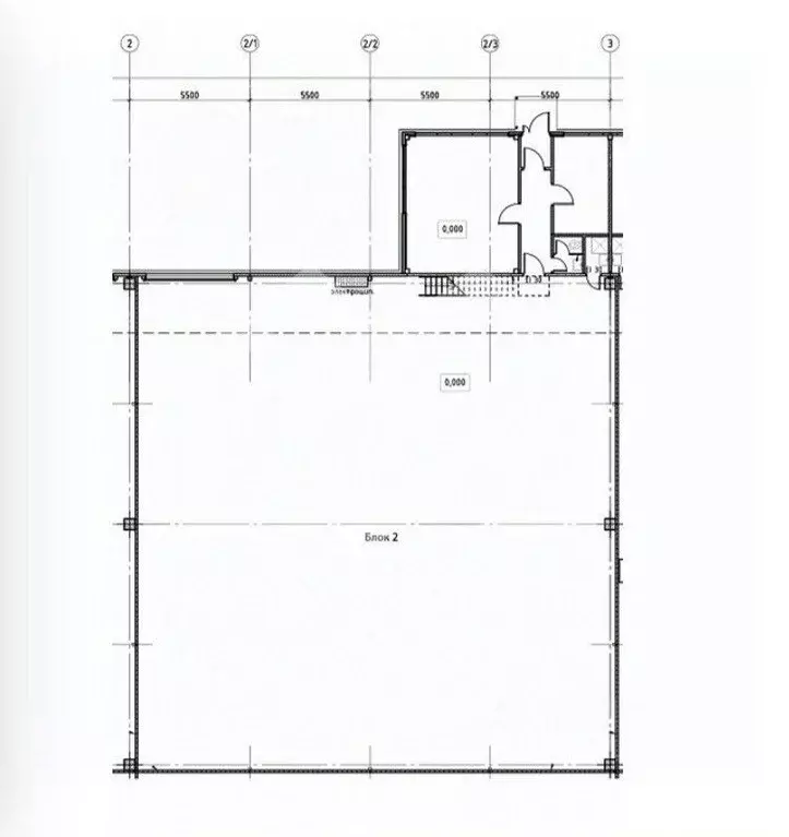
854679. Предлагается складское помещение общей площадью 700 кв. м. в мкр. Железнодорожный, гор. Балашиха.Преимущества:Первая линия ул. Советская. Крупный жилой массив. 10 минут пешком от ст. МЦД Железнодорожная . Сложившееся торговое окружение. Интенсивный автомобильный и пешеходный трафик. Цоколь 2-х этажного здания. 2 входа. Зона погрузки/разгрузки.Есть окна. Парковка перед зданием. Рядом остановка общественного транспорта.Технические характеристики:Общая площадь: 700 кв. м.Сетка колонн: 6*6 метров.Высота потолка: 3.2 м.Электрическая мощность: 100 кВт.

Читать полностью
    Позвонить Написать
    840 000 Р10 870 $ или 9 200
    Агент
    +7 (938) 656-74-88
    Начать чат с агентом
    Похожие предложения
    Производственное помещение в Московская область, Балашиха ... - Фото 1
    Производственное помещение в Московская область, Балашиха ... - Фото 2
    854679-wi . Предлагается складское помещение общей площадью 700 кв. м. в мкр. Железнодорожный, гор. Балашиха.Преимущества:Первая линия ул. Советская. Крупный жилой массив. 10 минут пешком от ст. МЦД Железнодорожная . Сложившееся торговое окружение. Интенсивный...
    • -1/2 эт.
    840 000 Р
    Агент
    +7 (938) Показать номер
    Посмотреть контакты
    Производственное помещение в Московская область, Подольск городской ... - Фото 1
    Производственное помещение в Московская область, Подольск городской ... - Фото 2
    1064375. Предлагаем с формата Light Industrial в цифровом индустриальном парке Сынково . Корпус 13с2, блок 8.Преимущества:На пересечении ЦКАД и Симферопольского шоссе, вблизи деревень Сынково и Новоселки. Развитая инфраструктура. Ввод в эксплуатацию:...
    • 1/2 эт.
    849 888 Р
    Агент
    +7 (938) Показать номер
    Посмотреть контакты
    Производственное помещение в Московская область, Ступино городской ... - Фото 1
    Производственное помещение в Московская область, Ступино городской ... - Фото 2
    1101352. Предлагается в аренду склад общей площадью 1 280 кв. м. расположенный на территории складского комплекса в поселке Михнево, Ступинского р-на.Преимущества:Центр крупной промышленной зоны.Вблизи Каширского шоссе и трассы М4 Дон.Возможность заезда...
    • 1/1 эт.
    832 000 Р
    Агент
    +7 (938) Показать номер
    Посмотреть контакты
    Производственное помещение в Московская область, Ступино городской ... - Фото 1
    Производственное помещение в Московская область, Ступино городской ... - Фото 2
    1091604. Предлагается склад общей площадью 1200 кв. м. в промышленном парке М-4 в Михнево.Преимущества:Промышленная зона Михнево М-4.3 км до Каширского шоссе, 28 км до ЦКАД.Удобный подъезд со стороны дороги.Канализация, водоснабжение.Огороженная территория.Охрана.Ворота...
    • 1/1 эт.
    840 000 Р
    Агент
    +7 (938) Показать номер
    Посмотреть контакты
    Производственное помещение (1200 м) - Фото 1
    Производственное помещение (1200 м) - Фото 2
    Лот №1045763 Предложение от Собственника Напишите нам в Ватсап, чтобы получить ПОДРОБНУЮ ПРЕЗЕНТАЦИЮ С ПЛАНИРОВКОЙ И ФОТОГРАФИЯМИ Предлагается в аренду помещение под склад площадью 1200.00 м2. Помещение расположено 38 км от г . 1- этаж. Пропускная система....
    • 1/1 эт.
    840 000 Р
    Агент
    +7 (931) Показать номер
    Посмотреть контакты

    Не нашли подходящего объявления?

    Оставьте заявку, и наши риэлторы подберут производственное помещение в районе Балашихи

    (0)