81 631 Р 1 010 $ или 868

Информация о помещении и здании

1
Этаж
9
Этажность
Развернуть
Агент
+7 (932) 443-68-15
Начать чат с агентом

Офис (97.958 м)

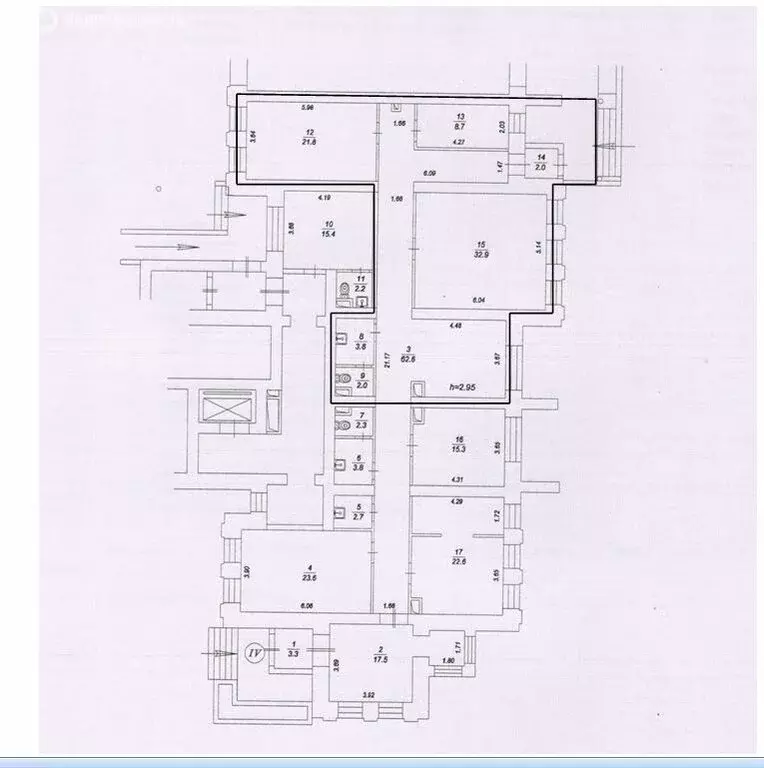
Офис в аренду площадью 97.96 кв.м, на 1 этаже 9-этажного жилого дома в 14 мин. транспортом от м.Щелковская, в 4 км. от МКАД. Высота потолков: 2.95 м. Офис предоставляется в прямую аренду, размер депозита равен аренде за 2 месяца. Минимальный срок аренды 11 мес. Офис со стандартной отделкой, внутри кабинетная планировка, на полу ламинат, окна выходят окна во двор и на улицу, две мокрые точки. Отдельный вход в офис с улицы.Не включены в аренду вывоз мусора, электричество и водоснабжение (по показаниям счетчиков)

Читать полностью
    Позвонить Написать
    81 631 Р1 010 $ или 868
    Агент
    +7 (932) 443-68-15
    Начать чат с агентом
    Похожие предложения
    Офис в Московская область, Балашиха Гагарина мкр, 6 (98 м) - Фото 1
    Офис в Московская область, Балашиха Гагарина мкр, 6 (98 м) - Фото 2
    1-й этаж, всего 9 этажей

    Офис в аренду площадью 97.96 кв.м, на 1 этаже 9-этажного жилого дома в 14 мин. транспортом от м.Щелковская, в 4 км. от МКАД. Высота потолков: 2.95 м. Офис предоставляется в прямую аренду, размер депозита равен аренде за 2 месяца. Минимальный срок аренды...
    • 1/9 эт.
    81 631 Р
    Агент
    +7 (983) Показать номер
    Посмотреть контакты
    Офис в Московская область, Химки Рабочая ул., 2АС95 (54 м) - Фото 1
    Офис в Московская область, Химки Рабочая ул., 2АС95 (54 м) - Фото 2
    6-й этаж, всего 6 этажей

    Бизнес-центр Кутузов (БП Генерал) класса BПлощадь: 54,4 м2Арендная ставка:. за м2 в год включая НДССтоимость площади в месяц: 81 600,. включая НДССистема налогообложения: НДСГотовность: готово к въездуЭтаж: 6Планировка: открытаяСтатус: свободенХарактеристики...
    • 6/6 эт.
    81 600 Р
    Агент
    +7 (911) Показать номер
    Посмотреть контакты
    Офис в Московская область, Лотошино пгт ул. Калинина, 1А (165 м) - Фото 1
    Офис в Московская область, Лотошино пгт ул. Калинина, 1А (165 м) - Фото 2
    2-й этаж, всего 2 этажа

    Помещение под офис площадью 165.1 м2, на 2 этаже 2-этажного здания класса B. Офис предоставляется в прямую аренду, срок аренды - любой, с предоплатой за 1 месяц.
    • 2/2 эт.
    81 185 Р
    Агент
    +7 (985) Показать номер
    Посмотреть контакты
    Офис в Краснодарский край, Краснодар Ставропольская ул., 174 (82 м) - Фото 1
    Офис в Краснодарский край, Краснодар Ставропольская ул., 174 (82 м) - Фото 2
    2-й этаж, всего 2 этажа

    Сдается помещение под офис в одном из лучших мест Краснодара. Ул. Ставропольская, хороший автомобильный и пешеходный трафик. Помещение находится на 2 этаже. Все коммуникации центральные, санузел на этаже. Стоимость/м2. Все вопросы по телефону. Оперативны...
    • 2/2 эт.
    81 500 Р
    Агент
    +7 (918) Показать номер
    Посмотреть контакты
    Офис в Москва ул. Гурьянова, 30 (83 м) - Фото 1
    Офис в Москва ул. Гурьянова, 30 (83 м) - Фото 2
    1-й этаж, всего 3 этажа

    БЕЗ КОМИССИИ БЦ класса B Серф плаза (Surf plaza) . Сдаётся офисное помещение свободной планировки на первом этаже площадью 83 кв.м. Стандартная офисная отделка. Центральное кондиционирование, вентиляция. Есть охрана.УСН. Улица Гурьянова, 30, 15 минут...
    • 1/3 эт.
    83 000 Р
    Агент
    +7 (939) Показать номер
    Посмотреть контакты

    Не нашли подходящего объявления?

    Оставьте заявку, и наши риэлторы подберут офис в районе Балашихи

    (0)