959 025 600 Р 11 880 600 $ или 10 147 100

Информация об помещении

1
Этаж

Состояние и оснащение

Количество этажей
2
Развернуть
Агент
+7 (986) 274-27-15
Начать чат с агентом

Склад в Московская область, Балашиха Новгородская ул., 59 (6540 м)

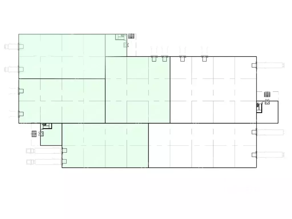
Лот 976090 Предложение от Собственника Продажа помещения 6540 м2 под склад, производство формата light industrial в Промышленном парке Балашиха. Промышленный парк Балашиха - это современные здания А класса для размещения производства, хранения, логистики, офиса и шоу-рума на одной территории.Сдача первой очереди: IV квартал 2026 года.Преимущества:•Готовая отделка•Услуги по сдаче в аренду•Собственный вход•Управление помещением по ключ•Парковка включена в стоимостьПрогноз арендного потока (средний при 5-летнем контракте):МАП:р. (НДС включен)ГАП:р. (НДС включен)Срок окупаемости: 7.4 летЕжегодная капитализация актива +8 (в среднем ежегодно).Помещение общей площадью 6540 м2 состоит из универсального промышленно-складского блока и двухэтажной офисной части с возможностью организации шоу-рума. Технические характеристики помещения:Электроснабжение от 30 Вт/м2Рабочая высота потолков 8 мШаг колонн 12на18 мБетонный пол нагрузка 5т/м2Современная система пожаротушения и оповещенияОфисное помещение с чистовой отделкой и коммуникациями.Расположение рядом с трассами федерального значения:-1 км до Шоссе Энтузиастов-15 км от МКАД-1 км до М-7-13 км до М-12Для комфортного пребывания сотрудников на объекте в непосредственной близости к парку развита городская инфраструктура и транспортная доступность:-4 мин ходьбы до остановки общественного транспорта-20 мин. на автобусе до м. Измайловская-30 мин до МЦД Кучино.Дополнительная информация и презентация по запросу В цену включено: НДС 20 .Чтобы получить ПОДРОБНУЮ ПРЕЗЕНТАЦИЮ С ПЛАНИРОВКОЙ И ФОТОГРАФИЯМИ, звоните или отправьте свой email и номер телефона в сообщении на портале. Высылаем в течение 15 минут по запросу Конт. лицо: Алла , доб. 254, ЛОТ 976090

Читать полностью
    Позвонить Написать
    959 025 600 Р11 880 600 $ или 10 147 100
    Агент
    +7 (986) 274-27-15
    Начать чат с агентом
    Похожие предложения
    Продажа склада, Горки, Ленинский район, Каширское ш. - Фото 1
    Продажа склада, Горки, Ленинский район, Каширское ш. - Фото 2
    Продажа склада, Горки, Ленинский район, Каширское ш. - Фото 3
    Продажа склада, Горки, Ленинский район, Каширское ш. - Фото 4
    Продажа склада, Горки, Ленинский район, Каширское ш. - Фото 5
    общая площадь 10000м², полезная площадь 10000м²

    Арт. Продается производственно-складское помещение класса "А" общая площадь 10000 кв.м. Земельный участок 4 Га. Высота потолков 12 м. Полы антипыль. Электрическая мощность 250 кВт (возможно увеличение). Все коммуникации. Газ. Ворота докового типа/ в...
    • 10 000 м²
    • 1-й эт.
    950 000 000 Р
    PRO
    +7 (495) Показать номер
    Агентство
    ИП Захарова
    Посмотреть контакты
    Склад в Московская область, Лыткарино Детский городок ЗИЛ тер., 61 ... - Фото 1
    Склад в Московская область, Лыткарино Детский городок ЗИЛ тер., 61 ... - Фото 2
    ID: w13893К продаже предлагаются производственно-складские площади класса А формата LIGHT INDUSTRIAL.Местоположение: МО, г. Лыткарино, 12 км от МКАД по Новорязанскому шоссе.Высота потолков - 9,3 м.Бетонный пол с антипылевым покрытием.Нагрузка на пол...
    • 1/2 эт.
    957 600 000 Р
    Агент
    +7 (916) Показать номер
    Посмотреть контакты
    Склад в Московская область, Домодедово городской округ, с. Красный ... - Фото 1
    Склад в Московская область, Домодедово городской округ, с. Красный ... - Фото 2
    Уникальный номер помещения.Индустриальный парк Шахово - Пищевой кластер.Современный логистический и производственный кластер класса А, расположенный всего в 36 км от МКАД по направлению на Домодедово. Это идеальное место для размещения складов, производств,...
    • 1/1 эт.
    960 000 000 Р
    Агент
    +7 (980) Показать номер
    Посмотреть контакты
    Склад в Московская область, Красногорск городской округ, Отрадное пгт ... - Фото 1
    Склад в Московская область, Красногорск городской округ, Отрадное пгт ... - Фото 2
    Складское помещение 5 615 кв. м в Park Митино . Прямая продажа, без комиссии. Объект на стадии активного строительства, готовность ко въезду уточняется по запросу. Направление: Северо-Запад. Шоссе: Пятницкое. Расстояние от МКАД: 11 км. Характеристики:-...
    • 1/1 эт.
    954 550 225 Р
    Агент
    +7 (915) Показать номер
    Посмотреть контакты
    Склад в Московская область, Домодедово городской округ, с. Красный ... - Фото 1
    Склад в Московская область, Домодедово городской округ, с. Красный ... - Фото 2
    Уникальный номер помещения. Транспортная доступность: Каширское (М-4 ДОН) ш.; Удаленность от МКАД: 35 км; .Собственник предлагает построить современные производственно-складские помещения под ключ по вашему техническому заданию по модели Build-to-suit.Удобное...
    • 1/1 эт.
    960 000 000 Р
    Агент
    +7 (980) Показать номер
    Посмотреть контакты

    Не нашли подходящего объявления?

    Оставьте заявку, и наши риэлторы подберут склад в районе Балашихи

    (0)