36 600 000 Р 464 800 $ или 398 300

Информация об помещении

1
Этаж

Состояние и оснащение

Количество этажей
25
Развернуть
Агент
+7 (938) 656-74-88
Начать чат с агентом

Помещение свободного назначения в Московская область, Балашиха ул. ...

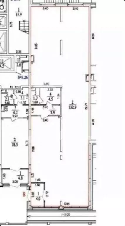
1098266. Предлагаем свободное помещение свободного назначения, площадью 147 кв. м., расположенное на первом этаже 25-этажного жилого дома в ЖК Новое Измайлово-2 . Без комиссии для покупателя.Преимущества объекта:-ЖК состоит из 3 корпусов переменной этажности (от 14 до 25 этажей);-15 минут на автомобиле от станции МЦД-4 Салтыковская ;-удобная транспортная доступность: 1.5 км до Леоновского шоссе, 1.7 км до шоссе Энтузиастов, 4.5 км до Объездного шоссе, 5.8 км до Балашихинского шоссе;-плотный жилой массив;-развитая инфраструктура района;-высокий автомобильный и пешеходный трафик;-отлично просматривается, находится в легком доступе для потенциальных клиентов;-гибкая планировка, позволяющая адаптировать пространство под различные нужды;-витринное остекление;-возможность размещения вывески;-наземная парковка;-рядом остановка общественного транспорта.Технические параметры объекта:-отдельный вход с улицы;-электрическая мощность: 40 кВт.Свяжитесь с нами для получения дополнительной информации

Читать полностью
    Позвонить Написать
    36 600 000 Р464 800 $ или 398 300
    Агент
    +7 (938) 656-74-88
    Начать чат с агентом
    Похожие предложения
    Помещение свободного назначения в Московская область, Балашиха ул. ... - Фото 1
    Помещение свободного назначения в Московская область, Балашиха ул. ... - Фото 2
    1098266. Предлагаем свободное помещение свободного назначения, площадью 147 кв. м., расположенное на первом этаже 25-этажного жилого дома в ЖК Новое Измайлово-2 . Без комиссии для покупателя.Преимущества объекта:-ЖК состоит из 3 корпусов переменной этажности...
    • 1/25 эт.
    36 600 000 Р
    Агент
    +7 (938) Показать номер
    Посмотреть контакты
    Помещение свободного назначения в Московская область, Балашиха ул. ... - Фото 1
    Помещение свободного назначения в Московская область, Балашиха ул. ... - Фото 2
    1098266. Предлагаем свободное помещение свободного назначения, площадью 147 кв. м., расположенное на первом этаже 25-этажного жилого дома в ЖК Новое Измайлово-2 . Без комиссии для покупателя.Преимущества объекта:-ЖК состоит из 3 корпусов переменной этажности...
    • 1/25 эт.
    36 600 000 Р
    Агент
    +7 (938) Показать номер
    Посмотреть контакты
    Помещение свободного назначения в Московская область, Балашиха ул. ... - Фото 1
    Помещение свободного назначения в Московская область, Балашиха ул. ... - Фото 2
    Лот 159799.Предлагается в продажу помещение свободного назначения. Московская обл., Балашиха, ул. Флёрова, 2. Объект расположен в окружении жилых и административных зданий, что обеспечивает хороший трафик. 25 минут до г. Москвы, 40 минут до станции ж/д...
    • -1/5 эт.
    38 000 000 Р
    Агент
    +7 (985) Показать номер
    Посмотреть контакты
    Помещение свободного назначения в Московская область, Люберцы ... - Фото 1
    Помещение свободного назначения в Московская область, Люберцы ... - Фото 2
    914679. Предлагаем помещение свободного назначения, площадью 104,9 кв. м, расположенное на первом этаже жилого дома в ЖК Томилино Парк . Без комиссии для покупателя. Предлагаем угловое помещение свободного назначения в ЖК Томилино Парк , площадью 104.9...
    • 1/17 эт.
    36 000 000 Р
    Агент
    +7 (938) Показать номер
    Посмотреть контакты
    Помещение свободного назначения в Московская область, Мытищи пер. 1-й ... - Фото 1
    Помещение свободного назначения в Московская область, Мытищи пер. 1-й ... - Фото 2
    854082. Предлагаем помещение свободного назначения в ЖК Мытищи Парк , корпус 4, площадью 110.4 кв. м, расположенное на первом этаже 17-этажного жилого дома. Без комиссии для покупателя.Преимущества объекта:-ЖК состоит из 7-ми 17-этажных корпусов, рассчитанных...
    • 1/17 эт.
    36 432 000 Р
    Агент
    +7 (938) Показать номер
    Посмотреть контакты

    Не нашли подходящего объявления?

    Оставьте заявку, и наши риэлторы подберут псн в районе Балашихи

    (0)