15 500 000 Р 202 700 $ или 171 600

Информация об помещении

цоколь
Этаж

Состояние и оснащение

Количество этажей
20
Развернуть
Агент
+7 (916) 479-98-46
Начать чат с агентом

Помещение свободного назначения в Московская область, Балашиха 1 Мая ...

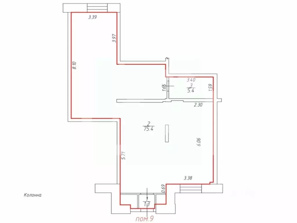
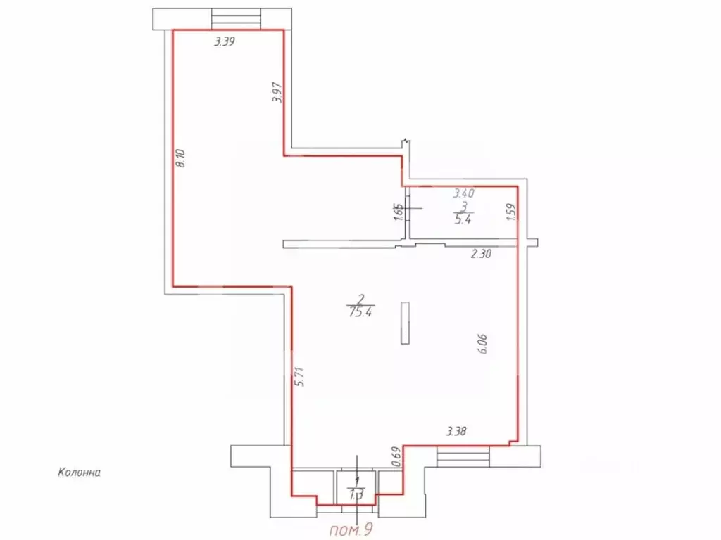
Продам помещение свободного назначения с отдельным входом. Помещение площадью 208 квадратных метра, расположено на цокольном этаже жилого дома. Отдельный вход с первой линии. Кабинетная планировка (всего 9 кабинетов во все кабинеты проведены мокрые точки). Свежий ремонт. Высокие потолки. 5 кабинетов с окнами. Помещение полностью сдано в аренду МАП 220 000р. Окупаемость менее 6 лет. Оперативный показ.

Читать полностью
    Позвонить Написать
    15 500 000 Р202 700 $ или 171 600
    Агент
    +7 (916) 479-98-46
    Начать чат с агентом
    Похожие предложения
    Помещение свободного назначения в Московская область, Балашиха Ольгино ... - Фото 1
    Помещение свободного назначения в Московская область, Балашиха Ольгино ... - Фото 2
    666127-gab . Предлагаем помещение свободного назначения формата Street Retail с сетевым арендатором Красное и Белое , площадью 82,1 кв. м., расположенное на первом этаже жилого дома в Балашихе. Без комиссии для покупателя.Преимущества объекта:-пешая...
    • 1/18 эт.
    16 000 000 Р
    Агент
    +7 (938) Показать номер
    Посмотреть контакты
    Помещение свободного назначения в Московская область, Балашиха 1 Мая ... - Фото 1
    Помещение свободного назначения в Московская область, Балашиха 1 Мая ... - Фото 2
    Продается нежилое помещение зальной планировки, площадью 83.3 м2. Дом расположен в районе с развитой инфраструктурой, большая проходимость, два отдельных входа. Один взрослый собственник, полная стоимость в договоре.
    • 1/17 эт.
    16 500 000 Р
    Агент
    +7 (915) Показать номер
    Посмотреть контакты
    Помещение свободного назначения в Московская область, Балашиха Ольгино ... - Фото 1
    Помещение свободного назначения в Московская область, Балашиха Ольгино ... - Фото 2
    666127-gab . Предлагаем помещение свободного назначения формата Street Retail с сетевым арендатором Красное и Белое , площадью 82,1 кв. м., расположенное на первом этаже жилого дома в Балашихе. Без комиссии для покупателя.Преимущества объекта:-пешая...
    • 1/18 эт.
    16 000 000 Р
    Агент
    +7 (938) Показать номер
    Посмотреть контакты
    Помещение свободного назначения в Московская область, Балашиха Саввино ... - Фото 1
    Помещение свободного назначения в Московская область, Балашиха Саввино ... - Фото 2
    Данные получены с сайта ГИС Торги.Продажа нежилого помещения 173.8 кв.м. в г.о. Балашиха
    • 5 этажей
    16 976 000 Р
    Агент
    +7 (923) Показать номер
    Посмотреть контакты
    Помещение свободного назначения в Московская область, Балашиха Ольгино ... - Фото 1
    Помещение свободного назначения в Московская область, Балашиха Ольгино ... - Фото 2
    666127-gab . Предлагаем помещение свободного назначения формата Street Retail с сетевым арендатором Красное и Белое , площадью 82,1 кв. м., расположенное на первом этаже жилого дома в Балашихе. Без комиссии для покупателя.Преимущества объекта:-пешая...
    • 1/18 эт.
    16 000 000 Р
    Агент
    +7 (938) Показать номер
    Посмотреть контакты

    Не нашли подходящего объявления?

    Оставьте заявку, и наши риэлторы подберут псн в районе Балашихи

    (0)