42 000 000 Р 552 400 $ или 473 000

Информация об помещении

1
Этаж

Состояние и оснащение

Количество этажей
25
Развернуть
Агент
+7 (938) 656-74-88
Начать чат с агентом

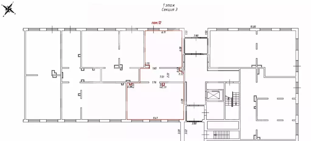
Помещение свободного назначения в Московская область, Балашиха ул. ...

1098266 . Предлагаем свободное помещение свободного назначения формата street-retail в ЖК Новое Измайлово-2 , площадью 147 кв. м, расположенное на первом этаже 25-этажного жилого дома. Без комиссии для покупателя.Преимущества объекта:-ЖК состоит из 3-х 25-этажных корпусов, рассчитанных на 1 189 квартир;-13 минут на автомобиле от станции МЦД-4 Салтыковская ;-удобная транспортная доступность: 1.5 км до Леоновского шоссе, 1.7 км до шоссе Энтузиастов, 4.5 км до Объездного шоссе, 5.8 км до Балашихинского шоссе;-плотный жилой массив;-развитая инфраструктура района;-высокий автомобильный и пешеходный трафик;-отлично просматривается, находится в легком доступе для потенциальных клиентов;-гибкая планировка, позволяющая адаптировать пространство под различные нужды;-витринное остекление;-возможность размещения вывески;-наземная парковка;-рядом остановка общественного транспорта.Технические параметры объекта:-отдельный вход с улицы.-электрическая мощность: 40 кВт.Свяжитесь с нами для получения дополнительной информации

Читать полностью
    Позвонить Написать
    42 000 000 Р552 400 $ или 473 000
    Агент
    +7 (938) 656-74-88
    Начать чат с агентом
    Похожие предложения
    Помещение свободного назначения в Московская область, Реутов  (147 м) - Фото 1
    Помещение свободного назначения в Московская область, Реутов  (147 м) - Фото 2
    В продаже от застройщика ЖК EVO г. Реутов, Литер Срок сдачи: 4 кв. 2026, общей площадью 147.47 кв.м.,на 1 этаже. EVO проект комфорт-класса в стиле модернизма,главный принцип которого заключается в создании новой архитектуры, соответствующей духу современности...
    • 1/25 эт.
    41 586 540 Р
    Агент
    +7 (968) Показать номер
    Посмотреть контакты
    Помещение свободного назначения в Московская область, Красногорск ... - Фото 1
    Помещение свободного назначения в Московская область, Красногорск ... - Фото 2
    983062-s . Предлагаем к приобретению торговое помещение формата Street Retail, площадью 110 кв. м., расположенное на первом этаже жилого дома в ЖК Ильинские луга . Без комиссии для покупателя. Преимущества объекта: -первая линия ул. Заповедная;-комплекс...
    • 1/9 эт.
    41 800 000 Р
    Агент
    +7 (938) Показать номер
    Посмотреть контакты
    Помещение свободного назначения (295 м) - Фото 1
    Помещение свободного назначения (295 м) - Фото 2
    Лот №1018791 Напишите нам в Ватсап, чтобы получить ПОДРОБНУЮ ПРЕЗЕНТАЦИЮ С ПЛАНИРОВКОЙ И ФОТОГРАФИЯМИ Продажа коммерческого помещения в новостройке: 295,00 кв. м., 7 этаж в комплексе БЦ Панорама, 1 очередь, корп.1, сдача: 3кв. , этажей: 14, адрес Химки...
    • 7/14 эт.
    41 500 000 Р
    Агент
    +7 (495) Показать номер
    Посмотреть контакты
    Помещение свободного назначения в Московская область, Одинцовский ... - Фото 1
    Помещение свободного назначения в Московская область, Одинцовский ... - Фото 2
    Продается коммерческое помещение площадью 127,3 м в жилом комплексе МЫС — премиального проекта от девелопера MR, расположенного в благополучном Одинцовском районе. О проекте:- Удачное расположение проекта: 20 минут до Москва-Сити по дублеру Кутузовского...
    • 1/12 эт.
    42 887 370 Р
    Агент
    +7 (985) Показать номер
    Посмотреть контакты
    Помещение свободного назначения в Московская область, Одинцовский ... - Фото 1
    Помещение свободного назначения в Московская область, Одинцовский ... - Фото 2
    Продается коммерческое помещение площадью 120,7 м в жилом комплексе МЫС — премиального проекта от девелопера MR, расположенного в благополучном Одинцовском районе. О проекте:- Удачное расположение проекта: 20 минут до Москва-Сити по дублеру Кутузовского...
    • 1/12 эт.
    42 077 830 Р
    Агент
    +7 (985) Показать номер
    Посмотреть контакты

    Не нашли подходящего объявления?

    Оставьте заявку, и наши риэлторы подберут псн в районе Балашихи

    (0)