Реализация объекта недвижимости приостановлена

Информация об помещении

1
Этаж

Состояние и оснащение

Количество этажей
1
Развернуть

Производственное помещение в Московская область, Балашиха Новгородская ...

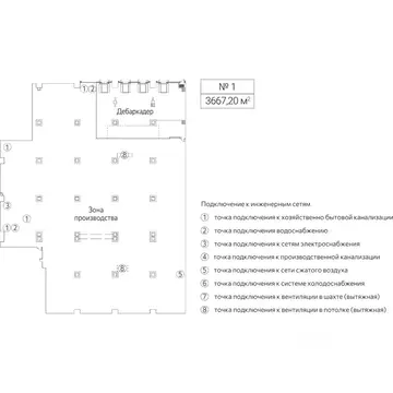
Продажа помещений под производство от собственника по инвестиционным ценам в Промышленном парке Балашиха, формат light industrial.Промышленный парк Балашиха это современные помещения для размещения производства, хранения, логистики, офиса и шоу-рума на одной территории.Девелопер Parametr (ГК ПИК)Готовность (сдача первой очереди): II квартал 2026 годаПомещения общей площадью от 602 м2 до 4 905 м2 в здании А состоит из универсального промышленно-складского блока и двухэтажной офисной части с возможностью организации шоу-рума. Количество доков с докшелтером и выдвижным доклевеллером и ворот на нулевом уровне от земли зависит от площади помещений. Технические характеристики помещения:Электроснабжение от 30 Вт/м2Рабочая высота потолков в промышленном помещении - 8 мШаг колонн 12х18 м, без вертикальных связейБетонный пол с антипылевым покрытием, нагрузка 5 тонн/кв.мСовременная система пожаротушения и оповещенияОфисное помещение передается с отделкойУ каждого помещения предусмотрен собственный отдельный вход. Все блоки оснащены автономными коммуникациями, рассчитанными специально под требования производителей. Для комфорта резидентов на территории парка работает собственная УК. В зданиях отсутствует фиксированная нарезка помещений, благодаря чему возможно множество конфигураций блоков разной площади, в том числе блоки с кросс-доком. Возможна адаптация и дооснащение помещений под потребности бизнеса, а также строительство под запрос клиента.Точный адрес объекта: Московская область, городской округ Балашиха, 27-й километр. Координаты: 55.800875, 38.044658.Для эффективного построения логистики, парк располагается рядом с трассами федерального значения:- 15 км от МКАД- 1 км до Шоссе Энтузиастов- 1 км до М-7- 13 км до М-12В непосредственной близости к парку развита городская инфраструктура и транспортная доступность, что обеспечивает комфортное пребывание сотрудников на объекте:- Ближайшая остановка общественного транспорта находится в 4 минутах ходьбы от объекта- 30 мин. на общественном транспорте от м. Первомайская- 25 мин. на общественном транспорте от м. Новокосино- 30 мин. на общественном транспорте от МЦД Кучино- 30 мин. на общественном транспорте от МЦД СалтыковскаяПри единовременной полной оплате стоимость 1 м (с учетом НДС)Количество лотов по указанной цене ограничено, стоимость может вырасти до 30 исходя из текущей строительной готовностиВозможны различные варианты оплаты, в том числе рассрочка с первоначальным взносом от 10 и возможностью досрочного выкупа помещенийДополнительная информация и презентация по запросу.Звоните обсудим задачи вашего бизнеса и подберем идеальное решение

Читать полностью

    Реализация объекта недвижимости приостановлена

    Не нашли подходящего объявления?

    Оставьте заявку, и наши риэлторы подберут производственное помещение в районе Балашихи

    (0)