Россия, Подмосковье, Балашиха г. о., Балашиха, улица Адмирала Нахимова, 15
5 600 000 Р 74 860 $ или 63 720

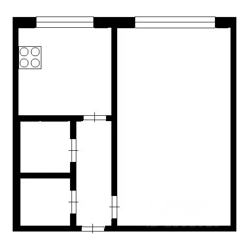
Информация о квартире

34 м2
Площадь
18 м2
Жилая
8 м2
Кухня
1
Комната
2
Этаж
9
Этажность

Дополнительная информация

Тип дома
панельный
Развернуть
Агент
+7 (992) 252-60-56
Начать чат с агентом

1-к кв. Московская область, Балашиха Купавна мкр, ул. Адмирала ...

Предлагается к продаже уютная однокомнатная квартира в мкр. Купавна г.о. Балашиха, находящаяся на 2-м этаже 9-этажного панельного дома 1991 года постройки. Удачное расположение дома обусловлено близостью к ж/д ст. Купавна (6 мин. пешком спокойным шагом, 45 минут на электричке до Курского вокзала), в пешей доступности также остановки общественного транспорта. Инфраструктура прекрасно развита, вблизи есть всё необходимое для комфортного проживания: торговый центр, магазины, школа, детский сад, медицинские учреждения, аптека, салон красоты и т.п. Планировка квартиры функциональная: большая комната 18.3 кв.м с уютной нишей под спальное место, кухня 8.5 кв.м, оборудованная всем необходимым, просторная прихожая со встроенным шкафом, раздельный санузел (ванна поперечная), 4-метровая застеклённая и утеплённая лоджия. Квартира находится в отличном жилом состоянии, несколько лет назад произведён капитальный ремонт, заменены: проводка, полы, сантехника, входная дверь, установлены новые стеклопакеты (в том числе на лоджии). Можно сразу заехать и жить. Мебель и техника остаются новому владельцу. Квартира принадлежит одному собственнику с 2014 года на основании ДКП. Выписка до сделки, прямая свободная продажа.

Читать полностью

    Для того, чтобы купить однокомнатную квартиру по адресу: Балашиха, улица Адмирала Нахимова, 15, позвоните по телефону +7 (992) 252-60-56. Торопитесь! Объявление №30095169111 о продаже однокомнатной квартиры опубликовано 26 апреля 2026.

    Позвонить Написать
    5 600 000 Р74 860 $ или 63 720
    Агент
    +7 (992) 252-60-56
    Начать чат с агентом
    Похожие предложения
    1-к кв. Московская область, Балашиха ул. Твардовского, 15 (33.0 м) - Фото 1
    1-к кв. Московская область, Балашиха ул. Твардовского, 15 (33.0 м) - Фото 2
    1-комнатная квартира, общая площадь 33м², жилая 17м², кухня 9м²

    Продам Светлую, Уютную однокомнатную квартиру, Балашиха,ул. Твардовского, д15, 4 этаж панельного дома, общая 33, жилая 17, кухня 9, с/у- раздельный, балкон. Рядом лес, две школы, магазин, остановка на маршрутке до метро Москвы, Новогиреево. Собственность...
    • 33 м²
    • 1-ком
    • 4/9 эт.
    • панельный
    5 600 000 Р
    Агент
    +7 (967) Показать номер
    Посмотреть контакты
    1-к кв. Московская область, Балашиха ул. Текстильщиков, 15 (35.0 м) - Фото 1
    1-к кв. Московская область, Балашиха ул. Текстильщиков, 15 (35.0 м) - Фото 2
    1-комнатная квартира, общая площадь 35м², жилая 17м², кухня 6м²

    Уютная и стильная однокомнатная квартира на первом этаже пятиэтажного дома с площадью 35 кв.м. и кухней 6,7 кв.м. ждет своих новых хозяев Этот вариант идеально подойдет для молодых людей, студентов, родителей или пожилых родственников.Квартира имеет...
    • 35 м²
    • 1-ком
    • 1/5 эт.
    • панельный
    5 600 000 Р
    Агент
    +7 (988) Показать номер
    Посмотреть контакты
    Продается 1-комнатная квартира - Фото 1
    Продается 1-комнатная квартира - Фото 2
    1-комнатная квартира, общая площадь 36м², жилая 20м², кухня 10м²

    Г. Балашиха, ул. Фадеева, д.6, 14/16 пан,, о-36, ж.-20. к.10, лоджия, с/у совм.. окна-двор, под ремонт Предлагается к продаже хорошая по параметрам и расположению 1 к/кв в Южном квартале г. Балашихи. Рядом с домом есть все для комфортного проживания (...
    • 36 м²
    • 1-ком
    • 14/16 эт.
    5 500 000 Р
    Агент
    +7 (916) Показать номер
    Посмотреть контакты
    Продается 2-комнатная квартира - Фото 1
    Продается 2-комнатная квартира - Фото 2
    2-комнатная квартира, общая площадь 45м², жилая 33м², кухня 6м²

    2х комн. квартира. Ближайшее метро Новокосино, Некрасовка, Новогиреево, станция Кучино 15 минут транспортом. Теплая светлая квартира. Комнаты изолированные. Санузел раздельный. Просторная лоджия. Благоустроенный парк с детскими и спортивными площадками,...
    • 45 м²
    • 2-ком
    • 7/9 эт.
    5 600 000 Р
    Агент
    +7 (925) Показать номер
    Посмотреть контакты
    Продается 1-комнатная квартира - Фото 1
    Продается 1-комнатная квартира - Фото 2
    1-комнатная квартира, общая площадь 29м², жилая 13м², кухня 10м²

    ПРОДАЕТСЯ В СВЯЗИ С РАСШИРЕНИЕМ СЕМЬИ. По документам: первые собственники, договор участия в долевом строительстве от 20.03.2019, нотариально выделены небольшие детские доли в связи с использованы материнского капитала. Несложная альтернатива с нашей...
    • 29 м²
    • 1-ком
    • 10/18 эт.
    5 700 000 Р
    Агент
    +7 (903) Показать номер
    Посмотреть контакты

    Не нашли подходящего объявления?

    Оставьте заявку, и наши риэлторы подберут квартиру в районе Балашихи

    (0)