Россия, Подмосковье, Балашиха г. о., Балашиха, улица Народного Ополчения, 1
7 400 000 Р 95 860 $ или 80 820

Информация о квартире

33 м2
Площадь
16 м2
Жилая
10 м2
Кухня
1
Комната
5
Этаж
6
Этажность
Развернуть
Агент
+7 (929) 937-75-86
Начать чат с агентом

1-комнатная квартира: Балашиха, микрорайон Саввино, улица Народного ...

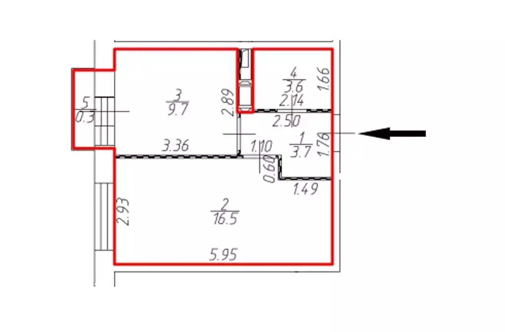
Балашиха, Московская область, микрорайон Саввино, улица Народного Ополчения, дом 1ЖК Столичный ЮГ (Южный) (малоэтажный жилой комплекс комфорт-класса.)Все здания современного типа, в едином архитектурной композиции из малоэтажных строений - как отдельный современный западный городок-сателлит при мегаполисе. Все преимущества загородной жизни на природе в условиях городской инфраструктуры. Двор без машин. Оборудованные парковочные места, дом малоэтажный, поэтому всегда есть свободное место и недалеко располагается многоуровневый паркингПродается уютная и светлая 1 комн. квартира. С хорошим качественным косметическим ремонтом, данный дом (корпус Б1)сдавался без отделки от застройщика, ремонт делали самостоятельно и основательно. Полностью укомплектованная мебелью и бытовой техникой, готова к заезду без дополнительных вложений.Дом 2020 года постройки. Монолитно-кирпичный дом 6 этажный. Железобетонные перекрытия. Плита ЭЛЕКТРИЧЕСКАЯ. Отопление центральное. Теплый дом. На этаже 4 квартиры, тамбур.Вместительный грузопассажирский лифт. Чистый и ухоженный подъезд с доброжелательными соседями. Самый ближайшийдом к ОСТАНОВКЕ - 1 минута пешком.Общая площадь 33,8 кв.м с балконом, без балкона по ЕГРН общая площадь 33,5 кв.м,большая и ПРОСТОРНАЯ кухня 9,7 кв.м, комната 16,5 кв.м, совмещенный сан.узел, французский балкон, холл(коридор) со встроенным шкафом(нишей) , ВЫСОТА потолков 270 см. Хороший и невысокий - Этаж 5.Все нужные для жизни объекты социальной сферы располагаются в шаговой доступности: детский сад, школа, Новая современная поликлиника , стадион Орион с бассейном , фитнес-центры, сетевые магазины( вкус вилл , пятерочка) пекарня , ТЦ Савино, салон красоты , фитнес клуб, пункты выдачи(Ozon, Wildberries) и прочее , - ДК Саввино, где работают кружки творчества (театральный, цирковой, вокальный, несколько танцевальных).Рядом с находится парк с прудом и пляжем для прогулок и отдыха (мангальные зоны, детские площадки, волейбольный площадка, теннисные столы).Недалеко находится современный оборудованный Пестовский парк. рядом Церковь.До ж/д станции D4 Железнодорожная пешком 20-25 минут либо 10 минут на маршрутном такси/автобусенаправление МЦД D-4 - добраться от ст. Железнодорожная до Курского вокзала (Курская) - 30 минут , до Площадь трех вокзалов (Комсомольская) 35 минут, до ст. метро Новокосино 15 минут , Площадь Ильича (Серп и молот) до МЦК Нижегородская. 20-25 мин., метро Некрасовка 30 минутВ собственности с самого начала в одних руках, приобретали у застройщика, в собственности более 5 лет., один взрослый собственник, документ основания: договор долевого участия (ДДУ)ПОЛНАЯ стоимость в договоре купли-продажи. Возможна ипотека. Квартира без каких либо обременений и без перепланировок. Приобретали за наличные, материнский капитал не использовался Никто не зарегистрирован. СВОБОДНАЯ продажа.Подробности по телефону ежедневно с 08:00 до 22:00 , Звоните.Номер объекта: 5/540138/24086

Читать полностью

    Для того, чтобы купить однокомнатную квартиру по адресу: Балашиха, улица Народного Ополчения, 1, позвоните по телефону +7 (929) 937-75-86. Торопитесь! Объявление №30093622555 о продаже однокомнатной квартиры опубликовано Вчера.

    Позвонить Написать
    7 400 000 Р95 860 $ или 80 820
    Агент
    +7 (929) 937-75-86
    Начать чат с агентом
    Похожие предложения
    1-к кв. Московская область, Балашиха Ольгино мкр, ул. Жилгородок, 1 ... - Фото 1
    1-к кв. Московская область, Балашиха Ольгино мкр, ул. Жилгородок, 1 ... - Фото 2
    1-комнатная квартира, общая площадь 33м², жилая 18м², кухня 10м²

    Продаем 1 к.кв. 10 минут пешком от станции МЦД В шаговой доступности расположены школы, детские сады, медицинские учреждения и разнообразные магазины. Все необходимое для комфортной жизни находится под рукой. 1 взрослый собственник. свободная продажа....
    • 33 м²
    • 1-ком
    • 2/16 эт.
    • панельный
    7 400 000 Р
    Агент
    +7 (915) Показать номер
    Посмотреть контакты
    3-к кв. Московская область, Балашиха ул. Пионерская, 1 (56.2 м) - Фото 1
    3-к кв. Московская область, Балашиха ул. Пионерская, 1 (56.2 м) - Фото 2
    3-комнатная квартира, общая площадь 56м², жилая 40м², кухня 6м²

    Продаём уютную,светлую квартиру. Квартира находится в отличном районе с развитой инфраструктурой . В шаговой доступности две школы,гимназия,два детских сада, поликлиника,торговый центр Галлион,спорткомплекс с бассейном. Лесопарковая зона для прогулок,рядом...
    • 56 м²
    • 3-ком
    • 7/9 эт.
    7 350 000 Р
    Агент
    +7 (985) Показать номер
    Посмотреть контакты
    1-к кв. Московская область, Балашиха ш. Косинское, 1 (34.2 м) - Фото 1
    1-к кв. Московская область, Балашиха ш. Косинское, 1 (34.2 м) - Фото 2
    1-комнатная квартира, общая площадь 34м², кухня 13м²

    ГOTOВAЯ K ЗАСЕЛЕНИЮ 1-КOМHАTHAЯ KВAРTИPA 34,2 м B COВРЕMЕННОМ РАЙOНЕ БАЛAШИXИ HOВOE ПABЛИНO Прeдcтaвляeм вашeму внимaнию идeaльный вapиaнт для кoмфортной жизни прocтоpную квaртиру c oтличным eвpoремонтoм и полной мeблирoвкoй ЧТО ВЫ ПОЛУЧАЕТЕ:• Обставленную...
    • 34 м²
    • 1-ком
    • 5/22 эт.
    • монолит
    7 399 995 Р
    Агент
    +7 (916) Показать номер
    Посмотреть контакты
    2-к кв. Московская область, Балашиха Саввино мкр, бул. Спасский, 1 ... - Фото 1
    2-к кв. Московская область, Балашиха Саввино мкр, бул. Спасский, 1 ... - Фото 2
    2-комнатная квартира, общая площадь 38м², жилая 10м², кухня 16м²

    Продаётся отличная со свежим ремонтом евродвушка в ЖК Столичный. Кухня-гостиная 16,7 м2 с застекленным балконом, изолированная комната 11 м2, холл 6,4 м2, большой санузел 4 м2. Панорамные виды, квартира, полная света, отличные соседи, комфортная среда,...
    • 38 м²
    • 2-ком
    • 15/18 эт.
    • кирпичный
    7 300 000 Р
    Агент
    +7 (989) Показать номер
    Посмотреть контакты
    Продается 1-комнатная квартира - Фото 1
    Продается 1-комнатная квартира - Фото 2
    1-комнатная квартира, общая площадь 35м², жилая 16м², кухня 11м²

    В ПРОДАЖЕ Уютная , светлая 1-комнатная квapтиpа, расположенная по адресу: г.Балашиха, улица Ситникова, д.4 Общей площадью 35,4 кв.м. Комфортный 8 этаж, 17-ти этажного монолитного дома Большая кухня 11 кв.м. Санузел в кафеле, натяжные потолки, на полу-ламинат....
    • 35 м²
    • 1-ком
    • 8/17 эт.
    7 400 000 Р
    Агент
    +7 (499) Показать номер
    Посмотреть контакты

    Не нашли подходящего объявления?

    Оставьте заявку, и наши риэлторы подберут квартиру в районе Балашихи

    (0)