Россия, Подмосковье, Балашиха г. о., Балашиха, Балашиха г. Гагарина мкр, 6
15 500 000 Р 198 100 $ или 168 300

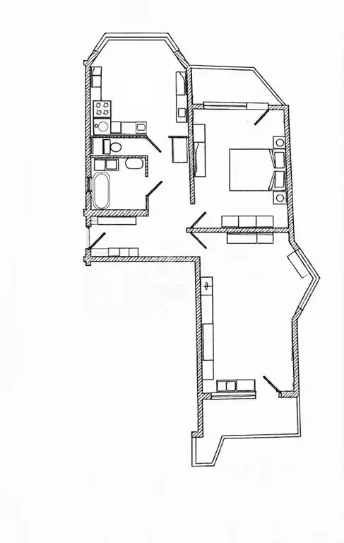
Информация о квартире

98 м2
Площадь
40 м2
Жилая
14 м2
Кухня
2
Комнаты
4
Этаж
8
Этажность
Развернуть
Агент
+7 (499) 372-92-13
Начать чат с агентом

Продается 2-комнатная квартира

Код объекта: 1991290.Продаётся просторная, светлая 2-комнатная квартира в экологичном районе Балашихи идеальный уголок для жизни в гармонии с природой Жилой комплекс Лесная сказка , расположенный в микрорайоне Гагарина, это настоящее воплощение мечты о жизни в окружении природы. Район по праву считается одним из самых зелёных и благоприятных в Балашихе. С одной стороны вас встречает величественный Лосиный остров, с другой живописный Горенский лесопарк. Всего в пешей доступности находятся два озера, где можно отдыхать, гулять и наслаждаться пейзажами в любое время года.Дом построен в 2008 году по индивидуальному проекту из кирпича с железобетонными перекрытиями, что обеспечивает отличную звукоизоляцию и тепло в квартирах. Территория полностью закрыта и охраняется, установлен автоматический шлагбаум. Во дворе ухоженная зона отдыха, детская и спортивная площадки. Отличная транспортная доступность: всего 4 км до МКАД и 6 км до метро Щёлковская . Рядом с домом две остановки общественного транспорта, что позволяет добраться до метро примерно за 15 минут. Выезд на Щёлковское шоссе занимает считанные минуты.Квартира находится на 4 этаже 8-этажного дома. Общая площадь: 98 м2 (78 м2 без учёта лоджий и эркера) · Жилая площадь: 40 м2 · Кухня: 14 м2 просторная и светлая. Коридор: 16 м2 · Раздельный санузел. Высота потолков: 3 метра ощущение простора и воздуха Комнаты изолированные, идеально подходят для семьи или работы из дома. Лоджии: две по 5 м2 не застеклены, готовы к вашим идеям. Эркер: 8,8 м2, уже застеклён отличное место для уютного уголка с видом на природу. Квартира без обременений. Один взрослый собственник. Возможна покупка в ипотеку.Установлена новая надёжная железная входная дверь. Остаётся мебель: готовая кухня и система хранения для одежды. Светлые стены, ровные полы, современная сантехника Эркер с панорамным остеклением добавляет квартире шарма и может стать вашим любимым местом для чаепитий, чтения или работы с видом на лесПочему эта квартира отличный выбор? 1. Экология и тишина: сосновый лес вокруг, свежий воздух, пение птиц вместо городского шума. 2. Безопасность: закрытая территория, шлагбаум, спокойная атмосфера во дворе. 3. Инфраструктура: рядом озера, лесопарки, детские и спортивные площадки. В районе развитая социальная и торговая инфраструктура. 4. Транспорт: быстрый выезд на МКАД и в Москву, общественный транспорт рядом. 5. Качество дома: кирпичный, тёплый, с высокими потолками и лифтами. 6. Готовность к жизни: не нужно делать ремонт можно заезжать и наслаждаться жизнью. Звоните, чтобы назначить просмотр Квартира действительно стоит того, чтобы увидеть её своими глазами. Она сочетает в себе уют городского жилья и близость к природе. Отличный вариант для семьи с детьми, для тех, кто ценит тишину и природу, или для инвестиции район активно развивается, а экологичное жильё всегда в цене.

Читать полностью

    Для того, чтобы купить двухкомнатную квартиру по адресу: Балашиха, Балашиха г. Гагарина мкр, 6, позвоните по телефону +7 (499) 372-92-13. Торопитесь! Объявление №30092829285 о продаже двухкомнатной квартиры опубликовано Вчера.

    Позвонить Написать
    15 500 000 Р198 100 $ или 168 300
    Агент
    +7 (499) 372-92-13
    Начать чат с агентом
    Похожие предложения
    2-к кв. Московская область, Балашиха Гагарина мкр, 6 (100.0 м) - Фото 1
    2-к кв. Московская область, Балашиха Гагарина мкр, 6 (100.0 м) - Фото 2
    2-комнатная квартира, общая площадь 100м², жилая 41м², кухня 14м²

    Арт.Элитная 2-комнатная квартира 100 м в ЖК Лесная сказка ваш оазис у леса Мечтаете жить в гармонии с природой, не отказываясь от городского комфорта? Представляем вашему вниманию просторную 2-комнатную квартиру в живописном районе Балашихи, мкр. Гагарина,...
    • 100 м²
    • 2-ком
    • 4/10 эт.
    • кирпичный
    15 500 000 Р
    Агент
    +7 (967) Показать номер
    Посмотреть контакты
    2-комнатная квартира: Балашиха, микрорайон Гагарина, 6 (98 м) - Фото 1
    2-комнатная квартира: Балашиха, микрорайон Гагарина, 6 (98 м) - Фото 2
    2-комнатная квартира, общая площадь 98м², жилая 40м², кухня 14м²

    Код объекта: 1991290.Продаётся просторная, светлая 2-комнатная квартира в экологичном районе Балашихи — идеальный уголок для жизни в гармонии с природой Жилой комплекс «Лесная сказка , расположенный в микрорайоне Гагарина, — это настоящее воплощение мечты...
    • 98 м²
    • 2-ком
    • 4/8 эт.
    15 500 000 Р
    Агент
    +7 (936) Показать номер
    Посмотреть контакты
    2-к кв. Московская область, Балашиха Гагарина мкр, 6 (98.0 м) - Фото 1
    2-к кв. Московская область, Балашиха Гагарина мкр, 6 (98.0 м) - Фото 2
    2-комнатная квартира, общая площадь 98м², жилая 40м², кухня 14м²

    Код объекта: 1955549.Представляем вам великолепную квартиру в кирпичном доме, построенном по индивидуальному проекту, расположенном в живописном и тихом районе, окруженном сосновым лесом. С одной стороны — Лосиный остров, с другой — Горинский лесопарк,...
    • 98 м²
    • 2-ком
    • 4/8 эт.
    • кирпичный
    15 500 000 Р
    Агент
    +7 (986) Показать номер
    Посмотреть контакты
    Продается 3-комнатная квартира - Фото 1
    Продается 3-комнатная квартира - Фото 2
    3-комнатная квартира, общая площадь 97м², жилая 52м², кухня 10м²

    Код объекта: 1691375. РОСКОШНОЕ ПРЕДЛОЖЕНИЕ Продаётся просторная трёхкомнатная квартира для жизни: отличная планировка, евроремонт, качественные материалы отделки, качественная мебель, межкомнатные двери из массива дерева - можно въехать и с удовольствием...
    • 97 м²
    • 3-ком
    • 14/17 эт.
    16 700 000 Р
    Агент
    +7 (499) Показать номер
    Посмотреть контакты
    Продается 4-комнатная квартира - Фото 1
    Продается 4-комнатная квартира - Фото 2
    4-комнатная квартира, общая площадь 118м², жилая 70м², кухня 12м²

    Номер лота: 91893. Ваши дети мечтают о своей комнате? А Вы о спокойном вечере на собственной лоджии? Тогда это Ваш идеальный дом Смотрите, что мы для Вас нашли: 4 отдельные комнаты: Распределите пространство так, как хочется Вам. Две огромные комнаты...
    • 118 м²
    • 4-ком
    • 3/10 эт.
    17 000 000 Р
    Агент
    +7 (499) Показать номер
    Посмотреть контакты

    Не нашли подходящего объявления?

    Оставьте заявку, и наши риэлторы подберут квартиру в районе Балашихи

    (0)