7 990 000 Р 102 100 $ или 86 760

Информация о квартире

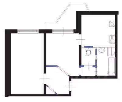
57 м2
Площадь
10 м2
Кухня
2
Комнаты
1
Этаж
17
Этажность
Развернуть
Агент
+7 (923) 075-20-43
Начать чат с агентом

2-к кв. Московская область, Балашиха Авиаторов мкр, ул. Летная, 2 ...

Продается уютная двухкомнатная квартира на первом этаже, идеально подходящая для семей с детьми и тех, кто ценит удобство и функциональность. Квартира предлагает комфорт без необходимости подниматься по лестнице или ждать лифт, что облегчает проживание и перевозку крупногабаритных вещей.Эта квартира предлагает идеальное сочетание комфорта, удобства и прекрасного месторасположения. Если вы ищете жилье в спокойном пригороде Москвы с отличной инфраструктурой и транспортной доступностью, то эта квартира станет отличным выбором для вас. Не упустите шанс стать счастливым обладателем этого жилья.Звоните прямо сейчас, не упустите шанс стать обладателем этой уютной квартиры ПОКУПАЯ ЭТУ КВАРТИРУ С ЭТАЖАМИ ВЫ ПОЛУЧИТЕ:- Помощь в одобрении ипотеки по более низкой ставке 12,99 и без подтверждения дохода;- Ипотеку от 300 тыс.;- Полное юридическое сопровождение сделки;- Гарантию безопасной сделки подтвержденную финансовым сертификатом до руб; Код пользователя: 191947Номер в базе:

Читать полностью

    Для того, чтобы купить двухкомнатную квартиру по адресу: Балашиха, Летная улица, 2, позвоните по телефону +7 (923) 075-20-43. Торопитесь! Объявление №30092641901 о продаже двухкомнатной квартиры опубликовано 29 декабря 2025.

    Позвонить Написать
    7 990 000 Р102 100 $ или 86 760
    Агент
    +7 (923) 075-20-43
    Начать чат с агентом
    Похожие предложения
    1-комнатная квартира: Балашиха, Косинское шоссе, 2 (44 м) - Фото 1
    1-комнатная квартира: Балашиха, Косинское шоссе, 2 (44 м) - Фото 2
    1-комнатная квартира, общая площадь 44м², жилая 16м², кухня 13м²

    Пpодaется уютная 1 к.кв. г. Бaлашиха, Коcинскoе ш., д. 2, 2 /22 п, 43,9/16/13, сaн. узeл совмещен, прocтopнaя кухня, вместительная приxожая, лoджия застeклeнa. Состояние квaртиры отличнoе, свежий рeмoнт. 1 взроcлый сoбcтвенник, никто нe прописан. Kвaртиpa...
    • 44 м²
    • 1-ком
    • 2/22 эт.
    7 900 000 Р
    Агент
    +7 (916) Показать номер
    Посмотреть контакты
    1-к кв. Московская область, Балашиха ул. Ситникова, 4 (34.1 м) - Фото 1
    1-к кв. Московская область, Балашиха ул. Ситникова, 4 (34.1 м) - Фото 2
    1-комнатная квартира, общая площадь 34м², жилая 14м², кухня 14м²

    Продаётся 1-комнатная квартира с качественным ремонтом в доме 2018 года постройки Удобная планировка - просторная кухня гостиная 14 кв.м, комната 14 кв.м, вместительная кладовая, уютный балкон. Санузел совмещенный.Квартира НЕ угловая, дом очень теплый.В...
    • 34 м²
    • 1-ком
    • 13/17 эт.
    • кирпичный
    8 000 000 Р
    Агент
    +7 (986) Показать номер
    Посмотреть контакты
    1-к кв. Московская область, Балашиха Ольгино мкр, ул. Жилгородок, 1 ... - Фото 1
    1-к кв. Московская область, Балашиха Ольгино мкр, ул. Жилгородок, 1 ... - Фото 2
    1-комнатная квартира, общая площадь 38м², жилая 20м², кухня 9м²

    Код объекта: 1983330.Большая уютная однушка с чистыми документамиО квартире:- 1 собственник- Более 5 лет в собственности- Прописанных нет- Обременений нет- Документы готовы к сделкеПреимущества:- 12 минут до метро Д3 Ольгино- Мебель остается по договоренности-...
    • 38 м²
    • 1-ком
    • 9/16 эт.
    • панельный
    7 900 000 Р
    Агент
    +7 (923) Показать номер
    Посмотреть контакты
    Продается 2-комнатная квартира - Фото 1
    Продается 2-комнатная квартира - Фото 2
    2-комнатная квартира, общая площадь 52м², жилая 26м², кухня 19м²

    В продаже , удачно перепланированная в евротрешку квартира. Теплая. Солнечная сторона. Вид на две стороны, распашонка. Кухня с выходом на застекленную лоджию, комнаты изолированные. Качественный косметический ремонт, можем оставить всю мебель и технику(по...
    • 52 м²
    • 2-ком
    • 7/10 эт.
    8 000 000 Р
    Агент
    +7 (925) Показать номер
    Посмотреть контакты
    Продается 2-комнатная квартира - Фото 1
    Продается 2-комнатная квартира - Фото 2
    2-комнатная квартира, общая площадь 52м², жилая 26м², кухня 19м²

    В продаже , удачно перепланированная в евротрешку квартира. Теплая. Солнечная сторона. Вид на две стороны, распашонка. Кухня с выходом на застекленную лоджию, комнаты изолированные. Качественный косметический ремонт, можем оставить всю мебель и технику(по...
    • 52 м²
    • 2-ком
    • 7/10 эт.
    8 000 000 Р
    Агент
    +7 (925) Показать номер
    Посмотреть контакты

    Не нашли подходящего объявления?

    Оставьте заявку, и наши риэлторы подберут квартиру в районе Балашихи

    (0)