8 800 000 Р 112 500 $ или 95 550

Информация о квартире

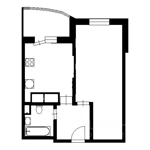
53 м2
Площадь
30 м2
Жилая
9 м2
Кухня
2
Комнаты
12
Этаж
14
Этажность

Дополнительная информация

Тип дома
панельный
Развернуть
Агент
+7 (984) 324-18-50
Начать чат с агентом

2-к кв. Московская область, Балашиха Южное Кучино мкр, 5 (53.0 м)

Продается уютная двухкомнатная квартира с изолированными комнатами в панельном доме 1994 года постройки. От ст. Кучино 8-10 минут пешком. Общая площадь квартиры составляет 53 кв. м, из них 30 кв. м — жилая площадь, а кухня занимает 9 кв. м. Квартира расположена на 12 этаже 14-этажного дома. Высота потолков — 2.7 метра, с/у раздельный. Из окон открывается вид на лесопарк, что добавляет тишины и спокойствия.В квартире сделан косметический ремонт, можно сразу заехать и жить. В квартире остекленная лоджия, окна на солнечную сторону. Дом находится в районе с развитой инфраструктурой. В пешей доступности школы и детские сады, что удобно для семей с детьми. Рядом расположены различные магазины, где можно совершать повседневные покупки. До метро Кучино можно дойти всего за 8 минут пешком, что обеспечивает удобный доступ к общественному транспорту и другим районам города.Квартира без каких-либо обременений или ограничений, отсутствуют перепланировки. Возможна покупка в ипотеку. Все необходимые документы готовы к сделке. 3 взрослых собственника на основании приватизации, легкая альтернатива на меньшую площадь.Оперативный показ, ключи на руках.

Читать полностью

    Для того, чтобы купить двухкомнатную квартиру по адресу: Балашиха, Южное Кучино мкр, 5, позвоните по телефону +7 (984) 324-18-50. Торопитесь! Объявление №30091144832 о продаже двухкомнатной квартиры опубликовано 2 дня назад.

    Позвонить Написать
    8 800 000 Р112 500 $ или 95 550
    Агент
    +7 (984) 324-18-50
    Начать чат с агентом
    Похожие предложения
    1-к кв. Московская область, Балашиха бул. Горенский, 5 (44.4 м) - Фото 1
    1-к кв. Московская область, Балашиха бул. Горенский, 5 (44.4 м) - Фото 2
    1-комнатная квартира, общая площадь 44м², жилая 22м², кухня 12м²

    Продается ИДЕАЛЬНАЯ однокомнатная квартира в ЖК Новое Измайлово Квартира очень светлая, просторная, чистая. Просторная кухня 12,8 кв.м. с выходом на утепленную уютную лоджию с теплым полом, красивая большая комната 22,7 кв.м. с гардеробной, просторные...
    • 44 м²
    • 1-ком
    • 21/25 эт.
    • монолит
    8 800 000 Р
    Агент
    +7 (923) Показать номер
    Посмотреть контакты
    Продается 2-комнатная квартира - Фото 1
    Продается 2-комнатная квартира - Фото 2
    2-комнатная квартира, общая площадь 54м², жилая 30м², кухня 9м²

    Код объекта: 1947928.Продается отличная 2-х комнатная квартира в микрорайоне Авиаторов на улице Колдунова. Общая площадь квартиры - 54.6 квадратных метров.Жилая площадь - 30.5 квадратных метров.Кухня - 9.5 квадратных метров.Этаж - 6 из 17Год постройки...
    • 54 м²
    • 2-ком
    • 6/17 эт.
    8 800 000 Р
    Агент
    +7 (499) Показать номер
    Посмотреть контакты
    Продается 3-комнатная квартира - Фото 1
    Продается 3-комнатная квартира - Фото 2
    3-комнатная квартира, общая площадь 64м², жилая 40м², кухня 11м²

    Код объекта: 1981936.Продаётся квартира с панорамными видами на 24 этаже в ЖК Пехра Представляем к продаже уникальную квартиру для взыскательных покупателей трёхкомнатную квартиру на одном из верхних этажей в современном, динамично развивающемся жилом...
    • 64 м²
    • 3-ком
    • 24/26 эт.
    8 900 000 Р
    Агент
    +7 (499) Показать номер
    Посмотреть контакты
    Продается 2-комнатная квартира - Фото 1
    Продается 2-комнатная квартира - Фото 2
    2-комнатная квартира, общая площадь 58м², жилая 29м², кухня 15м²

    Код объекта: 1983212.Продаётся 2- х комнатная квартира в кирпичном доме 2013 года постройки по адресу: Балашихинское шоссе, д. 12Общая площадь квартиры - 58,4 кв.м.Жилая площадь - 29,8 кв.м.Площадь кухни - 14,95 кв.м.Транспортная доступность:Дом расположен...
    • 58 м²
    • 2-ком
    • 3/19 эт.
    8 800 000 Р
    Агент
    +7 (499) Показать номер
    Посмотреть контакты
    3-к кв. Московская область, Балашиха ул. Яганова, 8 (64.2 м) - Фото 1
    3-к кв. Московская область, Балашиха ул. Яганова, 8 (64.2 м) - Фото 2
    3-комнатная квартира, общая площадь 64м², жилая 40м², кухня 11м²

    Код объекта: 1981936.Продаётся квартира с панорамными видами на 24 этаже в ЖК Пехра Представляем к продаже уникальную квартиру для взыскательных покупателей — трёхкомнатную квартиру на одном из верхних этажей в современном, динамично развивающемся жилом...
    • 64 м²
    • 3-ком
    • 24/26 эт.
    • монолит
    8 900 000 Р
    Агент
    +7 (915) Показать номер
    Посмотреть контакты

    Не нашли подходящего объявления?

    Оставьте заявку, и наши риэлторы подберут квартиру в районе Балашихи

    (0)