Квартира, 1 комната, 30 м 4 800 000 Р Квартира, 1 комната, 30 м

02 ноября 2025
Россия, Подмосковье, Балашиха г. о., Балашиха, Квартал Авиаторов жилой комплекс, к2

Реализация объекта недвижимости приостановлена

Информация о квартире

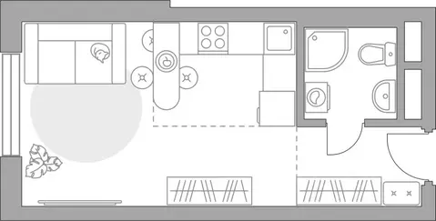
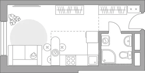
22.0 м2
Площадь
12.0 м2
Жилая
3.0 м2
Кухня
студия
Комнат
10
Этаж
12
Этажность

Дополнительная информация

Тип дома
монолит
Развернуть

Студия Московская область, Балашиха Квартал Авиаторов жилой комплекс, ...

Строим кварталы для жизни с заботой о будущем. Предлагается квартира студия комфорт-класса 22,28 кв.м в корпусе 2 на 10 этаже, в ЖК Квартал Авиаторов Квартира без отделки. Доступность опции отделка и возможность комплектации мебелью и декором уточняйте у застройщика.Приобрести квартиру возможно по специальным акциям от застройщика, с текущими условиями акций можно ознакомиться в блоке Акций .Цена динамическая и может отличаться, уточняйте актуальность у застройщика. Квартал Авиаторов — жилой комплекс комфорт-класса, расположенный в 2 км от железнодорожной станции Балашиха (5 минут на автомобиле, 30 минут пешком). Поблизости — Горенский лесопарк и заповедник Лосиный остров . В проекте предусмотрены закрытые дворы с детскими и спортивными площадками, безбарьерная среда.

Читать полностью

    Реализация объекта недвижимости приостановлена

    Не нашли подходящего объявления?

    Оставьте заявку, и наши риэлторы подберут квартиру в новостройке в районе Балашихи

    (0)