Реализация объекта недвижимости приостановлена

Информация о квартире

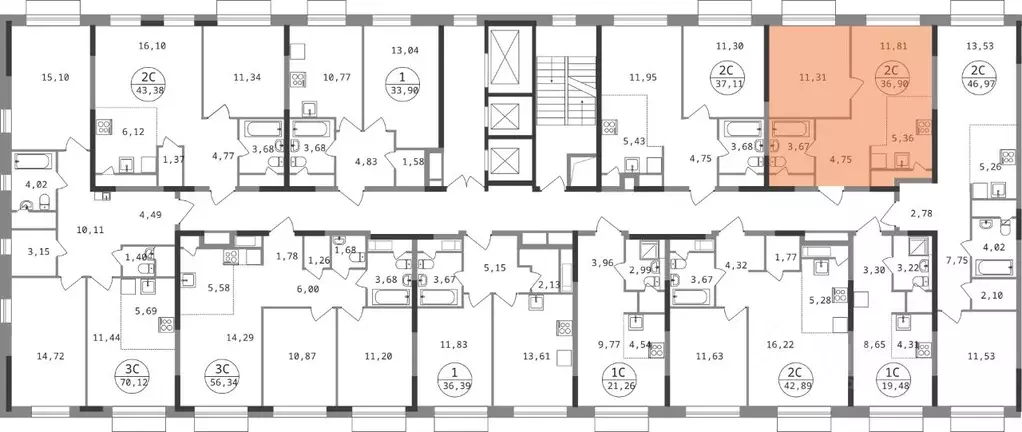
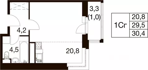
36.0 м2
Площадь
5.0 м2
Кухня
2
Комнаты
18
Этаж
22
Этажность

Дополнительная информация

Тип дома
монолит
Развернуть

2-к кв. Московская область, Балашиха Новое Павлино мкр, Новоград ...

Продается 2-комнатная квартира с отделкой white box в Новограде Павлино .Общая площадь квартиры - 36.90 кв. м., жилая - 23.12 кв.м. Этаж 18 из 22.Срок сдачи - 3 квартал 2025 года.Цена указана при 100 оплате. Новоград Павлино - это современный жилой квартал среди живописных природных лесопарков, где созданы все необходимые условия для активной жизни, комфортного отдыха и семейного досуга.Жилой комплекс расположен в 7 км от МКАД по Носовихинскому шоссе. В 15 мин. от ЖК находится станция метро Некрасовка . Большим преимуществом в расположении жилого комплекса является зеленая лесная зона: на севере от Новограда Павлиноасположены два крупнейших лесопарка столичного региона - Ольгинский и Павлинский .Цена указана с максимально возможной скидкой.

Читать полностью

    Реализация объекта недвижимости приостановлена

    Не нашли подходящего объявления?

    Оставьте заявку, и наши риэлторы подберут квартиру в новостройке в районе Балашихи

    (0)