199 000 000 Р 2 537 100 $ или 2 152 000

Информация о коттедже

450 м2
Площадь
2
Этажность
40 cоток
Участок

Дополнительная информация

Дом продаётся вместе с участком
есть
Развернуть
Агент
+7 (933) 937-02-47
Начать чат с агентом

Дом в Московская область, Балашиха Салтыковка мкр, ул. Лесные Поляны, ...

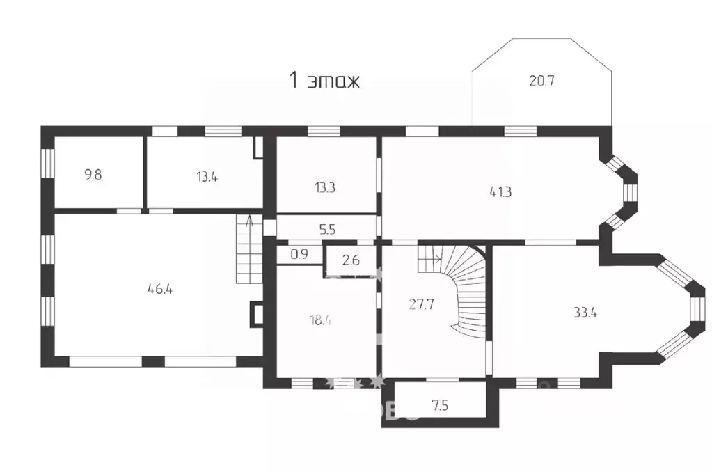
Номер в базе:. Резиденция расположена на охраняемой территории в 40 соток, где сохранен вековой лес и создан искусственный пруд с системой фильтрации и подпиткой от подземных источников. Главный дом площадью 450 кв. м выполнен из натуральных материалов — камня и дерева. На первом этаже расположены холл, кухня, две спальни и санузел, выход на просторную веранду с теплым полом. Второй этаж полностью отведен под приватную зону: мастер-спальня с гардеробной и ванной, а также кабинет с панорамным остеклением. В цокольном этаже оборудованы постирочная, санузел для персонала, гардеробные, кладовые и технические помещения. Отдельно стоит двухэтажный банный комплекс площадью 141 кв. м, включающий парную с окном в лес, джакузи, кедровую бочку, зону отдыха и террасу на первом уровне, а также две гостевые спальни на втором. Инженерное оснащение обеспечивает автономность и безопасность: два газовых котла Vaillant, теплые полы в ключевых зонах, приточно-вытяжная вентиляция, собственная скважина 75 метров с системой очистки, септик на 5 куб. м, электричество 15 кВт на каждый строение. Территория оборудована системой видеонаблюдения с удаленным доступом, подключена к централизованной охране через ЧОП и оснащена тревожной кнопкой. Объект предлагает редкое сочетание приватности, природного окружения и полного технологического контроля над всеми системами жизнеобеспечения.Код пользователя: 184307

Читать полностью

    Для того, чтобы купить 2-этажный коттедж по адресу: Балашиха, ул. Лесные Поляны, 140, позвоните по телефону +7 (933) 937-02-47. Торопитесь! Объявление №50016631311 о продаже двухэтажного коттеджа опубликовано 08 декабря 2025.

    Позвонить Написать
    199 000 000 Р2 537 100 $ или 2 152 000
    Агент
    +7 (933) 937-02-47
    Начать чат с агентом
    Похожие предложения
    Продается дом в КП Новахово - Фото 1
    Продается дом в КП Новахово - Фото 2
    общая площадь 632м², участок 17 соток

    Дом с отделкой в стиле современной классики и мебелью. Интерьер в светлых тонах. На участке выполнен ландшафтный дизайн, детский городок. 1 этаж: холл, гостиная с камином, столовая, кухня, спальная с санузлом, гостевой санузел, гараж на 2 машиноместа,...
    • 632 м²
    • 17 сот.
    206 217 960 Р
    Агент
    +7 (985) Показать номер
    Посмотреть контакты
    Коттедж в Московская область, Истра муниципальный округ, д. ... - Фото 1
    Коттедж в Московская область, Истра муниципальный округ, д. ... - Фото 2
    2 этажа, общая площадь 618м², участок 21 сотка

    ЛОТ 88057 П ОТДЕЛ ПРОДАЖ ЗАСТРОЙЩИКА. Продажа загородного дома общей площадью 618 кв. м. Коттеджный поселок Павлово. Новорижское шоссе, 14 км. от МКАД. Двухэтажный дом, выполненный под ключ, воплощает в себе безупречное качество, эстетику и комфорт современной...
    • 2 эт.
    • 618 м²
    • 21 сот.
    198 990 000 Р
    Агент
    +7 (919) Показать номер
    Посмотреть контакты
    Дом в Московская область, Истра муниципальный округ, д. Новинки  (534 ... - Фото 1
    Дом в Московская область, Истра муниципальный округ, д. Новинки  (534 ... - Фото 2
    2 этажа, общая площадь 534м², участок 50 соток

    ID 564633Продается дом 534 кв.м. с бассейном на участке 50 соток в Новинках. 16 км. от МКАД по Новорижскому шоссе.Этот уникальный дом сочетает в себе элегантность и комфорт. Большие окна, второй свет и высокие потолки создают ощущение простора и света....
    • 2 эт.
    • 534 м²
    • 50 сот.
    200 000 000 Р
    Агент
    +7 (985) Показать номер
    Посмотреть контакты
    Дом в Московская область, Одинцовский городской округ, д. Раздоры, ... - Фото 1
    Дом в Московская область, Одинцовский городской округ, д. Раздоры, ... - Фото 2
    2 этажа, общая площадь 620м², участок 12 соток

    ID 572221Продается дом 620 кв.м. с бассейном на участке 12 соток в д. Раздоры. 5 км. от МКАД по Рублево-Успенскому шоссе. Планировка:Цоколь: бассейн 11х4, сауна, с/у, котельная, прачечная, выход на участок;1 этаж: холл, гардеробная, гостиная-столовая...
    • 2 эт.
    • 620 м²
    • 12 сот.
    200 000 000 Р
    Агент
    +7 (985) Показать номер
    Посмотреть контакты
    Продается дом в КП Лесные поляны - Фото 1
    Продается дом в КП Лесные поляны - Фото 2
    общая площадь 650м²

    • 650 м²
    190 000 000 Р
    Агент
    +7 (495) Показать номер
    Посмотреть контакты

    Не нашли подходящего объявления?

    Оставьте заявку, и наши риэлторы подберут купить дом в районе Балашихи

    (0)