1 496 460 Р 17 640 $ или 15 440

Информация об помещении

1
Этаж

Состояние и оснащение

Количество этажей
1
Развернуть
Агент
+7 (938) 656-74-88
Начать чат с агентом

Помещение свободного назначения в Московская область, Апрелевка ...

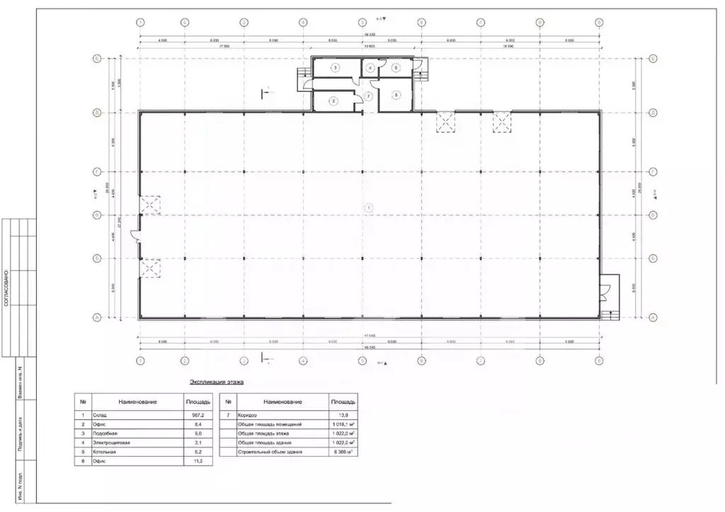
1099651. Предлагаем в аренду современный теплый склад общей площадью 1 018 кв. м. в Апрелевке. 1 этаж ОСЗ.Преимущества:Удобная транспортная доступность 28 км от МКАД по Киевскому шоссе.Близость к ЦКАД и Новой Москве.Локация: Апрелевка, удобный подъезд с Киевского шоссе.Развитая транспортная инфраструктура.Близость к метро Саларьево.Отапливаемое помещение.Центральные коммуникации: отопление, канализация.Бетонные полы класса В30 с защитным покрытием Протексил .Возможность маневра фур и парковка на 30 мест, подходит для грузового транспорта.Ворота 2 шт. на уровне 0.Режим работы 24/7.Технические характеристики:Общая площадь: 1 018 кв. м.Складская площадь: 967,2 кв. м.Офисная часть: 20,6 кв. м.Подсобные помещения: 12,3 кв. м.Высота потолков: 4.1 6.5 м.Нагрузка на пол: 1,5 т/кв. м.Высота ворот: 3 м.Электрическая мощность: 200 кВт (оплата отдельно по счетчику).Для получения дополнительной информации и организации просмотра, пожалуйста, свяжитесь с нами.

Читать полностью
    Позвонить Написать
    1 496 460 Р17 640 $ или 15 440
    Агент
    +7 (938) 656-74-88
    Начать чат с агентом
    Похожие предложения
    Помещение свободного назначения в Московская область, Апрелевка ... - Фото 1
    Помещение свободного назначения в Московская область, Апрелевка ... - Фото 2
    От собственника Без комиссии Характеристики:- 2 линия- Отдельная входная группа- Своя парковка- Есть возможность разместить вывеску- Погрузка/разгрузка: Главный вход, Запасной вход- Доступ 24/7- ХВС/ГВС- Свой санузел- Центральное отопление- Естественная...
    • 1/1 эт.
    1 530 000 Р
    Агент
    +7 (915) Показать номер
    Посмотреть контакты
    Помещение свободного назначения в Московская область, Апрелевка ... - Фото 1
    Помещение свободного назначения в Московская область, Апрелевка ... - Фото 2
    1099651. Предлагаем в аренду современный теплый склад общей площадью 1 018 кв. м. в Апрелевке. 1 этаж ОСЗ.Преимущества:Удобная транспортная доступность 28 км от МКАД по Киевскому шоссе.Близость к ЦКАД и Новой Москве.Локация: Апрелевка, удобный подъезд...
    • 1/1 эт.
    1 496 460 Р
    Агент
    +7 (938) Показать номер
    Посмотреть контакты
    Помещение свободного назначения в Московская область, Мытищи просп. ... - Фото 1
    Помещение свободного назначения в Московская область, Мытищи просп. ... - Фото 2
    1140858. Предлагаем помещение свободного назначения, площадью 475 кв. м., расположенное на первом этаже отдельно стоящего здания. Так как корректный адрес отсутствует на Яндекс.Картах, введен ближайший.Преимущества объекта:-15 минут на автомобиле от станции...
    • 1/1 эт.
    1 425 000 Р
    Агент
    +7 (938) Показать номер
    Посмотреть контакты
    Помещение свободного назначения в Московская область, Люберцы ... - Фото 1
    Помещение свободного назначения в Московская область, Люберцы ... - Фото 2
    Объект 313992Предлагается в аренду помещение 1475м2 на цокольном этаже . ТОРГОВО-РАЗВЛЕКАТЕЛЬНЫЙ КОМПЛЕКС РТС Томилино расположен в 8 км от МКАД, в непосредственной близости от Егорьевского шоссе, в 2 мин. от ж/д платформы Томилино. Расположение ТРК...
    • 1/1 эт.
    1 475 000 Р
    Агент
    +7 (916) Показать номер
    Посмотреть контакты
    Помещение свободного назначения в Московская область, Балашиха ... - Фото 1
    Помещение свободного назначения в Московская область, Балашиха ... - Фото 2
    972284. Отдельно стоящее складское здание в дер. Соболиха, г. о. Балашиха. Центр крупной промышленной зоны. Выезд на Новомилетское шоссе. Объект удобно расположен и доступен любому виду грузового и легкового транспорта. 1 этаж. Открытая планировка. Внутри...
    • 1/1 эт.
    1 452 000 Р
    Агент
    +7 (938) Показать номер
    Посмотреть контакты

    Не нашли подходящего объявления?

    Оставьте заявку, и наши риэлторы подберут псн в районе Апрелевки

    (0)