1 496 460 Р 19 760 $ или 16 540

Информация об помещении

1
Этаж

Состояние и оснащение

Количество этажей
1
Развернуть
Агент
+7 (938) 656-74-88
Начать чат с агентом

Производственное помещение в Московская область, Апрелевка ...

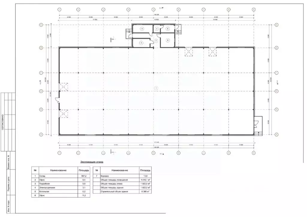
1099651-wi . Предлагаем в аренду современный теплый склад общей площадью 1 018 кв. м. в Апрелевке.Преимущества:Удобная транспортная доступность 28 км от МКАД по Киевскому шоссе.Близость к ЦКАД и Новой Москве.Локация: Апрелевка, удобный подъезд с Киевского шоссе.Развитая транспортная инфраструктура. Близость к метро Саларьево.1 этаж ОСЗ.Отапливаемое помещение.Центральные коммуникации: отопление, канализация.Бетонные полы класса В30 с защитным покрытием Протексил .Возможность маневра фур и парковка на 30 мест, подходит для грузового транспорта.Ворота 2 шт. на уровне 0.Режим работы 24/7.Технические характеристики:Общая площадь: 1 018 кв. м.Складская площадь: 967,2 кв. м.Офисная часть: 20,6 кв. м.Подсобные помещения: 12,3 кв. м.Высота потолков: 4.1 6.5 м.Нагрузка на пол: 1,5 т/кв. м.Высота ворот: 3 м.Электрическая мощность: 200 кВт (оплата отдельно по счетчику).Для получения дополнительной информации и организации просмотра, пожалуйста, свяжитесь с нами.

Читать полностью
    Позвонить Написать
    1 496 460 Р19 760 $ или 16 540
    Агент
    +7 (938) 656-74-88
    Начать чат с агентом
    Похожие предложения
    Производственное помещение в Московская область, Наро-Фоминский ... - Фото 1
    Производственное помещение в Московская область, Наро-Фоминский ... - Фото 2
    Уникальный номер помещения.Производственно-складской комплекс класса ВРасположение: 54 км. до МКАД.Добавьте объявление в избранное, чтобы не упустить выгодное предложение Рабочая высота потолка 10 мРовный бетонный пол с антипылевым покрытием. Допустимая...
    • 1/1 эт.
    1 437 022 Р
    Агент
    +7 (980) Показать номер
    Посмотреть контакты
    Производственное помещение в Московская область, Красногорск ... - Фото 1
    Производственное помещение в Московская область, Красногорск ... - Фото 2
    919190-wi . Холодный склад с возможностью подключения отопления в черте Красногорска. Центр крупной промышленной зоны. Выезд на Пенягинское и Волоколамское шоссе. 10 минут пешком от ст. Пенягино . Развитая инфраструктура района. 2 здания ангарного типа....
    • 1/1 эт.
    1 499 400 Р
    Агент
    +7 (938) Показать номер
    Посмотреть контакты
    Производственное помещение в Московская область, Подольск Климовск ... - Фото 1
    Производственное помещение в Московская область, Подольск Климовск ... - Фото 2
    880523-wi . Производственно-складское здание возле г. Климовск, д. Сергеевка (г.о. Подольск). Так как корректный адрес отсутствует на Яндекс.Картах, выбран ближайший. Выезд на Симферопольскую ул. в 200м. Развитая транспортная логистика: 12 мин. до ЦКАД,...
    • 1/1 эт.
    1 470 000 Р
    Агент
    +7 (938) Показать номер
    Посмотреть контакты
    Производственное помещение в Московская область, Домодедово городской ... - Фото 1
    Производственное помещение в Московская область, Домодедово городской ... - Фото 2
    1075575-wi . Предлагается новое складское здание общей площадью 1 456 кв. м в д. Кучино, г.о. Домодедово.Преимущества:15 км от МКАД.Центр крупной промышленной зоны.Выезд на Домодедовское шоссе.Открытая планировка.Отопление газгольдером.Септик, скважина.Пожарная...
    • 1/1 эт.
    1 456 000 Р
    Агент
    +7 (938) Показать номер
    Посмотреть контакты
    Производственное помещение в Московская область, Ленинский городской ... - Фото 1
    Производственное помещение в Московская область, Ленинский городской ... - Фото 2
    1068891-wi . Предлагается складское здание общей площадью 1 490 кв. м в п. Мещерино.Преимущества:Объект расположен рядом с трассой а-105 (на а/п Домодедово).10 км от МКАД, удобная транспортная доступность, хорошая логистика, удобные подъездные пути.Земельный...
    • 1/1 эт.
    1 490 000 Р
    Агент
    +7 (938) Показать номер
    Посмотреть контакты

    Не нашли подходящего объявления?

    Оставьте заявку, и наши риэлторы подберут производственное помещение в районе Апрелевки

    (0)