Россия, Подмосковье, Наро-Фоминский район, Апрелевка, Наро-Фоминский городской округ
12 940 419 Р 163 100 $ или 139 200

Информация о квартире

63 м2
Площадь
23 м2
Жилая
3
Комнаты
2
Этаж
5
Этажность

Дополнительная информация

Тип дома
кирпичный
Развернуть
Агент
+7 (923) 070-80-49
Начать чат с агентом

3-к кв. Московская область, Апрелевка Наро-Фоминский городской округ, ...

Прямая продажа от застройщика Загородный жилой комплекс класса Комфорт Плюс.Продаётся 3-к квартира номер 11 общей площадью 63.3 кв.м на 2-м этаже 5 этажного дома. Без отделки.Особенности:- Квартира доступна к покупке в Trade-In.- Распашная планировка - отличное сочетание удобства и свободы.- Увеличенное число окон- Евроформат - просторное и удобное жилье с отличной планировкой.- Гибкая планировка - создайте пространство по своему вкусу.- Можно оборудовать рабочее место - комфорт для работы и учёбы.- Просторная мягкая зона - комфорт и уют для отдыха всей семьи.- Проходная кухня-гостиная - идеальное пространство для общения и готовки.- Вид из окна: двор- Вид из окна на соседний корпусКвартира без отделки. Чистый холст для воплощения интерьера вашей мечты.Расположение комплекса: Апрелевка Клаб - это жилой комплекс всего в 30 км от Москвы по Киевскому шоссе, где городские удобства гармонично сочетаются с природой. Здесь начинается новая ступень жизни: современная малоэтажная застройка не нарушает живописные виды, а закрытая территория дарит чувство безопасности.Особенности проекта:- Улучшенная отделка МОПов- Социальная инфраструктура в шаговой доступности: муниципальные детский сад и школа, поликлиника- Не просто школа: школа МГИМО- Школа искусств МАРХИ- Всесезонное уникальное благоустройство: от города к природе через призму искусства- Комфортное пространство (спорт, досуг с детьми, работа в удаленном формате с прекрасными видами, место для творчества, тихие места для уединения и размышления)- Отличная транспортная доступностьТранспортная доступность:- Метро Филатов Луг и Рассказовка - 25 км- МЦД Апрелевка - 5 км - МКАД — 30 км- Садовое кольцо — 45 км- Метро в Троицке (открытие в 2030) — 22 км- Ближайшая остановка общ. транспорта Фрунзевец - 550 м- Ст. м. Саларьево - 30 мин. на автобусеВнутренняя инфраструктура:Здесь есть хобби на любой вкус, возраст и сезон. Велосипедные, беговые и прогулочные маршруты, уличный workout, летний амфитеатр, спортивная площадка, центральная площадь с сухим фонтаном и игровыми зонами. Крытые развлечения: зона коворкинга, детская комната, кафе.В жилом комплексе будет современная школа на 830 мест и детский сад на 400 мест нового формата: с просторными классами и современным оснащением согласно высоким стандартам. Также на территории будет размещена школа искусств.Дворы без машин, игровые зоны и маршруты для прогулок с навигацией минимизируют риски и создают ощущение защищенности.Вдоль южной границы комплекса протекает река Десна, создавая зону отдыха в природном окружении. Цены указаны с учетом скидки.

Читать полностью
    Позвонить Написать
    12 940 419 Р163 100 $ или 139 200
    Агент
    +7 (923) 070-80-49
    Начать чат с агентом
    Похожие предложения
    2-к кв. Московская область, Апрелевка Наро-Фоминский городской округ,  ... - Фото 1
    2-к кв. Московская область, Апрелевка Наро-Фоминский городской округ,  ... - Фото 2
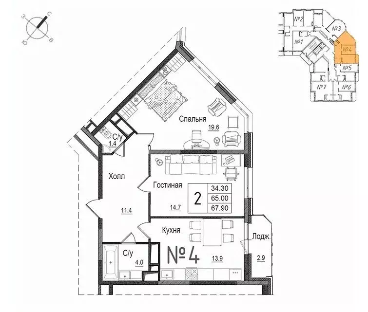
    2-комнатная квартира, общая площадь 68м², жилая 26м²

    Прямая продажа от застройщика Загородный жилой комплекс класса Комфорт Плюс.Продаётся 2-к квартира номер 82 общей площадью 68.8 кв.м на 4-м этаже 5 этажного дома. Без отделки.Особенности:- Квартира доступна к покупке в Trade-In.- Угловая планировка -...
    • 68 м²
    • 2-ком
    • 4/5 эт.
    • кирпичный
    12 544 992 Р
    Агент
    +7 (923) Показать номер
    Посмотреть контакты
    2-к кв. Московская область, Наро-Фоминск ул. Новикова, 20/1 (68.8 м) - Фото 1
    2-к кв. Московская область, Наро-Фоминск ул. Новикова, 20/1 (68.8 м) - Фото 2
    2-комнатная квартира, общая площадь 68м²

    Продаётся 2-комнатная квартира в сданном доме (Новикова, 20/1 (Секция 3)), срок сдачи: III-кв. 2024, общей площадью 68.8 кв.м., на 17 этаже. Жилой комплекс Школьный - современный комплекс комфорт-класса в одном из самых комфортных районов города Наро-Фоминска....
    • 68 м²
    • 2-ком
    • 17/17 эт.
    12 500 000 Р
    Агент
    +7 (923) Показать номер
    Посмотреть контакты
    2-к кв. Московская область, Наро-Фоминск ул. Новикова, 20/1 (73.2 м) - Фото 1
    2-к кв. Московская область, Наро-Фоминск ул. Новикова, 20/1 (73.2 м) - Фото 2
    2-комнатная квартира, общая площадь 73м²

    Продаётся 2-комнатная квартира в сданном доме (Новикова, 20/1 (Секция 3)), срок сдачи: III-кв. 2024, общей площадью 73.2 кв.м., на 5 этаже. Жилой комплекс Школьный - современный комплекс комфорт-класса в одном из самых комфортных районов города Наро-Фоминска....
    • 73 м²
    • 2-ком
    • 5/17 эт.
    12 950 000 Р
    Агент
    +7 (923) Показать номер
    Посмотреть контакты
    2-к кв. Московская область, Наро-Фоминск ул. Новикова, 20/1 (73.1 м) - Фото 1
    2-к кв. Московская область, Наро-Фоминск ул. Новикова, 20/1 (73.1 м) - Фото 2
    2-комнатная квартира, общая площадь 73м²

    Продаётся 2-комнатная квартира в сданном доме (Новикова, 20/1 (Секция 3)), срок сдачи: III-кв. 2024, общей площадью 73.1 кв.м., на 8 этаже. Жилой комплекс Школьный - современный комплекс комфорт-класса в одном из самых комфортных районов города Наро-Фоминска....
    • 73 м²
    • 2-ком
    • 8/17 эт.
    13 000 000 Р
    Агент
    +7 (923) Показать номер
    Посмотреть контакты
    2-к кв. Московская область, Наро-Фоминск ул. Новикова, 20/1 (73.1 м) - Фото 1
    2-к кв. Московская область, Наро-Фоминск ул. Новикова, 20/1 (73.1 м) - Фото 2
    2-комнатная квартира, общая площадь 73м²

    Продаётся 2-комнатная квартира в сданном доме (Новикова, 20/1 (Секция 3)), срок сдачи: III-кв. 2024, общей площадью 73.1 кв.м., на 13 этаже. Жилой комплекс Школьный - современный комплекс комфорт-класса в одном из самых комфортных районов города Наро-Фоминска....
    • 73 м²
    • 2-ком
    • 13/17 эт.
    13 000 000 Р
    Агент
    +7 (923) Показать номер
    Посмотреть контакты

    Не нашли подходящего объявления?

    Оставьте заявку, и наши риэлторы подберут квартиру в новостройке в районе Апрелевки

    (0)