Россия, Подмосковье, Наро-Фоминский район, Апрелевка, Наро-Фоминский городской округ
13 003 719 Р 159 800 $ или 138 100

Информация о квартире

63 м2
Площадь
23 м2
Жилая
2
Комнаты
4
Этаж
5
Этажность

Дополнительная информация

Тип дома
кирпичный
Развернуть
Агент
+7 (923) 070-80-49
Начать чат с агентом

2-к кв. Московская область, Апрелевка Наро-Фоминский городской округ, ...

Прямая продажа от застройщика Загородный жилой комплекс класса Комфорт Плюс.Продаётся 2-к квартира номер 183 общей площадью 63.3 кв.м на 4-м этаже 5 этажного дома. Без отделки.Особенности:- Квартира доступна к покупке в Trade-In.- Распашная планировка - отличное сочетание удобства и свободы.Квартира без отделки. Чистый холст для воплощения интерьера вашей мечты.Расположение комплекса: Апрелевка Клаб - это жилой комплекс всего в 30 км от Москвы по Киевскому шоссе, где городские удобства гармонично сочетаются с природой. Здесь начинается новая ступень жизни: современная малоэтажная застройка не нарушает живописные виды, а закрытая территория дарит чувство безопасности.Особенности проекта:- Улучшенная отделка МОПов- Социальная инфраструктура в шаговой доступности: муниципальные детский сад и школа, поликлиника- Не просто школа: школа МГИМО- Школа искусств МАРХИ- Всесезонное уникальное благоустройство: от города к природе через призму искусства- Комфортное пространство (спорт, досуг с детьми, работа в удаленном формате с прекрасными видами, место для творчества, тихие места для уединения и размышления)- Отличная транспортная доступностьТранспортная доступность:- Метро Филатов Луг и Рассказовка - 25 км- МЦД Апрелевка - 5 км - МКАД — 30 км- Садовое кольцо — 45 км- Метро в Троицке (открытие в 2030) — 22 км- Ближайшая остановка общ. транспорта Фрунзевец - 550 м- Ст. м. Саларьево - 30 мин. на автобусеВнутренняя инфраструктура:Здесь есть хобби на любой вкус, возраст и сезон. Велосипедные, беговые и прогулочные маршруты, уличный workout, летний амфитеатр, спортивная площадка, центральная площадь с сухим фонтаном и игровыми зонами. Крытые развлечения: зона коворкинга, детская комната, кафе.В жилом комплексе будет современная школа на 830 мест и детский сад на 400 мест нового формата: с просторными классами и современным оснащением согласно высоким стандартам. Также на территории будет размещена школа искусств.Дворы без машин, игровые зоны и маршруты для прогулок с навигацией минимизируют риски и создают ощущение защищенности.Вдоль южной границы комплекса протекает река Десна, создавая зону отдыха в природном окружении. Цены указаны с учетом скидки.

Читать полностью
    Позвонить Написать
    13 003 719 Р159 800 $ или 138 100
    Агент
    +7 (923) 070-80-49
    Начать чат с агентом
    Похожие предложения в Апрелевке
    2-комнатная квартира: Апрелевка, жилой комплекс Времена Года, к11 ... - Фото 1
    2-комнатная квартира: Апрелевка, жилой комплекс Времена Года, к11 ... - Фото 2
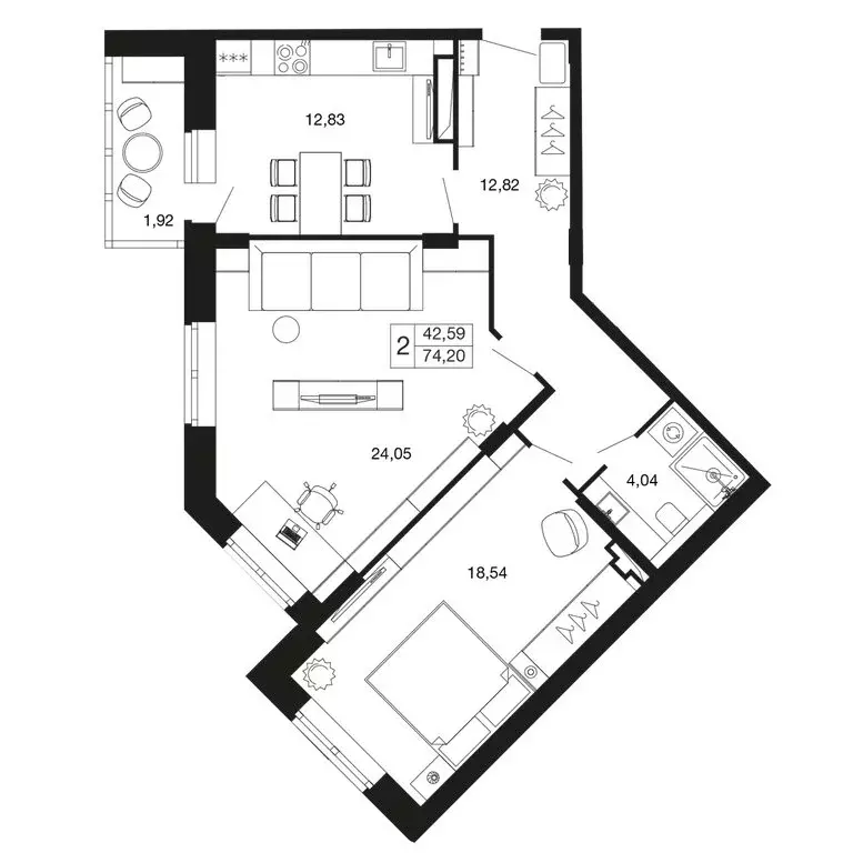
    2-комнатная квартира, общая площадь 74м², жилая 42м², кухня 12м²

    2-комн. квартира в ЖК комфорт-класса Времена года на 6 этаже в 9 этажном корпусе 11. Общая площадь: 74.2 кв.м., жилая: 42.59 кв.м. Высота потолков 2.76 м. «Времена года – современный жилой комплекс комфорт-класса, расположенный в тихом и зеленом подмосковном...
    • 74 м²
    • 2-ком
    • 6/9 эт.
    12 006 721 Р
    Агент
    +7 (495) Показать номер
    Посмотреть контакты
    3-комнатная квартира: Апрелевка, жилой комплекс Времена Года, к12 ... - Фото 1
    3-комнатная квартира: Апрелевка, жилой комплекс Времена Года, к12 ... - Фото 2
    3-комнатная квартира, общая площадь 82м², жилая 47м², кухня 16м²

    3-комн. квартира в ЖК комфорт-класса Времена года на 8 этаже в 9 этажном корпусе 12. Общая площадь: 82.18 кв.м., жилая: 47.94 кв.м. Высота потолков 2.76 м. «Времена года – современный жилой комплекс комфорт-класса, расположенный в тихом и зеленом подмосковном...
    • 82 м²
    • 3-ком
    • 8/9 эт.
    13 444 667 Р
    Агент
    +7 (495) Показать номер
    Посмотреть контакты
    2-к кв. Московская область, Апрелевка Наро-Фоминский городской округ,  ... - Фото 1
    2-к кв. Московская область, Апрелевка Наро-Фоминский городской округ,  ... - Фото 2
    2-комнатная квартира, общая площадь 58м², жилая 29м², кухня 11м²

    Прямая продажа от застройщика Загородный жилой комплекс класса Комфорт Плюс.Продаётся 2-к квартира номер 51 общей площадью 58.4 кв.м на 4-м этаже 5 этажного дома. Без отделки.Особенности:- Квартира доступна к покупке в Trade-In.- Распашная планировка...
    • 58 м²
    • 2-ком
    • 4/5 эт.
    • кирпичный
    12 547 240 Р
    Агент
    +7 (923) Показать номер
    Посмотреть контакты
    3-к кв. Московская область, Апрелевка Наро-Фоминский городской округ,  ... - Фото 1
    3-к кв. Московская область, Апрелевка Наро-Фоминский городской округ,  ... - Фото 2
    3-комнатная квартира, общая площадь 66м², жилая 22м²

    Прямая продажа от застройщика Загородный жилой комплекс класса Комфорт Плюс.Продаётся 3-к квартира номер 90 общей площадью 66.2 кв.м на 2-м этаже 5 этажного дома. Без отделки.Особенности:- Квартира доступна к покупке в Trade-In.- Распашная планировка...
    • 66 м²
    • 3-ком
    • 2/5 эт.
    • кирпичный
    13 412 120 Р
    Агент
    +7 (923) Показать номер
    Посмотреть контакты
    2-к кв. Московская область, Апрелевка Наро-Фоминский городской округ,  ... - Фото 1
    2-к кв. Московская область, Апрелевка Наро-Фоминский городской округ,  ... - Фото 2
    2-комнатная квартира, общая площадь 63м², жилая 23м²

    Прямая продажа от застройщика Загородный жилой комплекс класса Комфорт Плюс.Продаётся 2-к квартира номер 23 общей площадью 63.3 кв.м на 4-м этаже 5 этажного дома. Без отделки.Особенности:- Квартира доступна к покупке в Trade-In.- Распашная планировка...
    • 63 м²
    • 2-ком
    • 4/5 эт.
    • кирпичный
    12 972 069 Р
    Агент
    +7 (923) Показать номер
    Посмотреть контакты

    Не нашли подходящего объявления?

    Оставьте заявку, и наши риэлторы подберут квартиру в новостройке в районе Апрелевки

    (0)