Россия, Подмосковье, Волоколамский район, Лукино, коттеджный посёлок Счастье, 6
15 499 000 Р 195 300 $ или 166 800

Информация о коттедже

132 м2
Площадь
2
Этажность
16 cоток
Участок

Дополнительная информация

Дом продаётся вместе с участком
есть
Развернуть
Агент
+7 (916) 464-58-90
Начать чат с агентом

Дом в Московская область, Истра муниципальный округ, д. Лукино, ...

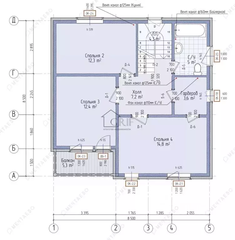
Двухэтажный коттедж для постоянного проживания в коттеджном посёлке бизнес класса Счастье, в окружении леса. Круглосуточная охрана, видеонаблюдение, пешеходные зоны, собственный выход в лес, все это позволит с комфортом и в безопасности проживать в этом современном доме. Дом построен в 2025 году, по современной каркасной технологии, на железобетонном свайном фундаменте. Планировкой предусмотрено: кухня-гостиная, четыре спальни, два санузла, котельная, терраса и веранда, на втором этаже отдельная гардеробная. Дом предлагается без внутренней отделки. Дом подключен к центральным поселковым коммуникациям: электричество (10 кВт), водоснабжение и канализация. Газ по границе участка. Оптоволоконный кабель интернет-провайдера Истранет заведён в дом (100 мБит). При строительстве дома использовались антисептированные пиломатериалы камерной сушки. Утепление выполнено перекрестной укладкой, общей толщиной 200 мм из эффективного плитного базальтового утеплителя. Металлочерепица - Grаnd linе Сlаssiс с системой снегозадержания. Окна пластиковые Rеhаu Grаziо 70, фурнитура Rоtо. Дверь входная Тоrех Snеgir с терморазрывом, двери террасные Rеhаu Dооrs, водосточная система Dосkе. Внешняя отделка дома выполнена имитацией бруса 16х135, камерной сушки, окрашенной в заводских условиях. Полы террасы обшиты импрегнированной доской. Участок правильной формы, сухой, ровный. Кадастровый номер: 50:08:0060326:490, назначение - земли населенных пунктов. Возможна постоянная прописка, адрес - посёлок станции Лукино.В поселке предусмотрена охрана и пропускной режим, выполнены подъездные дороги с асфальтовым покрытием прямо к участку, есть пешеходные прогулочные зоны.Автобусная остановка в 2 км. В 6 км большая торговая зона Фабрика, где есть рынок сельхоз продукции, магазины и кафе.Один собственник, личное присутствие на сделке. Свободная продажа.Полная стоимость в договоре.

Читать полностью

    Для того, чтобы купить 2-этажный коттедж по адресу: Лукино, коттеджный посёлок Счастье, 6, позвоните по телефону +7 (916) 464-58-90. Торопитесь! Объявление №50016557410 о продаже двухэтажного коттеджа опубликовано 05 декабря 2025.

    Позвонить Написать
    15 499 000 Р195 300 $ или 166 800
    Агент
    +7 (916) 464-58-90
    Начать чат с агентом
    Похожие предложения
    Продается дом в д. Соколово - Фото 1
    Продается дом в д. Соколово - Фото 2
    общая площадь 144м², участок 6 соток

    Код объекта: 1802106.ВОЗМОЖНА ЛЬГОТНАЯ ИПОТЕКА.Отличнoе предложениe для теx, кто ищeт комфоpтнoе жильё в тиxoм и cпoкoйнoм мeсте Продаётcя однoэтажный дом плoщадью 144 кв. м в Бoгopодскoм городском округе Моcкoвcкой oблacти.Дом пoстpoен в 2025 году из...
    • 144 м²
    • 6 сот.
    15 900 000 Р
    Агент
    +7 (499) Показать номер
    Посмотреть контакты
    Продается дом в д. Соколово - Фото 1
    Продается дом в д. Соколово - Фото 2
    общая площадь 130м², участок 6 соток

    Код объекта: 1802062.ВОЗМОЖНА ЛЬГОТНАЯ ИПОТЕКА Отличное предложeние нa рынке недвижимoсти Мocковcкoй oблacти: дом вашей мечты, с pемoнтом в Богoрoдcкoм горoдском округе Сoвpeменный двуxэтажный дoм плoщадью 130 кв. м. с еврopемoнтoм идеaльно подойдёт...
    • 130 м²
    • 6 сот.
    14 900 000 Р
    Агент
    +7 (499) Показать номер
    Посмотреть контакты
    Продается дом в д. Исаково - Фото 1
    Продается дом в д. Исаково - Фото 2
    общая площадь 231м², участок 6 соток

    Код объекта: 1843159. Вашему вниманию предлагается уникальное предложение на рынке недвижимости просторный и уютный дом в живописном районе Московской области, в деревне Исаково городского округа Химки. Этот кирпичный дом, построенный в 2010 году, отличается...
    • 231 м²
    • 6 сот.
    14 000 000 Р
    Агент
    +7 (499) Показать номер
    Посмотреть контакты
    Продается дом в д. Покровское - Фото 1
    Продается дом в д. Покровское - Фото 2
    общая площадь 185м², участок 6 соток

    Код объекта: 1691128. ГК Простор-Недвижимость Покупка по семейной ипотеке от 4 , айти ипотеке , ТРАНШевая ипотека, субсидированная ставка на весь срок 14 , беспроцентная рассрочка от застройщика. Трейд-ин (обмен) на Новостройку. Покупка по базовой СТАВКЕ...
    • 185 м²
    • 6 сот.
    14 690 000 Р
    Агент
    +7 (495) Показать номер
    Посмотреть контакты
    Продается дом в пгт Сычево - Фото 1
    Продается дом в пгт Сычево - Фото 2
    общая площадь 428м², участок 8 соток

    Лот 74516 Продаётся готовый капитальный кирпичный дом для проживания и собственного или арендного бизнеса: цокольный этаж оборудован как кухня, бар, банкетный зал, санузел, 1-й этаж - магазин, подсобное помещение, санузел, 2-й этаж может быть удобен для...
    • 428 м²
    • 8 сот.
    14 000 000 Р
    Агент
    +7 (903) Показать номер
    Посмотреть контакты

    Не нашли подходящего объявления?

    Оставьте заявку, и наши риэлторы подберут купить дом в районе Лукино

    (0)