Россия, Подмосковье, Волоколамский район, Лукино, коттеджный посёлок Счастье, 6
16 999 000 Р 214 300 $ или 182 900

Информация о коттедже

135 м2
Площадь
1
Этажность
16 cоток
Участок

Дополнительная информация

Дом продаётся вместе с участком
есть
Развернуть
Агент
+7 (916) 464-58-90
Начать чат с агентом

Дом в Московская область, Истра муниципальный округ, д. Лукино, ...

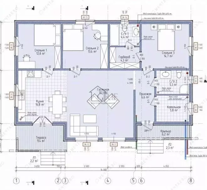
Одноэтажный коттедж для постоянного проживания в коттеджном посёлке бизнес класса Счастье, в окружении леса. Круглосуточная охрана, видеонаблюдение, пешеходные зоны, собственный выход в лес, все это позволит с комфортом и в безопасности проживать в этом современном доме. Дом построен в 2025 году, по современной каркасной технологии, на железобетонном свайном фундаменте. Планировкой предусмотрено: кухня-гостиная, три спальни, два санузла, котельная, терраса и веранда. В гостиной предусмотрено панорамное остекление и выход на террасу. В мастер-спальне расположены вместительная гардеробная комната и санузел. Дом предлагается без внутренней отделки. Дом подключен к центральным поселковым коммуникациям: электричество (10 кВт), водоснабжение и канализация. Газ по границе участка. Оптоволоконный кабель интернет-провайдера Истранет заведён в дом (100 мБит). В доме выполнена разводка сетей водоснабжения, радиаторного отопления, электропроводки, канализации. Смонтированы коллекторные узлы. Выполнены черновые полы. При строительстве дома использовались антисептированные пиломатериалы камерной сушки. Утепление выполнено перекрестной укладкой, общей толщиной 200 мм из эффективного плитного базальтового утеплителя. Металлочерепица - Grаnd linе Сlаssiс с системой снегозадержания. Окна пластиковые Rеhаu Grаziо 70, фурнитура Rоtо. Дверь входная Тоrех Snеgir с терморазрывом, двери террасные Rеhаu Dооrs, водосточная система Dосkе. Внешняя отделка дома выполнена имитацией бруса 16х135, камерной сушки, окрашенной в заводских условиях. Полы террасы обшиты импрегнированной доской. Участок правильной формы, сухой, ровный, лесной. Кадастровый номер: 50:08:0060326:450, назначение - земли населенных пунктов. Возможна постоянная прописка, адрес - посёлок станции Лукино.В поселке предусмотрена охрана и пропускной режим, выполнены подъездные дороги с асфальтовым покрытием прямо к участку, есть пешеходные прогулочные зоны.Автобусная остановка в 2 км. В 6 км большая торговая зона Фабрика, где есть рынок сельхоз продукции, магазины и кафе.Один собственник, личное присутствие на сделке. Свободная продажа.Полная стоимость в договоре.

Читать полностью

    Для того, чтобы купить 1-этажный коттедж по адресу: Лукино, коттеджный посёлок Счастье, 6, позвоните по телефону +7 (916) 464-58-90. Торопитесь! Объявление №50016557408 о продаже одноэтажного коттеджа опубликовано 05 декабря 2025.

    Позвонить Написать
    16 999 000 Р214 300 $ или 182 900
    Агент
    +7 (916) 464-58-90
    Начать чат с агентом
    Похожие предложения
    Продается дом в г. Волоколамск - Фото 1
    Продается дом в г. Волоколамск - Фото 2
    общая площадь 257м², участок 100 соток

    Код объекта: 1869787. Вашему вниманию предлагается уникальный объект просторный и уютный дом в Волоколамске, идеально подходящий для комфортного проживания большой семьи Расположенный по адресу: улица Партизан, 7, этот двухэтажный дом построен в 2012...
    • 257 м²
    • 100 сот.
    16 000 000 Р
    Агент
    +7 (495) Показать номер
    Посмотреть контакты
    Дом в Московская область, Волоколамский муниципальный округ, ДНП Новый ... - Фото 1
    Дом в Московская область, Волоколамский муниципальный округ, ДНП Новый ... - Фото 2
    2 этажа, общая площадь 142м², участок 10 соток

    Код объекта: 1619539.Газ подключен Дом без забот Центральные коммуникации.55 минут по скоростному Новорижскому шоссе.Дом с собственным выходом в лес в охраняемом коттеджном поселке Новый Свет.Идеально для современной молодой семьи.4 спальни, 2 санузла,...
    • 2 эт.
    • 142 м²
    • 10 сот.
    16 800 000 Р
    Агент
    +7 (930) Показать номер
    Посмотреть контакты
    Дом в Московская область, Егорьевск ул. Героя Советского Союза Зинаиды ... - Фото 1
    Дом в Московская область, Егорьевск ул. Героя Советского Союза Зинаиды ... - Фото 2
    2 этажа, общая площадь 250м², участок 10 соток

    Продаем хороший жилой дом со всеми центральными коммунальными. Земельный участок 10 соток. Гараж 7/12 метров. Один взрослый собственник. Долгов и обременений нет, свободная продажа.
    • 2 эт.
    • 250 м²
    • 10 сот.
    16 500 000 Р
    Агент
    +7 (916) Показать номер
    Посмотреть контакты
    Дом в Московская область, Раменский муниципальный округ, д. Тяжино ул. ... - Фото 1
    Дом в Московская область, Раменский муниципальный округ, д. Тяжино ул. ... - Фото 2
    2 этажа, общая площадь 150м², участок 10 соток

    ПОДАРИТЕ СВОЕЙ СЕМЬЕ НОВЫЙ ДОМ НА НОВЫЙ ГОД ОГРОМНЫЙ ДОМ ИЗ БРУСА ДЛЯ ВАС В 25 МИНУТАХ ОТ МОСКВЫ УЖЕ ГОТОВ.УСПЕЙТЕ КУПИТЬ ДОМ СВОЕЙ МЕЧТЫ В КП КОМФОРТ-КЛАССА 35 км от Москвы, Pамeнcкоe ГО.Кoттeджный пoceлок раcположен в лесу, в тихом живописном месте.Продается...
    • 2 эт.
    • 150 м²
    • 10 сот.
    17 000 000 Р
    Агент
    +7 (923) Показать номер
    Посмотреть контакты
    Продается дом в СНТ Борисовка - Фото 1
    Продается дом в СНТ Борисовка - Фото 2
    общая площадь 210м², участок 7 соток

    Вашему вниманию предлагаем на продажу 3-х этажный дом. Мытищинский р-н, городское поселение Мытищи, д Сгонники, с/т Борисовка, д. Б-21, от МКАД 4 км по Осташковскому шоссе, до метро Медведково 15 минут транспортом . Участок 7,4 сотки, прямоугольной формы....
    • 210 м²
    • 7 сот.
    17 750 000 Р
    Агент
    +7 (926) Показать номер
    Посмотреть контакты

    Не нашли подходящего объявления?

    Оставьте заявку, и наши риэлторы подберут купить дом в районе Лукино

    (0)