Реализация объекта недвижимости приостановлена

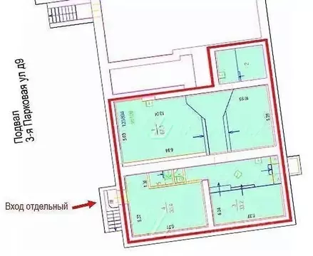
Информация о помещении и здании

3
Этаж
3
Этажность
Развернуть

Офис в Москва Ступинский проезд, 1АС7 (137 м)

Сдается в аренду офис 137.4 кв.м.Подписание договора аренды напрямую с владельцем помещения. Работаем без комиссии, процентов и надбавок.В арендную ставку включено: - НДС.В арендную ставку не входит: коммунальные услуги, электроэнергия, эксплуат.расходы, уборка офиса, уборка общих мест, интернет.• условия договора: 11 мес. предоплата за первый и последний месяц;• налогообложение: НДС;• вход в здание: для арендаторов свободный, для клиентов свободный;• интернет провайдеры: ВымпелКом;• парковка: на территории БЦ;• здание работает: круглосуточно;Показы в рабочее время.Получите подробную информацию об офисе. Отправим ее на почту или по Whatsapp.Для организации просмотра и для получения консультации по условиям аренды звоните.Для вас наши услуги абсолютно бесплатны — их оплачивают бизнес-центры.Описание бизнес-центра:В пешей доступности станция Красный Строитель . Ступинский 1А представляет собой здание с высокими потолками от 2,7 до 3,7 метров. Коммунальные услуги оплачиваются по счётчикам.

Читать полностью

    Реализация объекта недвижимости приостановлена

    Не нашли подходящего объявления?

    Оставьте заявку, и наши риэлторы подберут офис в районе Москвы

    (0)