Россия, Москва, жилой комплекс Рашен Дизайн Дистрикт, к3
29 205 556 Р 361 100 $ или 312 700

Информация об помещении

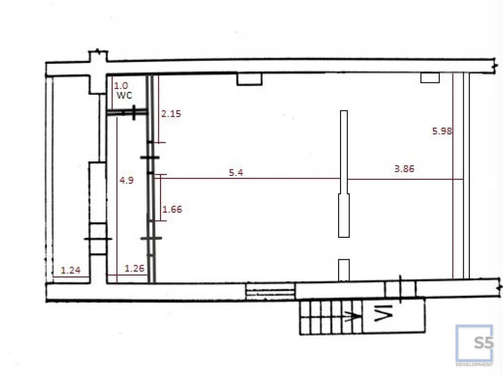
75.1 м2
Площадь
1
Этаж

Состояние и оснащение

Количество этажей
13
Развернуть
S5Development
S5Development
+7 (903) 589-03-59

Продажа торгового помещения, м. Теплый стан, жилой комплекс Рашен ...

Лот 142114.

ЖК Russian Design District расположен в Новой Москве в районе Ватутинки на берегу реки Десны рядом с большой лесопарковой территорией площадью 14 гектаров со спортивной и детской инфраструктурой, с футбольными, волейбольными, хоккейными площадками, памп-треками, беговыми дорожками и пространством для отдыха и прогулок.
В составе комплекса — девять жилых башен. ЖК бизнес класса.
Доступ к инфраструктуре и набережной есть у всех, а не только жителей комплекса.
Территория ЖК является закрытой, охраняемой и организованной по принципу «двор без машин».

В составе новой радиальной линии метро «Троицкая» запланировано открытие станции «Ватутинки» в 2025 году.
Удалённость ЖК от МКАД — 16 км. Преодолеть это расстояние на автомобиле можно примерно за 12 минут без учета пробок. В 1 км от ЖК — выезд на Калужское шоссе. Остановки общественного транспорта находятся в 5 минутах ходьбы от комплекса. До станции метро «Теплый Стан» можно доехать на автомобиле за 16 минут, на автобусе — за 28 минут.

Технические характеристики:
Общая площадь 75,1 м, 1-ый этаж. Отдельный вход с улицы. Витринное остекление; Открытая (свободная) планировка. Все городские инженерные коммуникации. Высокие потолки. Состояние помещения : без отделки.

Коммерческие условия:
Стоимость объекта - с НДС
Стоимость за 1 кв. м. -

Читать полностью

    Для того, чтобы купить торговое помещение площадью 75 кв. метров по адресу: м. Теплый стан, жилой комплекс Рашен Дизайн Дистрикт, к3, напишите автору объявления. Торопитесь! Объявление №800824078 о продаже торгового помещения площадью 75 кв. метров опубликовано Вчера.

    Позвонить Написать
    29 205 556 Р361 100 $ или 312 700
    S5Development
    S5Development
    +7 (903) 589-03-59
    Похожие предложения
    Продажа торгового помещения, м. Теплый стан, ул. Академика Виноградова - Фото 1
    Продажа торгового помещения, м. Теплый стан, ул. Академика Виноградова - Фото 2
    Продажа торгового помещения, м. Теплый стан, ул. Академика Виноградова - Фото 3
    Продажа торгового помещения, м. Теплый стан, ул. Академика Виноградова - Фото 4
    Продажа торгового помещения, м. Теплый стан, ул. Академика Виноградова - Фото 5
    Продажа торгового помещения, м. Теплый стан, ул. Академика Виноградова - Фото 6
    Продажа торгового помещения, м. Теплый стан, ул. Академика Виноградова - Фото 7
    общая площадь 68м², реализуемая площадь 68м²

    Лот 17250. Предлагается в продажу торговое помещение с арендаторами, общей площадью: 68 м2, в ЮЗАО г. Москве по адресу: Академика Виноградова, 4к1. Густонаселенный район. Ближайшие станции метро: м. "Теплый Стан"- 10 минут на транспорте, м. "Тропарёво" Технические...
    • 68 м²
    • 1/14 эт.
    29 000 000 Р
    Агентство
    S5Development
    +7 (903) Показать номер
    Посмотреть контакты
    Продажа торгового помещения, м. Рязанский проспект, ул. ... - Фото 1
    Продажа торгового помещения, м. Рязанский проспект, ул. ... - Фото 2
    Продажа торгового помещения, м. Рязанский проспект, ул. ... - Фото 3
    Продажа торгового помещения, м. Рязанский проспект, ул. ... - Фото 4
    Продажа торгового помещения, м. Рязанский проспект, ул. ... - Фото 5
    общая площадь 24м², реализуемая площадь 24м²

    Продажа торгового помещения на выходе из метро Рязанский проспект, менее 1 минуты пешком. Помещение общей площадью 24 кв.м (блок 11 на плане) расположено на 1-м этаже жилого 12-ти этажного дома. Интенсивный пешеходный поток. Развитая инфраструктура, крупный...
    • 24 м²
    • 1/12 эт.
    30 000 000 Р
    Агент
    +7 (903) Показать номер
    Посмотреть контакты
    Продажа торгового помещения, ул. Краснодонская - Фото 1
    Продажа торгового помещения, ул. Краснодонская - Фото 2
    Продажа торгового помещения, ул. Краснодонская - Фото 3
    Продажа торгового помещения, ул. Краснодонская - Фото 4
    Продажа торгового помещения, ул. Краснодонская - Фото 5
    Продажа торгового помещения, ул. Краснодонская - Фото 6
    Продажа торгового помещения, ул. Краснодонская - Фото 7
    Продажа торгового помещения, ул. Краснодонская - Фото 8
    общая площадь 99.8м², реализуемая площадь 99.8м²

    . Нежилое помещение, 99,8 м | ЮВАО, Краснодонская ул., д. 50, этаж 1, пом. 33Н | Метро: Братиславская (пешком 12 мин., транспортом 12 мин., расстояние 0.77 км) Характеристики: Функциональное назначение: Свободное Тип входа: Отдельный
    • 99.8 м²
    • 1/10 эт.
    29 533 000 Р
    PRO
    +7 (922) Показать номер
    Посмотреть контакты
    Продажа торгового помещения, ул. Родниковая - Фото 1
    Продажа торгового помещения, ул. Родниковая - Фото 2
    Продажа торгового помещения, ул. Родниковая - Фото 3
    Продажа торгового помещения, ул. Родниковая - Фото 4
    Продажа торгового помещения, ул. Родниковая - Фото 5
    Продажа торгового помещения, ул. Родниковая - Фото 6
    Продажа торгового помещения, ул. Родниковая - Фото 7
    Продажа торгового помещения, ул. Родниковая - Фото 8
    общая площадь 137.7м², реализуемая площадь 137.7м²

    . Нежилое помещение, 137,7 м | ЗАО, р-н Солнцево, Родниковая ул., д. 5А, этаж 1, пом. 154Н | Метро: Солнцево (пешком 18 мин., транспортом 18 мин., расстояние 1.3 км) Характеристики: Функциональное назначение: Свободное Тип входа: Отдельный
    • 137.7 м²
    • 1/15 эт.
    28 069 000 Р
    PRO
    +7 (922) Показать номер
    Посмотреть контакты
    Продажа торгового помещения, ул. Загорьевская - Фото 1
    Продажа торгового помещения, ул. Загорьевская - Фото 2
    Продажа торгового помещения, ул. Загорьевская - Фото 3
    Продажа торгового помещения, ул. Загорьевская - Фото 4
    Продажа торгового помещения, ул. Загорьевская - Фото 5
    Продажа торгового помещения, ул. Загорьевская - Фото 6
    Продажа торгового помещения, ул. Загорьевская - Фото 7
    Продажа торгового помещения, ул. Загорьевская - Фото 8
    общая площадь 144.2м², реализуемая площадь 144.2м²

    . Нежилое помещение, 144,2 м | ЮАО, Загорьевская ул., д. 8, этаж 1, пом. 1Н | Метро: Улица Академика Янгеля (пешком 74 мин., транспортом 47 мин., расстояние 4.94 км) Характеристики: Функциональное назначение: Свободное Тип входа: Отдельный
    • 144.2 м²
    • 1/19 эт.
    28 510 000 Р
    PRO
    +7 (922) Показать номер
    Посмотреть контакты

    Не нашли подходящего объявления?

    Оставьте заявку, и наши риэлторы подберут торговое помещение в районе Москвы

    (0)