25 000 000 Р 309 100 $ или 267 700

Информация об помещении

125 м2
Площадь
1
Этаж

Состояние и оснащение

Общая площадь складского комплекса, м2
125
Развернуть
S5Development
S5Development
+7 (903) 589-03-59

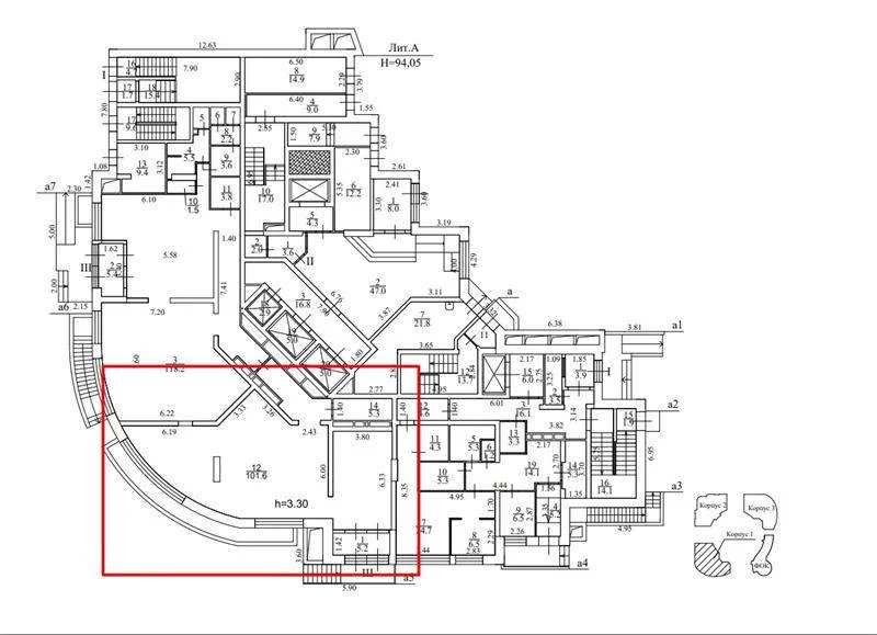
Продажа ПСН, м. Беляево, ул. Миклухо-Маклая

Лот 146743.

Продается нежилое помещение свободного назначения по адресу: Москва, ЮЗАО, ул. Миклухо-Маклая, дом.18/1, площадью 125 м2. Угловое помещение. Вторая линия. Объект расположен в окружении жилых и административных зданий. Метро "Беляево" 9 мин пешим шагом.

Торговое соседство: Салоны красоты, Мои документы, Спирит фитнес, Мариус, Книжный магазин Москва и др.

Технические параметры:
1 этаж 16 - ти этажного жилого дома, общей площадью 125 м2. Два входа: с первой линии, с торца и дополнительный со двора. Кабинетная планировка. Высота потолков 2,7 метров. Выделенная электрическая мощность по запросу. Городские коммуникации.

Коммерческие условия:
Стоимость объекта:.
Стоимость объекта за м2:.

Есть лицензия на Ломбард.

Читать полностью

    Для того, чтобы купить ПСН площадью 125 кв. метров по адресу: м. Беляево, ул. Миклухо-Маклая, дом.18/1, напишите автору объявления. Торопитесь! Объявление №901099819 о продаже ПСН площадью 125 кв. метров опубликовано Вчера.

    Позвонить Написать
    25 000 000 Р309 100 $ или 267 700
    S5Development
    S5Development
    +7 (903) 589-03-59
    Похожие предложения
    Помещение свободного назначения в Москва пос. Коммунарка, 7А (73 м) - Фото 1
    Помещение свободного назначения в Москва пос. Коммунарка, 7А (73 м) - Фото 2
    Продаётся помещение свободного назначения 73 м квВозможно использование под любые коммерческие цели: стоматологию, клинику , салон красоты, пункт выдачи, аптеку, магазин.Помещение имеет 4 комнаты, отдельный вход.На фасаде здания можно разместить рекламу....
    • 1/17 эт.
    25 000 000 Р
    Агент
    +7 (992) Показать номер
    Посмотреть контакты
    Прямая продажа от застройщика - Фото 1
    Прямая продажа от застройщика - Фото 2
    Прямая продажа от застройщика - Фото 3
    Прямая продажа от застройщика - Фото 4
    Прямая продажа от застройщика - Фото 5
    Прямая продажа от застройщика - Фото 6
    Прямая продажа от застройщика - Фото 7
    Прямая продажа от застройщика - Фото 8
    Прямая продажа от застройщика - Фото 9
    Прямая продажа от застройщика - Фото 10
    Прямая продажа от застройщика - Фото 11
    Прямая продажа от застройщика - Фото 12
    Прямая продажа от застройщика - Фото 13
    Прямая продажа от застройщика - Фото 14
    Прямая продажа от застройщика - Фото 15
    Прямая продажа от застройщика - Фото 16
    Прямая продажа от застройщика - Фото 17
    Прямая продажа от застройщика - Фото 18
    Прямая продажа от застройщика - Фото 19
    Прямая продажа от застройщика - Фото 20
    полезная площадь 58.4м²

    Предлагается в продажу торговое помещение, расположенное в ЖК «1-й Измайловский»
    • 58.4 м²
    • 1/25 эт.
    24 952 480 Р
    Агент
    +7 (495) Показать номер
    Посмотреть контакты
    Прямая продажа от застройщика - Фото 1
    Прямая продажа от застройщика - Фото 2
    Прямая продажа от застройщика - Фото 3
    Прямая продажа от застройщика - Фото 4
    Прямая продажа от застройщика - Фото 5
    Прямая продажа от застройщика - Фото 6
    Прямая продажа от застройщика - Фото 7
    Прямая продажа от застройщика - Фото 8
    Прямая продажа от застройщика - Фото 9
    Прямая продажа от застройщика - Фото 10
    Прямая продажа от застройщика - Фото 11
    Прямая продажа от застройщика - Фото 12
    Прямая продажа от застройщика - Фото 13
    Прямая продажа от застройщика - Фото 14
    Прямая продажа от застройщика - Фото 15
    Прямая продажа от застройщика - Фото 16
    полезная площадь 88.6м²

    Предлагается в продажу торговое помещение, расположенное в ЖК «1-й Ленинградский»
    • 88.6 м²
    • 1/14 эт.
    24 072 000 Р
    Агент
    +7 (495) Показать номер
    Посмотреть контакты
    Прямая продажа от застройщика - Фото 1
    Прямая продажа от застройщика - Фото 2
    Прямая продажа от застройщика - Фото 3
    Прямая продажа от застройщика - Фото 4
    Прямая продажа от застройщика - Фото 5
    Прямая продажа от застройщика - Фото 6
    Прямая продажа от застройщика - Фото 7
    Прямая продажа от застройщика - Фото 8
    Прямая продажа от застройщика - Фото 9
    Прямая продажа от застройщика - Фото 10
    Прямая продажа от застройщика - Фото 11
    Прямая продажа от застройщика - Фото 12
    Прямая продажа от застройщика - Фото 13
    Прямая продажа от застройщика - Фото 14
    Прямая продажа от застройщика - Фото 15
    Прямая продажа от застройщика - Фото 16
    полезная площадь 90.1м²

    Предлагается в продажу торговое помещение, расположенное в ЖК «1-й Ленинградский»
    • 90.1 м²
    • 1/14 эт.
    24 477 000 Р
    Агент
    +7 (495) Показать номер
    Посмотреть контакты
    Прямая продажа от застройщика - Фото 1
    Прямая продажа от застройщика - Фото 2
    Прямая продажа от застройщика - Фото 3
    Прямая продажа от застройщика - Фото 4
    Прямая продажа от застройщика - Фото 5
    Прямая продажа от застройщика - Фото 6
    Прямая продажа от застройщика - Фото 7
    Прямая продажа от застройщика - Фото 8
    Прямая продажа от застройщика - Фото 9
    полезная площадь 106.8м²

    Предлагается в продажу нежилое помещение свободного назначения, расположенное в ЖК бизнес-класса "Зодиак". ЖК "Зодиак" расположен в САО г. Москвы (Сосновая аллея, дом 1) . Дом сдан в эксплуатацию в 2011 году. Рядом 4 станции метро: «Тушинская», метро...
    • 106.8 м²
    • 1/30 эт.
    25 845 600 Р
    Агент
    +7 (495) Показать номер
    Посмотреть контакты

    Не нашли подходящего объявления?

    Оставьте заявку, и наши риэлторы подберут псн в районе Москвы

    (0)