82 800 000 Р 1 027 300 $ или 883 700

Информация об помещении

1
Этаж

Состояние и оснащение

Количество этажей
9
Развернуть
Агент
+7 (911) 147-09-38
Начать чат с агентом

Помещение свободного назначения в Москва просп. Мира, 97 (18 м)

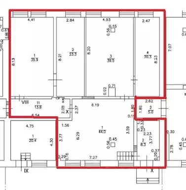
Жилой дом Проспект Мира, 97 класса BПлощадь: 18,3 м2Стоимость за 1 м2:,. включая НДССтоимость площади:,. включая НДССистема налогообложения: НДСГотовность: требуется отделкаЭтаж: 1Планировка: открытаяНаличие с/у: , ВнутриСтатус: свободенВысота потолков, h: 3.70мОтдельный входХарактеристики зданияАдрес: проспект Мира, 97, МоскваОкруг: Северо-Восточный административный округКласс: BПлощадь здания: 19 282,4 м2Полезная площадь: 19 282,4 м2Этажность: 9Налоговая: 17Год постройки: 1966Год реконструкции: 2017Лифты: 9 пас.Безопасность: Сигнализация, Видеонаблюдение, Кодовый замок/ДомофонПарковка: На прилегающей территорииТорговое или помещение свободного назначения на первом этаже жилого дома. Подготовленное под чистовую отделку. Отдельный входная группа с фасада с первой линии.

Читать полностью
    Позвонить Написать
    82 800 000 Р1 027 300 $ или 883 700
    Агент
    +7 (911) 147-09-38
    Начать чат с агентом
    Похожие предложения
    Помещение свободного назначения в Москва просп. Мира, 97 (20 м) - Фото 1
    Помещение свободного назначения в Москва просп. Мира, 97 (20 м) - Фото 2
    Жилой дом Проспект Мира, 97 класса BПлощадь: 20,3 м2Стоимость за 1 м2:,. включая НДССтоимость площади:,. включая НДССистема налогообложения: НДСГотовность: требуется отделкаЭтаж: 1Планировка: открытаяНаличие с/у: , ВнутриСтатус: свободенВысота потолков,...
    • 1/9 эт.
    82 800 000 Р
    Агент
    +7 (911) Показать номер
    Посмотреть контакты
    Продажа ПСН, м. Аэропорт, Ленинградский пр-кт. - Фото 1
    Продажа ПСН, м. Аэропорт, Ленинградский пр-кт. - Фото 2
    Продажа ПСН, м. Аэропорт, Ленинградский пр-кт. - Фото 3
    Продажа ПСН, м. Аэропорт, Ленинградский пр-кт. - Фото 4
    общая площадь 64.1м², полезная площадь 64.1м²

    Продажа помещения площадью 64,1 кв.м, на выходе из метро Аэропорт. Помещение свободного назначения расположено на 1-й фасадной линии Ленинградского пр-та. В непосредственной близости подземный пешеходный переход и остановка общественного транспорта. Сдано...
    • 64.1 м²
    • 1-й эт.
    82 800 000 Р
    Агент
    +7 (903) Показать номер
    Посмотреть контакты
    Продажа ПСН, м. Воронцовская, ул. Академика Челомея - Фото 1
    Продажа ПСН, м. Воронцовская, ул. Академика Челомея - Фото 2
    Продажа ПСН, м. Воронцовская, ул. Академика Челомея - Фото 3
    Продажа ПСН, м. Воронцовская, ул. Академика Челомея - Фото 4
    Продажа ПСН, м. Воронцовская, ул. Академика Челомея - Фото 5
    Продажа ПСН, м. Воронцовская, ул. Академика Челомея - Фото 6
    Продажа ПСН, м. Воронцовская, ул. Академика Челомея - Фото 7
    Продажа ПСН, м. Воронцовская, ул. Академика Челомея - Фото 8
    Продажа ПСН, м. Воронцовская, ул. Академика Челомея - Фото 9
    Продажа ПСН, м. Воронцовская, ул. Академика Челомея - Фото 10
    Продажа ПСН, м. Воронцовская, ул. Академика Челомея - Фото 11
    общая площадь 143.9м², полезная площадь 143.9м²

    Продажа помещения свободного назначения в новом комплексе АФИ Парк Воронцовский, в Обручевском районе, ЮЗАО, в 5 минутах пешком от м.Воронцовская. Площадь помещения 143,9 м2, 1-й этаж 25-ти этажного жилого дома (1-я очередь, сдан в 1 кв.2024 года). 2...
    • 143.9 м²
    • 1-й эт.
    83 663 460 Р
    Агент
    +7 (903) Показать номер
    Посмотреть контакты
    Продажа ПСН, м. Белорусская, ул. Грузинский Вал - Фото 1
    Продажа ПСН, м. Белорусская, ул. Грузинский Вал - Фото 2
    Продажа ПСН, м. Белорусская, ул. Грузинский Вал - Фото 3
    общая площадь 19.8м², полезная площадь 19.8м²

    Продажа помещения свободного назначения напротив выхода из метро и Белорусского вокзала, 10 метров до станции метро Белорусская. 1-я линия домов. Сверхинтенсивный пешеходный и автомобильный трафик, отличная транспортная доступность, сложившееся торговое...
    • 19.8 м²
    • 1-й эт.
    82 000 000 Р
    Агент
    +7 (903) Показать номер
    Посмотреть контакты
    Помещение свободного назначения в Москва Холодильный пер., 3к1с2 (185 ... - Фото 1
    Помещение свободного назначения в Москва Холодильный пер., 3к1с2 (185 ... - Фото 2
    ВАЖНО: БЕЗ КОММИССИ ДЛЯ АРЕНДАТОРОВ, ПРЯМАЯ ПРОДАЖА ОТ СОБСТВЕННИКАБизнес-центр B+ класса Рябовская мануфактура расположен по адресу Москва, ЮАО, район Даниловский, Холодильный пер., дом3,к1стр2, в пешей доступности от метро Тульская (2 мин).Характеристики...
    • 1/2 эт.
    83 250 000 Р
    Агент
    +7 (910) Показать номер
    Посмотреть контакты

    Не нашли подходящего объявления?

    Оставьте заявку, и наши риэлторы подберут псн в районе Москвы

    (0)