Реализация объекта недвижимости приостановлена

Информация о квартире

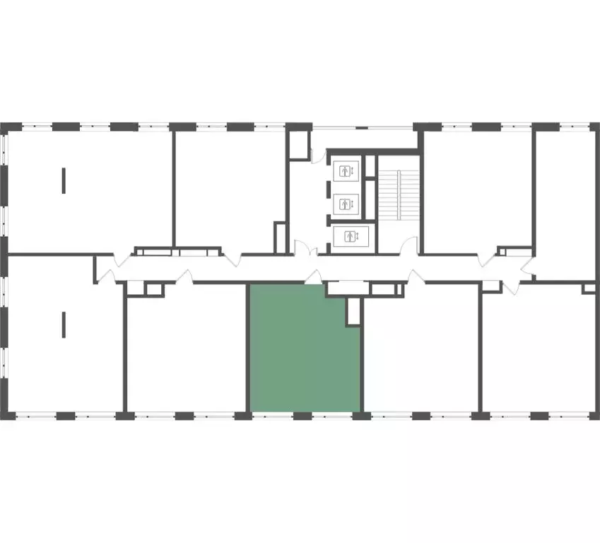
43.0 м2
Площадь
1
Комната
22
Этаж
24
Этажность
Развернуть

1-комнатная квартира: Москва, Ленинградское шоссе, 57с19 (43.7 м)

В продаже 1-к квартира площадью 43.7 м2. Функциональная планировка, кухня-гостиная, просторные санузел и гардеробная. Квартира расположена на 22-м этаже 24-этажного дома. Условия покупки:- Семейная ипотека от 3,5 на весь срок- Ипотека 0,11 на первый год- Рассрочка без процентов- Trade-in с проживанием на время строительства дома «Мангазея на Речномасположена рядом с набережной, парками и территорией Северного речного вокзала. Первая очередь проекта – два дома 12 и 24 этажа с приватным двором, ландшафтным благоустройством и инфраструктурой только для резидентов: кинозал, коворкинг, переговорные, зоны отдыха и комнаты для занятия фитнесом. Инфраструктура:- Школа на 1000 мест и детский сад- Дом Wellness со СПА-центром, фитнесом и массажными кабинетами и два бассейна, один из них – под открытым небом- Два бассейна, один из них – под открытым небом- Прогулочная набережная протяженностью 3,2 км с террасами- Зона воркаута и детские площадки- Ретейл, кафе, рестораны и бутики на первых этажах- Причалы для остановки яхт и небольших катеров Транспортная доступность:- 10 минут пешком до м. Речной вокзал- 15 минут пешком до м. Беломорская- 15 минут на машине до Белорусского вокзала- 17 минут на машине до Садового Кольца В первых корпусах «Мангазеи на Речном представлены квартиры бизнес-класса с мастер-спальнями, террасами и видами на парк. Эксклюзивные форматы – лоты с увеличенной высотой потолков и собственными выходом на благоустроенную территорию.

Читать полностью

    Реализация объекта недвижимости приостановлена

    Не нашли подходящего объявления?

    Оставьте заявку, и наши риэлторы подберут квартиру в новостройке в районе Москвы

    (0)